Summary - the post size seems questionable. Even at 12", it might have been insufficient. It depends very much on your soil type.
The remainder of this answer is a huge estimate based on lots of assumptions.
For something like a residential deck the reason the size of a footing is important is not because of the strength of the concrete itself, but because of how much soil is directly below it (*). Soil is much weaker than concrete and the concrete footing has to transfer the weight of the deck to the soil, spreading that weight out over a large enough area that it won't gradually sink or move in some way.
We can make some broad assumptions to try and analyze your footings.
For a residential deck in the US (not sure where you are) I think 50 pounds-per-square-foot (psf) of deck surface is a typical design value. This estimate is supposed to include the weight of the structure plus any occupants, furniture, etc.
- A 13x10 deck is 130 square feet (sqft) in total
- 130 sqft x 50 psf = 6500 pounds
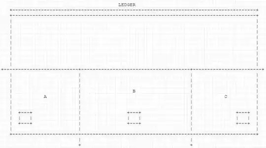
So where does all this weight go? Diagram shows a top-view of the deck, divided into sections. One half towards the ledger, the other half further divided into regions around the posts. These areas estimate how the weight will be distributed.

Assume half the weight of the deck is taken by the house ledger, leaving 3250 lbs for the posts (actually if the deck overhangs the posts they would take a bit more).
The 3 posts won't split the weight evenly: area B = A + C, therefore post B will take the most weight. Assuming A = C then we have A + B + C = A + (A + C) + C = 4A = 3250. So A = C = 812.5 and B takes about 1625 lbs.
A 10" post has an area of π r2 = 3.14 * 5 * 5 = 78.5 sq inches = about 0.55 square feet.
(If the post were 12", then you'd have 113 sq inches = 0.8 sq ft)
Dividing the weight per post by the post's area, you get:
1625 lbs / 0.55 sq ft = 2955 lbs/sqft for post B.
(Using 12" posts, B would have taken 2030 lbs/sqft).
It comes down to what kind of soil you have whether this is OK or not:
- Clay: 1,500-2,000 lbs/sqft
- Sand: 2,000-3,000 lbs/sqft
- Gravel: 3,000-5,000 lbs/sqft
- Bedrock or solid rock: "unlimited" (?)
(reference for soil values: https://www.timbertown.com/building-a-deck-on-different-types-of-soil/)
The question doesn't have enough information to assess this further.
Probably you should discuss this with your local code enforcement official. They should know what would be acceptable, typically.
If you do need to make changes, one option is adding one or more additional posts in between A-B and B-C. This would spread out the load.
(*) Concrete might have a strength of like 5000 pounds per square inch. This means it is 1000-2000 times stronger than typical soils.