We have the mixed blessing of a giant swath of exposed Canadian Shield on our property in Ontario. Literally a big flat area of exposed rock, no soil whatsoever.
Scale is hard to see, but a satellite view looks like this:
In our area it has been tested to have a bearing weight > 10 000 pounds per square foot (basically high enough that the number doesn't matter anymore). We have the pieces of a high tunnel style greenhouse (32 ft wide, 96 ft long, 24 ft high in the center), like this:
Perhaps foolishly (no one we've spoken to in the area has tried to permit a greenhouse), we took the plans to our local permitting office. The only particularly difficult part we've run into is the foundation. As purchased, the plans were for a standard installation with a more house-style foundation. We were presuming that it would be extremely easy to do a foundation as frost heaving and bearing weight aren't a concern. The only engineered diagram we've gotten past the permitting office is a 24" tall x 14" wide concrete beam poured directly on the bedrock.
Our issue is that this seems to avoid all the benefits that exist with the exposed bedrock, makes it virtually impossible to do ourselves just due to the volume and the associated risk of mistakes, and is crazy expensive without much perceived value.
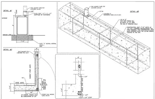
I've seen this related question, which basically ends up with something like this:

Are we missing why this same principle cannot be applied with just enough concrete to level out the area and provide a consistent and level wall to form the perimeter of the structure? Is 2' high really required, or is this a case of the engineer getting fed up with the back-and-forth with the permitting office and over-engineering it?
Are there any other options we're missing to accomplish the same end result - a blocked in bottom perimeter that can support the greenhouse "hoops"?
Note: We haven't measured the grade over the entire length, but it can safely be assumed to be < 6" after clearing away surface dirt, loose stone etc.
Late Update: After building a few small outbuildings, we were misunderstanding the concerns addressed in the design. The massive foundation is essentially a humongous anchor. If hurricane force winds come through (and in this imaginary scenario I guess the plastic holds to the frame better than the frame to the ground anchors) the foundation is spec'd so the whole building doesn't lift up and blow away. All that to say the bearing weight and heaving are not large concerns as we were thinking they are.
To summarize, it is almost exclusively uplift which is being addressed by the massive amount of concrete. No engineers are willing to say the bedrock is really bedrock without a (hugely expensive) core sample (I guess the system works?), so the building has to be designed to not fly away with no consideration of the uplift resisting ability of the ground underneath, or fastening systems attaching to the ground.


