I just got a brand new stacked GE washer/dryer. I have a 30A breaker and I am running 10/2 with a 3 prong outlet. The breaker is double pole and I have the black wire in one and white in the other and power is going to the outlet but only 1 of the 2 hot wires is carrying power to the unit. So I have power to the dryer but not the washer and if I switch the 2 hot wires around vice versa. Not entirely sure what I am doing wrong as I have gotten help from my uncle who is a high voltage electrician and says it should be working fine.
-
16Why in all that is holy are you running 10/2 to a NEMA 10?!??! That hasn't been kosher for new installations for a couple of decades now...what model is your washer/dryer combo btw? – ThreePhaseEel Oct 20 '21 at 11:39
-
2So this stacked washer and dryer... it has _one_ electrical connection for the washer and dryer? I've taken a separate washer and dryer and stacked them, but it sounds like this is combined? – JPhi1618 Oct 20 '21 at 13:25
-
1Does the 2-pole breaker have 2 handles? Do they move independently? – Harper - Reinstate Monica Oct 20 '21 at 18:36
2 Answers
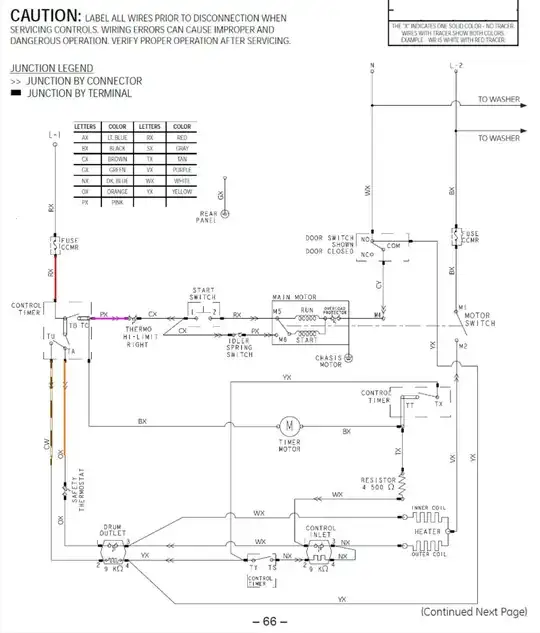
You didn't specify the model number but this is likely similar (from: https://www.justanswer.com/appliance/7j73z-need-ge-stacked-washer-dryer-dryer-timer-motor-wiring-hookup.html)
You'll note that the washer is powered from L-2/N and the dryer is powered from L-1/L-2.
It's clear that you likely have a missing or bad N connection and using the 10/2 is probably the root cause. You should be using X/3, where X is the appropriate size wire for this application. As it is you are either powering just the dryer or just the washer but not both at the same time.
Find a real electrician (not your uncle!) and have them hook this thing up properly.
- 22,965
- 2
- 30
- 64
-
1This makes sense to me. Even if this is a combined washer and dryer unit, I don't think they would use 240v motors and control boards for the washer rather than the 120v ones that come in every other washer. If it needs 240v and 120v, its going to need 3 wires. – JPhi1618 Oct 20 '21 at 14:04
That's illegal, and always was illegal
You can't use 10/2 + ground cable for a washer-dryer. You never could.
IN 1996 (25 years ago) they banned the NEMA 10-30 connector. Your combo unit can easily be wired NEMA 14 with a 4-prong plug, and the conversion instructions are in the manual.
In 1966 (55 years ago) they effectively banned using 10/3 without ground, because they told cable manufacturers to stop making it. As a kindness to the cable industry, they made it legal to keep using "10/3 no ground" until stocks were depleted. And that would be the end of 3-wire dryer and range connections. Around 1968.
And then, Americans would land on the moon.
The whole reason is appliances need to be grounded. Wired the way you've done, it's not grounded at all. NEMA 10 doesn't have a ground wire. It has a neutral, and you are abusing the ground wire in the cable to be the neutral.
That ground wire is not insulated to be neutral. Perfectly routine wire failures can cause the neutral wire to be energized - that's WHY it's insulated. And in a NEMA 10 setup, those same failures can cause the chassis of the machine to be energized and kill people.
Happens all the time. The press reports it as a "mis-wired" outlet, when in fact it was a correctly wired NEMA 10 having its usual failure mode, which is why it was banned in 1996 (and expected to be practically banned in 1968).
Replace it
Yes, I know it was expensive wire, and replacing it will be painful, but since it was so expensive, you really should have double checked to make sure you were getting the right thing.
Once you have all 4 wires hooked up correctly into a NEMA 14-30 receptacle and plug, I suspect the problem will take care of itself.
- 276,940
- 24
- 257
- 671
-
4This is twice in a couple days I see you mention neutral is insulated because it can be energized during "routine wire failures". I feel like that wording implies that it's only energized during failures, and that it doesn't carry current when equipment is in use. – Logarr Oct 20 '21 at 19:13
-
@Joe for an exclusively 240V connection, yes. The neutral doesn't even need to be there. But on a combined washer/dryer the washer is all but guaranteed to be 120V, so the neutral will be at 120V during washer operation. – Logarr Oct 20 '21 at 19:29
-
8@Logarr when everything is working properly, the voltage between neutral and ground is low, even though neutral is carrying current. "Routine wire failures" can cause the neutral wire to be at the same voltage as the hot wire. – Joseph Sible-Reinstate Monica Oct 20 '21 at 20:12
-
11@Logarr: in normal operation, the neutral wire carries current, but is at ground voltage. In certain wire failures (i.e., the neutral becomes disconnected at the panel), it will cease carrying current (conveying the false impression of a dead circuit) but will now be at full line voltage. – CCTO Oct 20 '21 at 20:16
-
Even if the wire were damaged to have a higher resistance, the stuff on the hot side of the fault would be floating at some higher (potentially dangerous) voltage. – le3th4x0rbot Oct 21 '21 at 21:15
