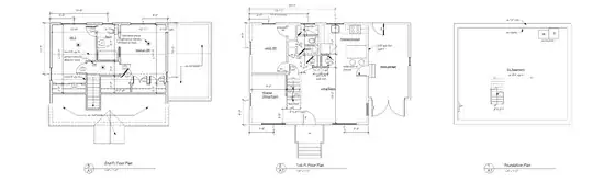
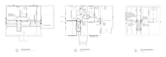
I have a cape I am moving the stairs and dormering the back. My engineer sent me these drawings. I think its overkill that he put HSS steel posts with w6x25(steel beam) across for the support. He has LVL's additionally in the I beam as you can see from one of the pages. I am not sure why I need an I beam with LVL's inside to support the joists. I am sure sistered LVL's can support the weight. The span is about 14 feet. please help me as I am trying to avoid using steel on this small cape.
-
2*Why* are you trying to avoid using an I-beam? Also, have you asked your structural engineer as to why he went with the I-beam + LVL combo instead of using a purely wooden member? – ThreePhaseEel Oct 26 '17 at 23:43
-
I agree with @ThreePhaseEel , ask the engineer why steel? and ask him to use wood only... I hate mixing steel and wood on my projects. – Lee Sam Oct 27 '17 at 00:09
-
Could it be it is over-engineered because it is in a location subject to hurricanes, tornadoes, earthquakes, high winds, etc.? – wallyk Oct 27 '17 at 01:28
-
7You’re asking a bunch of nerds on the internet to re-design what you paid an engineer for? If you need a second opinion, pay one of his peers. No one here is qualified to question an engineer. – Tyson Oct 27 '17 at 01:28
2 Answers
The structural engineer sized that as a W6x25 steel beam because he wanted it flush in the 2x8 floor system as it is only 6.38" deep. If you changed it to a LVL, you would need a 3 ply 11-7/8" LVL, which would stick 4-5/8" below the floor system and you would have to build a soffit there.
The steel posts are there on either end because of large end reactions from these stacked beams. Your ridge beam in the roof stacks with your 2nd floor beam which stacks with your 1st floor existing beam/girder or whatever that is. If you really don't want to use steel posts, then you could ask him to size PSL or glulam columns as they might be an option too. If you're limited to 2x4 interior/exterios walls, then steel posts are sometimes your only option.
If you add additional interior bearing and decrease some of the beam spans, you can reduce the size of the beams. Wide open floor plans, the lack of interior bearing, and the homeowner not wanting soffits, are all things that the structural engineer is thinking about while sizing/designing these beams.
- 4,729
- 9
- 17
-
Couldn't I sister 2 7 1/4 LVL's with a 7 inch Steel (1/2in fletch) Plate in between with staggered bolting. It would be flush and I believe it will be able to support the weight. The span is a little more then 14 feet. – Dmurolo Oct 27 '17 at 23:28
-
@Dmurolo No, that wouldn't pass. You would need something closer to a 4 ply 7-1/4 LVL with three 1/2" flitch plates. Run that by your structural engineer if you really want to go that route and he can tell you the pros and cons of using a flitch plate beam and also provide the connection detail for you. – Dotes Oct 30 '17 at 18:32
Presumably you engaged this person for their professional expertise, so can you indicate why you feel you are qualified to override them? Or is your question based on aesthetics or practicality? If it is the former, you're on slippery ground. If it is the latter, I would simply ask them and make whatever alternative suggestion you have. For example, "is there a way to do X with just wood and still keep it safe?"
- 351
- 2
- 9


