I'm struggling to mount my 31kg Panasonic TH-P60ST60A 60 inch TV to the wall in my apartment and was hoping someone here might be able to give me some advice.
The walls in my apartment seem to be a layer of drywall, about 20mm thick, followed by a 10mm gap, and then some type of brick. As far as I know, there are no studs in this wall (it's in Australia, and the walls here seem to be constructed quite differently from the walls I'm used to in Canada):

I used a hammer drill to put 8 holes in the wall, when I drilled through the drywall, it was pretty easy, but I had to switch to the hammer when I reached the brick (or whatever it is) behind the drywall, so it seemed somewhat solid, although definitely not as solid as the type of brick you'd find outside:

I then used the following 8mm x 80mm plastic plugs

and tried to push them as far back as possible, to try to get them seated into the brick:

Then I put the TV mount on the wall and tried fastening some large screws into the plastic plugs to secure it to the wall, although unfortunately what ended up happening is that the screw just twisted the plastic plug, and it eventually just broke off:

Here's a picture of the wall with the mounting bracket waiting to be screwed in:

You can see that there's a large gap in the wall, which the owners thought was a great idea, but I beg to differ. I was still able to drill 4 holes with 100mm spacing, which I figured should provide enough support (if I was able to get a solid bolt in the wall, that is)
So now I'm stuck. I have 8 ugly holes in my wall (actually, 9 because I drilled one too close to the corner and hit the metal bracket) and I haven't been able to attach a single screw.
I think there's two main issues so far:
- I used an 8mm drill bit for an 8mm plug, but the "brick/stone/whatever" behind the wall might have been too soft, in which case I may have made the hole too large, so the plugs are just rotating around not gripping
- Perhaps I didn't actually push the plug far enough into the wall so that it reached the brick, in which case when I twist the screw, it just shears off the top of the plug because it has nothing to grip on, however, I've pushed the plug pretty far into the wall, and it feels like it's seated in the brick, but I can't really tell for sure.
In any case I'm at a loss of what to do next. I'd like to avoid calling a professional, since they charge about $400 to mount a TV and was hoping I could do it myself, but now I'm stuck. If anyone has any suggestions of what to try next, please let me know! Thanks!
Edit: here are some additional pictures of the gap behind the wall:

And a close up of the screw inside the plastic plug:

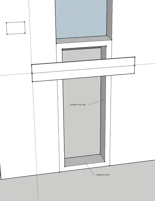
And a google sketchup diagram of possibly using a wooden frame to support the TV:

Update May 25th 2017
Thanks to all those who answered, you gave me some great suggestions, and I'm happy to report that I've finally managed to mount the TV on the wall!
I took AndyT's advice and bought some larger 10mm plugs for my 8mm screws. While I was drilling the larger holes, it felt like I hit brick behind the wall, and the screws feel pretty sturdy, as does the bracket, so I think the TV should be secure.
Here's some pics of the bracket and TV now attached to the wall:
