796
HOSPITAL
but even in the best type of hospital there is still much to be desired in this respect. It is essential for an architect in designing any building to have before him an accurate idea of all the requirements, and the use to which each foot of space is to be put; for unless he is furnished with this information it is not possible for him to design his building so as to give effect to all the details which are so necessary. The following is an endeavour in a general way to enumerate the various points which an architect should have before him in designing the admission department of a general hospital:—
The admission department should be conveniently placed on the ground floor of the hospital—or it may be a detached building—with a large court where ambulance wagons or other vehicles may easily pass each other on approaching or retiring from the institution. The entrance to the admission department for patients should, if possible, be entirely separate and distinct from that for the staff and students. An additional entrance should be provided for patients’ friends on visiting days, in order that they may be able to enter the hospital without passing through the patients’ entrance, or coming into contact with an accident case or other patient seeking admission. The main entrance door should be protected by a covered porch so that patients may be removed from the ambulance or cab to the examination room without being exposed to the weather or the gaze of inquisitive onlookers. This door should be sufficiently wide to allow two hand ambulances or barrows to pass should they require to be brought out to the ambulance or cab, and to facilitate this the floor of the entrance hall should be as nearly as possible on a level with that of the outside porch. Adjoining the entrance vestibule, lavatory accommodation should be provided for males and females who may accompany the patient. Lavatory accommodation should also be provided for porters on duty, and all lavatories should have a cut-off ventilating passage.
A recess to store ambulance barrows should adjoin the entrance, and this recess must be in proportion to the size of the hospital, in order that a hand ambulance may always be available when an accident or urgent case arrives. The vestibule should lead into a large waiting-hall with an inquiry office at its entrance, provided with a telephone exchange, private exchange box, also letter and parcel racks. If possible a window of the inquiry office should command a view of the main entrance. A room should be provided for the medical officer on duty, so that a medical officer may be always at hand and that no delay will occur in attending to a patient on arrival.
Leading off from this waiting-hall, well-lit examination rooms should be available for the thorough examination of patients, both male and female, the number of rooms, of course, varying with the size of the hospital and the amount of work to be done. Each of these rooms should be fitted with a wash-hand basin and sink, and a plentiful supply of hot and cold water.
Two rooms, with recovery rooms adjoining, should be fitted up as small operating-rooms for the treatment of minor casualties. A special room should also be furnished with an X-ray outfit, and arrangements should be made whereby this room can be readily darkened so that suspected fractures, &c. may be examined with the fluorescent screen.
Adjoining the admission department two small wards should be provided for the accommodation of drunk or noisy cases unfit to be placed in the general wards. To these “emergency wards” must be attached the usual bathroom and lavatory accommodation, nurses’ room, ward kitchen and urine-test room or small lavatory. These wards should have double windows in order to prevent noise being heard outside if the wards are near other buildings.
The interior walls of the admission department should, as far as possible, have a smooth and impervious surface, in order that they may be easily cleaned. All angles should be avoided and all corners rounded. Although glazed tiles are open to the criticism that they have numerous joints, they probably make the most suitable wall yet devised, as they can be easily washed down at very small cost. The corridors and waiting-hall should be tiled to a height of 6 ft. 6 in., and the upper walls covered with Parian or Kean’s cement, and be treated with three coats of flat paint and two coats of enamel, or, what is equally suitable and less costly, enamellette. The floors of the passages and corridors throughout the department should be covered with terrazzo, which is a mixture of Portland cement and marble chips. A margin of 1 ft. round the rooms should be treated in this way, and the terrazzo carried up this same distance on the wall to join the tiles. The remainder of the floors should be covered with hard wood, such as American maple or teak. As these floors require to be frequently washed, oak is not so suitable. Oak very soon becomes destroyed with water; the same trouble is experienced with pitch pine. The doors should also be made of a hard wood, preferably teak, and have no mouldings or grooves where dust can lodge. They should be wide enough to admit an ambulance barrow or bed with ease. In no case should the doors of an examination room be less than 3 ft. 6 in. in width.
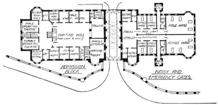
As an aid to a complete understanding of the varied work which has to be provided for, and the most effective method of carrying it out, the accompanying plans are given of an admission block designed to embody the main principles which govern the construction of such a department.
![]() |
![]() |
| Plans of Ground Floor and Basement of a Hospital. |
All accidents and patients seeking admission to this hospital enter through the central gateway, and on the left is shown the porters’ room, where a porter is always in readiness to attend to any applicant. This room has suitable accommodation for parcels, letters, telephones, &c., and adjoining it is a small lavatory for the use of porters. At the side of the porters’ room is the entrance to the central waiting-hall, which is lit from the roof. On one side of this hall are examination and dressing-rooms for males, with lavatory accommodation; and on the other side similar provision for females, with the addition of a nurses’ duty room. At the end of the central hall are two operating theatres, with recovery room adjoining each; one theatre for males, and the other for females. Between these theatres are rooms for sterilizers and dressings. An X-ray examination room is provided beyond the male examination room on the right of the hall. In the basement, under the entrance-hall and operating theatres are two bathrooms for males and two for females, with W.C.’s for each. The remainder of the basement is used as a store for patients’ clothes, and a hot-air chamber is provided for purposes of disinfection. The basement can be reached by a lift or by a wide staircase which is situated at the end of the waiting-hall.
In the above plan provision is made for a sitting-room for the medical officer on duty. This is a new and essential feature in the admission block unit of all hospitals in large cities, for it should secure that no patient is kept waiting for many minutes before being seen. One of the blots on the management of many hospitals is that regrettable delays often take place, and much dissatisfaction and avoidable suffering may arise from this difficulty in the administration of a general hospital. We have given this plan of a model gatehouse or admission block for a modern general hospital, because the block as it stands contains all the elements necessary for a receiving-house block in cities in connexion with a great Hospital city situated outside its area, in fulfilment of the suggestion for a Hospital city made above. Apart from its interest as a new feature which all new hospitals should adopt, the gatehouse or admission block has an importance in the wider sense, that it may come to form the key to the solution of the problem of how best to provide hospital accommodation for the poor in great cities under the best hygienic conditions, while protecting them from the misery and danger of prolonged delay in first treatment, especially in connexion with accidents and other cases of urgency.
Bibliography.—Sir H. Burdett, Cottage Hospitals, General, Fever and Convalescent, their Construction, Management and Work (London, 1877, 1880 and 1896); Tollet, Les Édifices hospitaliers depuis leur

