FORTIFICATION AND SIEGECRAFT. “Fortification” is the military art of strengthening positions against attack. The word (Lat. fortis, strong, and facere, to make) implies the creation of defences. Thus the boy who from the top of a mound defies his comrades, or shelters from their snowballs behind a fence, is merely taking advantage of ground; but if he puts up a hurdle on his mound and stands behind that he has fortified his position.
Fortification consists of two elements, viz. protection and obstacle. The protection shields the defender from the enemy’s missiles; the obstacle prevents the enemy from coming to close quarters, and delays him under fire.
Protection may be of several kinds, direct or indirect. Direct protection is given by a wall or rampart of earth, strong enough to stop the enemy’s missiles. The value of this is reduced in proportion as the defender has to expose himself to return the enemy’s fire, or to resist his attempts to destroy the defences. Indirect protection is given by distance, as for instance by a high wall placed on a cliff so that the defender on the top of the wall is out of reach of the enemy’s missiles if these are of short range, such as arrows. This kind of defence was very popular in the middle ages. In the present day the same object is attained by pushing out detached forts to such a distance from the town they are protecting that the besieger cannot bombard the town as long as he is outside the forts. Another form of indirect protection of great importance is concealment.
The obstacle may consist of anything which will impede the enemy’s advance and prevent him from coming to close quarters. In the earliest forms of fortification the protecting wall was also the obstacle, or it may be a wet or dry ditch, an entanglement, a swamp, a thorn hedge, a spiked palisade, or some temporary expedient, such as crows’ feet or chevaux de frise. The two elements must of course be arranged in combination. The besieged must be able to defend the obstacle from their protected position, otherwise it can be surmounted or destroyed at leisure. But a close connexion is no longer essential. The effect of modern firearms permits of great elasticity in the disposition of the obstacle; and this simplifies some of the problems of defence.
Protection must be arranged mainly with reference to the enemy’s methods of attack and the weapons he uses. The obstacle, on the other hand, should be of such a nature as to bring out the best effects of the defender’s weapons. It follows from this that a well-armed force operating against a badly-armed uncivilized enemy may use with advantage very simple old-fashioned methods of protection; or even dispense with it altogether if the obstacle is a good one.
When the assailant has modern weapons the importance of protection is very great. In fact, it may be said that in proportion as missile weapons have grown more effective, the importance of protection and the difficulty of providing it have increased, while the necessity for a monumental physical obstacle has decreased.
The art of the engineer who is about to fortify consists in appreciating and harmonizing all the conditions of the problem, such as the weapons in use, nature of the ground, materials available, temper of assailants and defenders, strategical possibilities, expenditure to be incurred, and so forth. Few of these conditions are in themselves difficult to understand, but they are so many and their reactions are so complex that a real familiarity with all of them is essential to successful work. The keynote of the solution should be simplicity; but this is the first point usually lost sight of by the makers of “systems,” especially by those who during a long period of peace have time to give play to their imaginations.
Fortification is usually divided into two branches, namely permanent fortification and field fortification. Permanent fortifications are erected at leisure, with all the resources that a state can supply of constructive and mechanical skill, and are built of enduring materials. Field fortifications are extemporized by troops in the field, perhaps assisted by such local labour and tools as may be procurable, and with materials that do not require much preparation, such as earth, brushwood and light timber. There is also an intermediate branch known as semi-permanent fortification. This is employed when in the course of a campaign it becomes desirable to protect some locality with the best imitation of permanent defences that can be made in a short time, ample resources and skilled civilian labour being available.
The objects of fortification are various. The vast enceintes of Nineveh and Babylon were planned so that in time of war they might give shelter to the whole population of the country except the field army, with their flocks and herds and household stuff. The same idea may be seen to-day in the walls of such cities as Kano. In the middle ages feudal lords built castles for security against the attacks of their neighbours, and also to watch over towns or bridges or fords from which they drew revenue; whilst rich towns were surrounded with walls merely for the protection of their own inhabitants and their property. The feudal castles lost their importance when the art of cannon-founding was fairly developed; and in the leisurely wars of the 17th and 18th centuries, when roads were few and bad, a swarm of fortified towns, large and small, played a great part in delaying the march of victorious armies.
In the present day isolated forts are seldom used, and only for such purposes as to block passes in mountainous districts. Fortresses are used either to protect points of vital importance, such as capital cities, military depots and dockyards, or at strategic points such as railway junctions. Combinations of fortresses are also used for more general strategic purposes, as will be explained later.
I. History
The most elementary type of fortification is the thorn hedge, a type which naturally recurs from age to age under primitive conditions. Thus, Alexander found the villages of the Hyrcanians defended by thick hedges, and the same arrangements may be seen to-day among the least Ancient methods.civilized tribes of Africa. The next advance from the hedge is the bank of earth, with the exterior made steep by revetments of sods or hurdle-work. This has a double advantage over the hedge, as, besides being a better obstacle against assault, it gives the defenders an advantage of position in a hand-to-hand fight. Such banks formed the defences of the German towns in Caesar’s time, and they were constructed with a high degree of skill. Timber being plentiful, the parapets were built of alternate layers of stones, earth and tree trunks. The latter were built in at right angles to the length of the parapet, and were thus very difficult to displace, while the earth prevented their being set on fire. The bank was often strengthened by a palisade of tree trunks or hurdle-work.
After the bank the most important step in advance for a nation progressing in the arts was the wall, of masonry, sun-dried brick or mud. The history of the development of the wall and of the methods of attacking it is the history of fortification for several thousand years.
The first necessity for the wall was height, to give security against escalade. The second-was thickness, so that the defenders might have a platform on the top which would give them space to circulate freely and to use their weapons. A lofty wall, thick enough at the top for purposes of defence, would be very expensive if built of solid masonry; therefore the plan was early introduced of building two walls with a filling of earth or rubble between them. The face of the outer wall would be carried up a few feet above the platform, and crenellated to give protection against arrows and other projectiles.
The next forward step for the defence was the construction of towers at intervals along the wall. These provided flanking fire along the front; they also afforded refuges for the garrison in case of a successful escalade, and from them the platform could be enfiladed.
The evolution of the wall with towers was simple. The main requirements were despotic power and unlimited labour. Thus the finest examples of the system known to history are also amongst the earliest. One of these was Nineveh, built more than 2000 years B.C. The object of its huge perimeter, more than 50 m., has been mentioned. The wall was 120 ft. high and 30 ft. thick; and there were 1500 towers.
After this no practical advance in the art of fortification was made for a very long time, from a constructional point of view. Many centuries indeed elapsed before the inventive genius of man evolved engines and methods of attack fit to cope with such colossal obstacles.
The earliest form of attack was of course escalade, either by ladders or by heaping up a ramp of faggots or other portable materials. When the increasing height of walls made escalade too difficult, other means of attack had to be invented. Probably the first of these were the ram, for battering down the walls, and mining. The latter might have two objects: (a) to drive an underground gallery below the wall from the besiegers’ position into the fortress, or (b) to destroy the wall itself by undermining.
The use of missile engines for throwing heavy projectiles probably came later. They are mentioned in the preparations made for the defence of Jerusalem against the Philistines in the 8th century B.C. They are not mentioned in connexion with the siege of Troy. At the sieges of Tyre and Jerusalem by Nebuchadrezzar in 587 B.C. we first find mention of the ram and of movable towers placed on mounds to overlook the walls.
The Asiatics, however, had not the qualities of mind necessary for a systematic development of siegecraft, and it was left for the Greeks practically to create this science. Taking it up in the 5th century B.C. they soon, under Philip of Macedon and Alexander, arrived at a very high Classical times.degree of skill. They invented and systematized methods which were afterwards perfected by the Romans. Alexander’s siegecraft was extremely practical. His successors endeavoured to improve on it by increasing the size of their missile and other engines, which, however, were so cumbrous that they were of little use. When the Romans a little later took up the science they returned to the practical methods of Alexander, and by the time of Caesar’s wars had become past-masters of it. The highest development of siegecraft before the use of gunpowder was probably attained in the early days of the Roman empire. The beginning of the Christian era is therefore a suitable period at which to take a survey of the arts of fortification and siegecraft as practised by the ancients.
In fortification the wall with towers was still the leading idea. The towers were preferred circular in plan, as this form offered the best resistance to the ram. The wall was usually reinforced by a ditch, which had three advantages: it increased the height Conditions at opening of the Christian era.of the obstacle, made the bringing up of the engines of attack more difficult, and supplied material for the filling of the wall. In special cases, as at Jerusalem and Rhodes, the enclosure walls were doubled and trebled. Citadels were also built on a large scale.
The typical site preferred by the Romans for a fortified town was on high ground sloping to a river on one side and with steep slopes falling away on the other three sides. At the highest point was a castle serving as citadel. The town enclosure was designed in accordance with the character of the surrounding country. Where the enemy’s approach was easiest, the walls were higher, flanking towers stronger and ditches wider and deeper. Some of the towers were made high for look-out posts. If there was a bridge over the river, it was defended by a bridge-head on the far side; and stockades defended by towers were built out from either bank above and below the bridge, between which chains or booms could be stretched to bar the passage.
The natural features of the ground were skilfully utilized. Thus when a large town was spread over an irregular site broken by hills, the enceinte wall would be carried over the top of the hills; and in the intervening valleys the wall would not only be made stronger, but would be somewhat drawn back to allow of a flanking defence from the hill tops on either side. The walls would consist of two strong masonry faces, 20 ft. apart, the space between filled with earth and stones. Usually when the lie of the ground was favourable, the outside of the wall would be much higher than the inside, the parapet walk perhaps being but a little above the level of the town. Palisades were used to strengthen the ditches, especially before the gates.
There was little scope, however, in masonry for the genius of Roman warfare, which had a better opportunity in the active work of attack and defence. For siegecraft the Roman legions were specially apt. No modern engineer, civil or military, accustomed to rely on machinery, steam and hydraulic apparatus, could hope to emulate the feats of the legionaries. In earthworks they excelled; and in such work as building and moving about colossal wooden towers under war conditions, they accomplished things at which nowadays we can only wonder.
The attack was carried on mainly by the use of “engines,” under which head were included all mechanical means of attack—towers, missile engines such as catapults and balistae, rams of different kinds, “tortoises” (see below), &c. Mining, too, was freely resorted to, also approach trenches, the use of which had been introduced by the Greeks.
The object of mining, as has been said, might be the driving of a gallery under the wall into the interior of the place, or the destruction of the wall. The latter was effected by excavating large chambers under the foundations. These were supported while the excavation was proceeding by timber struts and planking. When the chambers were large enough the timber supports were burnt and the wall collapsed. The besieged replied to the mining attack by countermines. With these they would undermine and destroy the besiegers’ galleries, or would break into them and drive out the workers, either by force of arms or by filling the galleries with smoke.
Breaches in the wall were made by rams. These were of two kinds. For dislodging the cemented masonry of the face of the wall, steel-pointed heads were used; when this was done, another head, shaped like a ram’s head, was substituted for battering down the filling of the wall.
For escalade they used ladders fixed on wheeled platforms; but the most important means of attack against a high wall were the movable towers of wood. These were built so high that from their tops the parapet walk of the wall could be swept with arrows and stones; and drawbridges were let down from them, by which a storming party could reach the top of the wall. The height of the towers was from 70 to 150 ft. They were moved on wheels of solid oak or elm, 6 to 12 ft. in diameter and 3 to 4 ft. thick. The ground floor contained one or two rams. The upper floors, of which there might be as many as fifteen, were furnished with missile engines of a smaller kind. The archers occupied the top floor. There also were placed reservoirs of water to extinguish fire. These were filled by force pumps and fitted with hose made of the intestines of cattle. Drawbridges, either hanging or worked on rollers, were placed at the proper height to give access to the top of the wall, or to a breach, as might be required. Apollodorus proposed to place a couple of rams in the upper part of the tower to destroy the crenellations of the wall.
The siege towers had of course to be very solidly built of strong timbers to resist the heavy stones thrown by the engines of the defence. They were protected against fire by screens of osiers, plaited rope or raw hides. Sometimes it was necessary, in order to gain greater height, to place them on high terraces of earth. In that case they would be built on the site. At the siege of Marseilles, described by Caesar, special methods of attack had to be employed on account of the strength of the engines used by the besieged and their frequent sallies to destroy the siege works. A square fort, with brick walls 30 ft. long and 5 ft. thick, was built in front of one of the towers of the town to resist sorties. This fort was subsequently raised to a height of six storeys, under shelter of a roof which projected beyond the walls, and from the eaves of which hung heavy mats made of ships’ cables. The mats protected the men working at the walls, and as these were built up the roof was gradually raised by the use of endless screws. The roof was made of heavy beams and planks, over which were laid bricks and clay, and the whole was covered with mats and hides to prevent the bricks from being dislodged. This structure was completed without the loss of a man, and could only have been built by the Romans, whose soldiers were all skilled workmen.
Although these towers were provided with bridges by which storming parties could reach the top of the wall, their main object was usually to dominate the defence and keep down the fire from the walls and towers. Under this protection breaching operations could be carried on. The approaches to the wall were usually made under shelter of galleries of timber or hurdle-work, which were placed on wheels and moved into position as required. When the wall was reached, a shelter of stronger construction, known as a “rat,” was placed in position against it. Under this a ram was swung or worked on rollers; or the rat might be used as a shelter for miners or for workmen cutting away the face of the wall. The great rat at Marseilles, which extended from the tower already described to the base of the tower of the city, was 60 ft. long, and built largely of great beams 2 ft. square, connected by iron pins and bands. It was unusually narrow, the ground sills of the side walls being only 4 ft. apart. This was no doubt in order to keep down the weight of the structure, which, massive as it was, had to be movable. The sloping roof and sides of timber were protected, like those of the tower, with bricks and moist clay, hides and wool mattresses. Huge stones and barrels of blazing pitch were thrown from the wall upon this rat without effect, and under its cover the soldiers loosened and removed the foundations of the tower until it fell down.
In order that it might be possible to move these heavy structures, it was usually necessary to fill up the ditch or to level the surface of the ground. For this purpose an “approach tortoise” was often used. This was a shelter, something between the ordinary gallery and the rat, which was moved end on towards the wall, and had an open front with a hood, under cover of which the earth brought up for filling the ditch was distributed.
The missile engines threw stones up to 600 ℔ weight, heavy darts from 6 to 12 ft. long, and Greek fire. Archimedes at the siege of Syracuse even made some throwing 1800 ℔. The ranges varied, according to the machine and the weight thrown, up to 600 yds. for direct fire and 1000 yds. for curved fire. At the siege of Jerusalem Titus employed three hundred catapults of different sizes and forty balistae, of which the smallest threw missiles of 75 ℔ weight. At Carthage Scipio found 120 large and 281 medium catapults, 23 large and 52 small balistae, and a great number of scorpions and other small missile engines.
Screens and mantlets for the protection of the engine-workers were used in great variety.
In addition to the above, great mechanical skill was shown in the construction of many kinds of machines for occasional purposes. A kind of jib crane of great height on a movable platform was used to hoist a cage containing fifteen or twenty men on to the wall. A long spar with a steel claw at the end, swung in the middle from a lofty frame, served to pull down the upper parts of parapets and overhanging galleries. The defenders on their side were not slow in replying with similar devices. Fenders were let down from the wall to soften the blow of the ram, or the ram heads were caught and held by cranes. Grapnels were lowered from cranes to seize the rats and overturn them. Archimedes used the same idea in the defence of Syracuse for lifting and sinking the Roman galleys. Wooden towers were built on the walls to overtop the towers of the besiegers. Many devices for throwing fire were employed. The tradition that Archimedes burnt the Roman fleet, or a portion of it, at Syracuse, by focusing the rays of the sun with reflectors, is supported by an experiment made by Buffon in 1747. With a reflector having a surface of 50 sq. ft., made up of 168 small mirrors each 6 by 8 in., lead was melted at a distance of 140 ft. and wood was set on fire at 160 ft.
The development of masonry in permanent fortification had long since reached its practical limit, and was no longer proof against the destructive methods that had been evolved. The extemporized defences were, as is always the case, worn down by a resolute besieger, and the attack was stronger than the defence.
Through the dark ages the Eastern Empire kept alive the twin sciences of fortification and siegecraft long enough for the Crusaders to learn from them what had been lost in the West. Byzantium, however, always a storehouse of military science, while conserving a knowledge of the ancient methods and the great missile engines, contributed no new ideas to fortification, so far as we know. In practice the Middle ages. Byzantines favoured multiplied enceintes or several concentric lines of defence. This of course is always a tendency of decadent nations.
In the West the Roman fortifications remained standing, and the Visigoths, allies of Rome, utilized their principles in the defences of Carcassonne, Toulouse, &c. in the 5th century. Viollet-le-Duc’s description and illustrations of the defences of Carcassonne will give a very good idea of the methods then in use:—
![]() |
| Fig. 1.—Plan of one of the Towers at Carcassonne. |
“The Visigoth fortification of the city of Carcassonne, which is still preserved, offers an analogous arrangement recalling those described by Vegetius. The level of the town is much more elevated than the ground outside, and almost as high as the parapet walks. The curtain walls, of great thickness, are composed of two faces of small cubical masonry alternating with courses of brick; the middle portion being filled, not with earth but with rubble run with lime. The towers were raised above these curtains, and their communication with the latter might be cut off, so as to make of each tower a small independent fort; externally these towers are cylindrical, and on the side of the town square; they rest, also towards the country, upon a cubical base or foundation. We subjoin (fig. 1) the plan of one of these towers with the curtains adjoining. A is the plan of the ground-level; B the plan of the first storey at the level of the parapet. We see, at C and D, the two excavations formed in front of the gates of the tower to intercept, when the drawbridges were raised, all communication between the town or the parapet walk and the several storeys of the tower. From the first storey access was had to the upper crenellated or battlemented portion of the tower by a ladder of wood placed interiorly against the side of the flat wall. The external ground-level was much lower than that of the tower, and also beneath the ground-level of the town, from which it was reached by a descending flight of from ten to fifteen steps. Fig. 2 shows the tower and its two curtains on the side of the town; the bridges of communication are supposed to have been removed. The battlemented portion at the top is covered with a roof, and open on the side of the town in order to permit the defenders of the tower to see what was going on therein, and also to allow of their hoisting up stones and other projectiles by means of a rope and pulley. Fig. 3 shows the same tower on the side towards the country; we have added a postern, the sill of which is sufficiently raised above the ground to necessitate the use of a scaling or step ladder, to obtain ingress. The postern is defended, as was customary, by a palisade or barrier, each gate or postern being provided with a work of this kind.”
![]() |
| Fig. 2.—One of the Towers at Carcassonne, inside view. |
![]() |
| Fig. 3.—One of the Towers at Carcassonne, outside view. |
Meanwhile, in western Europe, siegecraft had almost disappeared. Its perfect development was only possible for an army like that of the Romans. The Huns and Goths knew nothing of it, and the efforts of Charlemagne and others of the Frankish kings to restore the art were hampered by the fact that their warriors despised handicrafts and understood nothing but the use of their weapons. During the dark ages the towns of the Gauls retained their old Roman and Visigoth defences, which no one knew properly how to attack, and accordingly the sieges of that period dragged themselves out through long years, and if ultimately successful were so as a rule only through blockade and famine. It was not until the 11th century that siegecraft was revived in the West on the ancient lines.
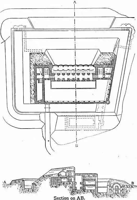
By this time a new departure of great importance had been made in the seigneurial castle (q.v.), which restored for some centuries a definite superiority to the defence. Built primarily as strongholds for local magnates or for small bodies of warriors dominating a conquered country, the conditions which called Castles. them into existence offered several marked advantages. The defences of a town had to follow the growth of the town, and would naturally have weak points. It was not to be expected that a town would develop itself in the manner most suitable for defence; nor indeed that any position large enough for a town could be found that would be naturally strong all round. But the site of a castle could be chosen purely for its natural strength, without regard, except as a secondary consideration, to the protection of anything outside it; and as its area was small it was often easy to find a natural position entirely suited for the purpose. In fact it frequently happened that the existence of such a position was the raison d’être of the castle. A small hill with steep sides might well be unapproachable in every direction by such cumbrous structures as towers and rats, while the height of the hill, added to the height of the walls, would be too much for the besiegers’ missiles. If the sides of the hill were precipitous and rocky, mining became impossible, and the site was perfect for defence. A castle built under such conditions was practically impregnable; and this was the cause of the independence of the barons in the 11th and 12th centuries. They could only be reduced by blockade, and a blockade of long duration was very difficult in the feudal age.
A very instructive example of 12th-century work is the Château Gaillard, built by Richard Cœur-de-Lion in 1196. This great castle, with ditches and escarpments cut out of the solid rock, and extensive outworks, was completed in one year. In the article Castle will be found the plan of the main work, which is here supplemented by an elevation of the donjon (or keep). The waved face of the inner or main wall of the castle, giving a divergent fire over the front, is an interesting feature in advance of the time. So also is the masonry protection of the machicolation at the top of the donjon, a protection which at that time was usually given by wooden hoardings. After the death of Richard, Philip Augustus besieged the château, and carried it after a blockade of seven months and a regular attack of one month. In this attack the tower at A was first mined, after which the whole of that outwork was abandoned by the defenders. The outer enceinte was next captured by surprise; and finally the gate of the main wall was breached by the pioneers. When this happened a sudden rush of the besiegers prevented the remains of the garrison from gaining the shelter of the donjon, and they had to lay down their arms.
Château Gaillard, designed by perhaps the greatest general of his time, exemplifies in its brief resistance the weak points of the designs of the 12th century. It is easy to understand how at each step gained by the besiegers the very difficulties which had been placed in the way of their further advance prevented the garrison from reinforcing strongly the points attacked.
![]() |
| Fig. 4.—Donjon, Château Gaillard. |
In the 13th century many influences were at work in the development of castellar fortification. The experience of such sieges as that of Château Gaillard, and still more that gained in the Crusades, the larger garrisons at the disposal of the great feudal lords, and the importance of the interests which they had to protect in their towns, led to a freer style of design. We must also take note of an essential difference between the forms of attack preferred by the Roman soldiery and by the medieval chivalry. The former, who were artisans as well as soldiers, preferred in siege works the certain if laborious methods of breaching and mining. The latter, who considered all manual labour beneath them and whose only ideal of warfare was personal combat, affected the tower and its bridge, giving access to the top of the wall rather than the rat and battering-ram. They were also fond of surprises, which the bad discipline of the time favoured.
We find, therefore, important progress in enlarging the area of defence and in improving arrangements for flanking. The size and height of all works were increased. The keep of Coucy Castle, built in 1220, was 200 ft. high. Montargis Castle, also built about this time, had a central donjon and a large open enclosure, within which the whole garrison could move freely, to reinforce quickly any threatened point. The effect of flanking fire was increased by giving more projection to the towers, whose sides were in some cases made at right angles to the curtain walls.
We find also a tendency, the influence of which lasted long after medieval times, towards complexity and multiplication of defences, to guard against surprise and localize successful assaults. Great attention was paid to the “step by step” defence. Flanking towers were cut off from their walls and arranged for separate resistance. Complicated entrances with traps and many doors were arranged. Almost all defence was from the tops of the walls and towers, the loopholes on the lower storeys being mainly for light and air and reconnoitring. Machicouli galleries (for vertical defence) were protected either by stone walls built out on corbels, or by strong timber hoardings built in war time, for which the walls were prepared beforehand by recesses left in the masonry. Loopholes and crenelles were protected by shutters. Great care and much ingenuity were expended on details of all kinds.
Already in the 12th century the engineers of the defence had made provision for countermining, by building chambers and galleries at the base of the towers and walls. Further protection for the towers against the pioneer attack was given by carrying out the masonry in front of the tower in a kind of projecting horn. This was found later to have the further advantages of doing away with the dead ground in front of the tower unseen from the curtain, and of increasing the projection and therefore the flanking power of the tower itself. The arrangement is seen in several of the towers at Carcassonne, and has in it the germ of the idea of the bastion.
![]() |
| Fig. 5.—Plan of Carcassonne, 13th century. |
The defences of Carcassonne, remodelled in the latter half of the 13th century on the old Visigoth foundations, exemplify some of the best work of the period. Figs. 5 and 6 (reproduced from Viollet-le-Duc) show the plan of the defences of the town and castle, and a bird’s-eye view of the castle with its two barbicans. The thick black line shows the main wall; beyond this are the lists and then the moat. It will be noted that the wall of the lists as well as the main wall is defended by towers. There are only two gates. That on the east is defended by two great towers and a semicircular barbican. The gate of the castle, on the west, has a most complicated approach defended by a labyrinth of gates and flanking walls, which cannot be shown on this small scale, and beyond these is a huge circular barbican in several storeys, capable of holding 1500 men. On the side of the town the castle is protected by a wide moat, and the entrance is masked by another large semicircular barbican. An interesting feature of the general arrangement is the importance which the lists have assumed. The slight wooden barricade of older times has developed into a wall with towers; and the effect is that the besieger, if he gains a footing in the lists, has a very narrow space in which to work the engines of attack. The castle, after the Roman fashion, adjoins the outer wall of the town, so that there may be a possibility of communicating with a relieving force from outside after the town has fallen. There were also several posterns, small openings made in the wall at some height above the ground, for use with rope ladders.
The siegecraft of the period was still that of the ancients. Mining was the most effective form of attack, and the approach to the walls was covered by engines throwing great stones against the hoardings of the parapets, and by cross-bowmen who were sheltered behind light mantlets moved on wheels. Barrels of burning pitch and other incendiary projectiles were thrown as before; and at one siege we read of the carcasses of dead horses and barrels of sewage being thrown into the town to breed pestilence, which had the effect of forcing a capitulation.
With all this the attack was inferior to the defence. As Professor C. W. C. Oman has pointed out, the mechanical application of the three powers of tension, torsion and counterpoise (in the missile engines) had its limits. If these engines were enlarged they grew too costly and unwieldy. If they were multiplied it was impossible on account of their short range and great bulk to concentrate the fire of enough of them on a single portion of the wall.
It is difficult to give anything like an accurate account, in a small space, of the changes in fortification which took place in the first two centuries after the introduction of gunpowder. The number of existing fortifications that had to be modified was infinite, so also was the number of Introduction of gunpowder. attempted solutions of the new problems. Engineers had not yet begun to publish descriptions of their “systems”; also the new names and terms which came into use with the new works were spread over Europe by engineers of different countries, and adopted into new languages without much accuracy.
Artillery was in use for some time before it began to have any effect on the design of fortification. The earliest cannon threw so very light a projectile that they had no effect on masonry and were more useful for the defence than the attack. Later, larger pieces were made, which acted practically as mortars, throwing stone balls with high elevation, and barrels of burning composition. In the middle of the 15th century the art of cannon-founding was much developed by the brothers Bureau in France. They introduced iron cannon balls and greatly strengthened the guns. In 1428 the English besieging Orleans were entirely defeated by the superior artillery of the besieged. By 1450 Charles VII. was furnished with so powerful a siege train that he captured the whole of the castles in Normandy from the English in one year.
![]() |
| Fig. 6.—Carcassonne Castle and Barbican. |
But the great change came after the invasion of Italy by Charles VIII. with a greatly improved siege train in 1494. The astonishing rapidity with which castles and fortified towns fell before him proved the uselessness of the old defences. It became necessary to create a new system of defences, and, says Cosseron de Villenoisy, “thanks to the mental activity of the Renaissance and the warlike conditions prevailing everywhere, the time could not have been more favourable.” There is no doubt that the engineers of Italy as a body were responsible for the first advance in fortification. There, where vital and mental energy were at boiling-point, and where the first striking demonstration of the new force had been given, the greatest intellects, men such as Leonardo da Vinci, Michelangelo and Machiavelli, busied themselves over the problem of defence.
It has been claimed that Albert Dürer was the first writer on modern fortification. This was not so; Dürer’s work was published in 1527, and more than one Italian engineer, certainly Martini of Siena and San Gallo, had preceded him. Also Machiavelli, writing between 1512 and 1527, had offered some most valuable criticisms and general principles. Dürer, moreover, had little influence on the progress of fortification; though we may see in his ideas, if we choose, the germ of the “polygonal” system, developed long afterwards by Montalembert. Dürer’s work was to some extent a connecting link between the old fortification and the new. He proposed greatly to enlarge the old towers; and he provided both them and the curtains with vaulted chambers for guns (casemates) in several tiers, so as to command both the ditch and the ground beyond it. His projects were too massive and costly for execution, but his name is associated with the first practical gun casemates.
Before beginning to trace the effect of gunpowder on the design of fortification, it may be noted that two causes weakened the influence of the castles. First, their owners were slow to adopt the new ideas and abandon their high strong walls for low extended parapets, and, secondly, they had not the men necessary for long lines of defence. At the same time the corporations of the towns had learnt to take an active part in warfare, and provided trained and disciplined soldiers in large numbers.
When artillery became strong enough to destroy masonry from a distance two results followed: it was necessary to modify the masonry defences so as to make them less vulnerable, and to improve the means of employing the guns of the defence. For both these purposes the older castles with their restricted area were little suited, and we must now trace the development of the fortified towns.
![]() |
| Fig. 7. |
Probably the first form of construction directly due to the appearance of the new weapons was the bulwark (boulevard, baluardo or bollwerk). This was an outwork usually semicircular in plan, built of earth consolidated with timber and revetted The bulwark. with hurdles. Such works were placed as a shield in front of the gates, which could be destroyed even by the early light cannon-balls; and they offered at the same time advanced positions for the guns of the defence. They were found so useful for gun positions for flanking fire that later they were placed in front of towers or at intervals along the walls for that purpose.
This, however, was only a temporary expedient, and we have now to consider the radical modifications in designs. These affected both the construction and trace of the walls.
The first lesson taught by improved artillery was that the walls should not be set up on high as targets, but in some manner screened. One method of doing this in the case of old works was by placing bulwarks in front of them. In other cases the The wall. lists or outer walls, being surrounded by moats, were already partially screened and suitable for conversion into the main defence; and as with improved flanking defence great height was no longer essential, the tops of the walls were in some cases cut down. In new works it was natural to sink the wall in a ditch, the earth from which was useful for making ramparts.
As regards resistance to the effect of shot, it was found that thin masonry walls with rubble filling behind them were very easily destroyed. A bank of earth behind the wall lessened the vibration of the shot, but once a breach was made the earth came down, making a slope easy of ascent. To obviate this, horizontal layers of brushwood, timber and sometimes masonry were built into the earth bank, and answered very well (fig. 7).
![]() | |
| Fig. 8. | Fig. 9. |
Another expedient of still greater value was the use of counterforts. The earliest counterforts were simply buttresses built inward from the wall into the rampart instead of outward (fig. 8). Their effect was to strengthen the wall and make the breaches more difficult of ascent. An alternative arrangement for strengthening the wall was an arched gallery built behind it under the rampart (fig. 9). This construction was in harmony with the idea, already familiar, of a passage in the wall from which countermines could be started; but it has the obvious weakness that the destruction of the face wall takes away one of the supports of the arch. The best arrangement, which is ascribed to Albert Dürer, was the “counter-arched revetment.” This consisted of a series of arches built between the counterforts, with their axes at right angles to the face of the wall. Their advantage was that, while supporting the wall and taking all the weight of the rampart, they formed an obstacle after the destruction of the wall more difficult to surmount than the wall itself and very hard to destroy. The counter-arches might be in one, two or three tiers, according to the height of the wall (figs. 10 and 11, the latter without the earth of the rampart and showing also a countermine gallery).
![]() |
| Fig. 10. |
A more important question, however, than the improvement of the passive defence or obstacle was the development of the active defence by artillery. For this purpose it was necessary to find room for the working of the guns. At the outset it was of course a question of modifying the existing defences at as little cost as possible. With this object the roofs of towers wereThe rampart. removed and platforms for guns substituted, but this only gave room for one or two guns. Also the loopholes in the lower storeys of towers were converted into embrasures to give a grazing fire over the ditch; this became the commonest method of strengthening old works for cannon, but was of little use as the resulting field of fire was so small. In some cases the towers were made larger, with a semicircular front and side walls at right angles to the curtain. Such towers built at Langres early in the 16th century had walls 20 ft. thick to resist battering.
Even in new works some attempts were made to combine artillery defence with pure masonry protection. The works of Albert Dürer in theory, and the bridge-head of Schaffhausen in practice, are the best examples of this. The Italian engineers also showed much ingenuity in arranging for the defence of ditches with masonry caponiers. These were developed from external buttresses, and equally with the casemated flanking towers of Dürer contained the germs of the idea of “polygonal” defence.
![]() |
| Fig. 11. |
The natural solution, however, which was soon generally adopted, was the rampart; that is, a bank of earth thrown up behind the wall, which, while strengthening the wall as already indicated, offered plenty of space for the disposal of the guns.
The ditch, which had only been occasionally used in ancient and medieval fortification, now became essential and characteristic. Serving as it did for the double purpose of supplying earth for a rampart and allowing the wall to be sunk for concealment, it was found also to have a definite use as an obstacle. The ditch.Hitherto the wall had sufficed for this purpose, the ditch being useful mainly to prevent the besieger from bringing up his engines of attack.
When the wall (or escarp) was lowered, the obstacle offered by the ditch was increased by revetting the far side of it with a counterscarp. Beyond the counterscarp wall some of the earth excavated from the ditch was piled up to increase the protection given to the escarp wall. This earth was sloped down gently on the outer side to meet the natural surface of the ground in such a manner as to be swept by the fire from the ramparts and was called the glacis.
Now, however, a new difficulty arose. In all times a chief element in a successful defence has consisted in action by the besieged outside the walls. The old ditches, when they existed, had merely a slope on the far side leading up to the ground-level; and the ditch was a convenient place in which troops preparing for a sortie could assemble without being seen by the enemy, and ascend the slope to make their attack. The introduction of the counterscarp wall prevented sorties from the ditch. At first it was customary, after the introduction of the counterscarp, to leave a narrow space on the top of it, behind the glacis, for a patrol path. Eventually the difficulty was met by widening this patrol path into a space of about 30 ft., in which there was room for troops to assemble. This was known as the covered way.
With this last addition the ordinary elements of a profile of modern fortification were complete and are exemplified in fig. 12.
![]() |
| Fig. 12. |
Up to the gunpowder period the trace of fortifications, that is, the plan on which they were arranged on the ground, was very simple. It was merely a question of an enclosure wall adapted to the site and provided with towers at suitable intervals. The foot of the wall could be seen and defended everywhere, from The trace. the tops of the towers and the machicoulis galleries. The introduction of ramparts and artillery made this more difficult in two ways. The rampart, interposed between the defenders and the face of the wall, put a stop to vertical defence. Also with the inferior gun-carriages of the time very little depression could be given to the guns, and thus the top of the enceinte wall, with or without a rampart, was not a suitable position for guns intended to flank the ditch in their immediate neighbourhood. The problem of the “trace” therefore at the beginning of the 16th century was to rearrange the line of defence so as to give due opportunity to the artillery of the besieged, both to oppose the besiegers’ breaching batteries and later to defend the breaches. At the outset the latter rôle was the more important.
In considering the early efforts of engineers to solve this problem we must remember that for economical reasons they had to make the best use they could of the existing walls. At first for flanking purposes casemates on the ditch level were used, the old flanking towers being enlarged for the purpose. Masonry galleries were constructed across the ditch, containing casemates which could fire to either side, and after this casemates were used in the counterscarps. Some use was also made of the fire from detached bulwarks. It was soon realized, however, that the flanking defence of the body of the place ought not to be dependent on outworks, and that greater freedom was required for guns than was consistent with casemate defence. The bulwark (which in its earliest shape suggests that it was in some sort the offspring of the barbican, placed to protect an entrance) gave plenty of space for guns, but was too detached for security. The enlarged tower, as an integral part of the lines, gave security, and its walls at right angles to the curtain gave direct flanking fire, but the guns in it were too cramped. The blending of the two ideas produced the bastion, an element of fortification which dominated the science for three hundred years, and so impressed itself on the imagination that to this day any strong advanced position in a defensive line is called by that name by unscientific writers. The word had been in use for a long time in connexion with extemporized towers or platforms for flanking purposes, the earliest forms being bastille, bastide, bastillon, and in its origin it apparently refers rather to the quality of work in the construction than to its defensive intention.
![]() |
| Fig. 13.—Bastion at Troyes. |
The earliest bastions were modified bulwarks with straight faces and flanks, attached to the main wall, for which the old towers often acted as keeps; and at first the terms bulwark and bastion were more or less interchangeable. Fig. 13, taken from a contemporary MS. by Viollet-le-Duc, shows a bastion added to the old wall of Troyes about 1528. On the other hand, in fig. 14 (taken from an English MS. of 1559, which again is based on the Italian work of Zanchi published in 1554), we find a a spoken of as “bulwarks” and b b as “bastilions.” The triangular works between the bastilions are described as “ramparts,” intended to protect the curtains from breaching fire. (We may also notice in this design the broad ditch, the counterscarp with narrow covered way, and loopholes indicating counterscarp galleries.)
Towards the end of the 16th century the term “bulwark” began to be reserved for banks of earth thrown up a little distance in front of the main wall to protect it from breaching fire, and it thus reverted to its original defensive intention. The term “bastion” henceforth denoted an artillery position connected by flanks to the main wall; and the question of the arrangement of these flanks was one of the main preoccupations of engineers. Flanks retired, casemated or open, or sometimes in several tiers were proposed in infinite variety.
![]() |
| Fig. 14. |
Thus, while in the early part of the 16th century the actual modification of existing defences was proceeding very slowly on account of the expense involved, the era of theoretical “systems” had begun, based on the mutual relations of flank and face. These can be grouped under three heads as follows:—
1. The crémaillère or indented trace: Faces and flanks succeeding each other in regular order (fig. 15).
![]() | |
| Fig. 15. | Fig. 16. |
2. The tenaille trace: Flanks back to back between the faces (fig. 16). The development of the flanks in this case gives us the star trace (fig. 17).
![]() | |
| Fig. 17. | Fig. 18. |
3. The bastioned trace: Flanks facing each other and connected by curtains (fig. 18).
In comparing these three traces it will be observed that unless casemates are used the flanking in the first two is incomplete. Guns on the ramparts of the faces cannot defend the flanks, and therefore there are “dead” angles in the ditch. In the bastioned trace there is no “dead” ground, provided the flanks are so far apart that a shot from the rampart of a flank can reach the ditch at the centre of the curtain.
Here was therefore the parting of the ways. For those who objected to casemate fire, the bastioned trace was the way of salvation. They were soon in the majority; perhaps because the symmetry and completeness of the idea The bastioned trace. captivated the imagination. At all events the bastioned trace, once fairly developed, held the field in one form or another practically without a rival until near the end of the 18th century. The Italian engineers, who were supreme throughout most of the 16th century, started it; the French, who took the lead in the following century, developed it, and officially never deserted it until late in the 19th century, when the increasing power of artillery made enceintes of secondary importance.
It will be useful at this point to go forward a little, with a couple of explanatory figures, in order to get a grasp of the component parts of the bastioned trace as ultimately developed, and of its outworks.
![]() |
| Fig. 19. |
In fig. 19 ABCD represents part of an imaginary line drawn round the place to be fortified, forming a polygon, regular or irregular.
ABC is an exterior angle or angle of the polygon.
BC is an exterior side.
zz is an interior side.
abcdefghijk is the trace of the enceinte.
bcdef is a bastion.
zdef is a demi-bastion.
de is a face of the bastion.
ef is a flank of the bastion.
fg is the curtain.
bf is the gorge.
(Two demi-bastions with the connecting curtain make the bastioned
front, defghi.)
zd bisecting the exterior angle ABC is the capital of the bastion.
xy is the perpendicular, the proportionate length of which to the
exterior side BC (usually about one-sixth) is an important element
of the trace.
efC is the angle of defence.
BCf is the diminished angle.
cde is the flanked angle or salient angle of the bastion.
e is the shoulder of the bastion.
def is the angle of the shoulder.
efg is the angle of the flank.
The line of the escarp is called the magistral line since it regulates the trace. When plans of fortifications are given without much detail, this line, with that of the counterscarp and the crest of the parapet, are often the only ones shown,—the crest of the parapet, as being the most important line, whence the fire proceeds, being usually emphasized by a thick black line.
![]() |
| Fig. 20. |
Fig. 20, reproduced from a French engraving of 1705, shows an imaginary place fortified as a hexagon with bastions and all the different kinds of outworks then in use. The following is the explanation of its figuring and lettering.
1. Flat bastion: Placed in the middle of a curtain when the lines
of defence were too long for musketry range.
2. Demi-bastion: Used generally on the bank of a river.
3. Tenaille bastion: Used when the flanked angle is too acute;
that is, less than 70°.
4. Redans: Used along the bank of a river, or when the parapet
of the covered way can be taken in reverse from the front.
A, B. Ravelins.
C. Demi-lunes: So called from the shape of the gorge. They
differ from the ravelins in being placed in front of the bastions
instead of the curtains.
D. Counter-guards: Used instead of demi-lunes, which were then
going out of fashion.
E. Simple tenaille.
F.Double tenaille (see L and M).
(If the tenaille E is reduced in width towards the gorge, as shown
alternatively, it is called a swallow-tail. If the double tenaille is
reduced as at G, it is called a bonnet de prêtre. Such works were
rarely used.)
H. Hornwork: Much used for gates, &c.
I.Crown-work.
K. Crowned hornwork.
L. M. New forms of tenaille: (N.B.—These are the forms which
ultimately retained the name.)
N. New form of work called a demi-lune lunettée, the ravelin N
being protected by two counterguards, O.
P. Re-entering places of arms.
Q. Traverses.
R. Salient places of arms.
S. Places of arms without traverses.
T. Orillon, to protect the flank V.
X. A double bastion or cavalier.
Y. A retrenchment with a ditch, of the breach Z.
&. Traverses to protect the terreplein of the ramparts from
enfilade.
Turning back now to the middle of the 16th century we find in the early examples of the use of the bastion that there is no attempt made to defend its faces by flanking fire, the curtains being considered the only weak points of the enceinte. Accordingly, the flanks are arranged at right angles to the curtain, and the prolongation of the faces sometimes falls near the middle of it. When it was found that the faces needed protection, the first attempts to give it were made by erecting cavaliers, or raised parapets, behind the parapet of the curtain or in the bastions.
![]() |
| Fig. 21. |
The first example of the complete bastioned system is found in Paciotto’s citadel of Antwerp, built in 1568 (fig. 21). Here we have faces, flanks and curtain in due proportion; the faces long enough to contain a powerful battery, and the flanks able to defend both curtain and faces. The weak points of this trace, due to its being arranged on a small pentagon, are that the terreplein or interior space of the bastions is rather cramped, and the salient angles too acute.
In the systems published by Speckle of Strassburg in 1589 we find a distinct advance. Speckle’s actual constructions in fortification are of no great importance; but he was a great traveller and observer, and in his work, published The 16th century. just before his death, he has evidently assimilated, and to some extent improved, the best ideas that had been put forward up to that time.
Two specimens from Speckle’s work are well worth studying as connecting links between the 16th and 17th centuries.
Fig. 22 is early 16th-century work much improved. There are no outworks, except the covered way, now fully developed, with a battery in the re-entering place of arms. The bastions are large, but the faces directed on the curtain get little protection from the flanks. To make up for this they are flanked by the large cavaliers in the middle of the curtain. The careful arrangement of the flank should be noted; part of it is retired, with two tiers of fire, some of which is arranged to bear on the face of the bastion. The great saliency of the bastion is a weak point, but the whole arrangement is simple and strong.
![]() |
| Fig 22. |
In the second example, known as Speckle’s “reinforced trace” (fig. 23), we find him anticipating the work of the next century. The ravelin is here introduced, and made so large that its faces are in prolongation of those of the bastions. Speckle’s other favourite ideas are here: the cavaliers and double parapets and his own particular invention of the low batteries behind the re-entering place of arms and the gorge of the ravelin. These low batteries did not find favour with other writers, being liable to be too easily destroyed by the besiegers’ batteries crowning the salients of the covered way.
Speckle’s book is of great importance as embodying the best work of the period. His own ideas are large and simple, but rather in advance of the powers of the artillery of his day.
At the beginning of the 17th century we find the Italian engineers following Paciotto in developing the complete bastioned trace; but they got on to a bad line of thought in trying to reduce everything to symmetry and system. The era of geometrical The 17th century. fortification (or, as Sir George Clarke has called it, “drawing-board” fortification) had already begun with Marchi, and his followers busied themselves entirely in finding geometrical solutions for the application of symmetrical bastioned fronts to such imaginary forms of perimeter as the oval, club, heart, figure of eight, &c. Marchi, however, was one of the first to think of prolonging the resistance of a place by means of outworks such as the ravelin. De Villenoisy says that Busca was the first to discuss the proportions and functions of all the component parts of a front; and Floriani, about 1630, was the last of the important Italians. The characteristics of a good deal of Spanish fortification carried out at this time were, according to the same authority, that the works were well adapted to sites, and the masonry excellent but too much exposed, while the bastions were too small. The Dutch and German schools will be referred to later.
![]() |
| Fig. 23.—Speckle’s Reinforced Trace. |
The French engineers now began to take the lead in adapting the principles already established to actual sites. In the first half of the century the names of de Ville and Pagan stand out as having contributed valuable studies to the advancement of the science. In putting forward their designs they discussed very fully such practical questions as the length of the line of defence, whether this should be governed by the range of artillery or musketry fire, the length of flanks, the use in them of orillons, casemates and retired flanks, the size of bastions, &c.
It is the latter half of the 17th century, however, which is one of the most important periods in the history of fortification, chiefly because it was illuminated by the work of Vauban. It was at this time also that a prodigious output of purely theoretical fortification began, which went on till the French Revolution. Many of the “systems” published at this time were elaborated by men who had no practical knowledge of the subject, some of them priests who were engaged in educating the sons of the upper classes, and who had to teach the elements of fortification among other things. They naturally wrote treatises, which were valuable for their clearness of style; and with their industry and ingenuity the elaboration of existing methods was a very congenial task. Most of these essays took the form of multiplication and elaboration of outworks on an impossible scale, and they culminated in such fantastic extravagances as the system of Rhana, published in 1769 (fig. 24). These proposals, however, were of no practical importance.
The work of the real masters who knew more than they published can always be recognized by its comparative simplicity. The greatest of these was Sebastien le Prestre de Vauban (q.v.). Born in 1633, and busied from his eighteenth year till his death in Vauban. 1707 in war or preparations for war, he earned alike by his genius, his experience, his industry and his personal character the chief place among modern military engineers. His experience alone puts him in a category apart from others. Of this it is enough to say that he took part in forty-eight sieges, forty of which he directed as chief engineer without a single failure, and repaired or constructed more than 160 places. Vauban’s genius was essentially practical, and he was no believer in systems. He would say, “One does not fortify by systems but by common sense.” Of new ideas in fortification he introduced practically none, but he improved and modified existing ideas with consummate skill in actual construction. His most original work was in the attack (see below), which he reduced to a scientific method most certain in its results. It is therefore one of the ironies of fate that Vauban should be chiefly known to us by three so-called “systems,” known as his “first,” “second” and “third.” How far he was from following a system is shown by de Villenoisy, who reproduces twenty-eight fronts constructed by him between 1667 and 1698, no two of which are quite alike and most of which vary very considerably to suit local conditions.
![]() |
| Fig. 24. |
Vauban’s “first system,” as variously described by other writers even in his own time, is pieced together from some of the early examples of his work. The “second system” is the “tower bastion” defence of Belfort and Landau (1684–1688), obviously suggested by a design of Castriotto’s one hundred years earlier; and the “third system” is the front of Neu-Breisach (1698), which is merely Landau slightly improved. In other works, between 1688 and 1698, he did not keep to the tower bastion idea.
It will be convenient to take the “first system,” as reproduced in the Royal Military Academy text book of fortification (fig. 25) as typical of much of Vauban’s work. It may be observed that he sometimes uses the straight flank, and sometimes the curved flank with orillon. Parapets in several tiers are never used, nor cavaliers. The ravelin is almost always used. It is small, having little artillery power and giving no protection to the shoulders of the bastions. Sometimes it has flanks and occasionally a keep.
The tenaille is very generally found. In this form, viz. as a shield to the escarp of the curtain, it was probably invented by him. Fig. 25 shows two forms. In both the parapet of the tenaille had to be kept low, so that the flanks might defend a breach at the shoulder of the opposite bastion, with artillery fire striking within 12 ft. of the base of the escarp. Traverses are used for the first time on the covered way to guard against enfilade fire; and the re-entering place of arms, to which Vauban attached considerable importance, is large.
![]() |
| Fig. 25.—Vauban’s First System. |
For the construction of the trace an average length of about 400 yds. (which, however, is a matter entirely dependent on the site) may be taken for the exterior side. The perpendicular, except for polygons of less than six sides, is one-sixth, and the faces of the bastions two-sevenths of the exterior side. The flanks are chords of arcs struck from the opposite shoulder as centres. An arc described with the same radius, but with the angle of the flank as a centre, and cutting the perpendicular produced outwardly, gives the salient of the ravelin; the prolongations of the faces of the ravelin fall upon the faces of the bastions at 11 yds. from the shoulders. The main ditch has a width of 38 yds. at the salient of the bastions, and the counterscarp is directed upon the shoulders of the adjoining bastions. The ditch of the ravelin is 24 yds. wide throughout.
As regards the profile the bastions and curtain have a command of 25 ft. over the country, 17 ft. over the crest of the glacis and 8 ft. over the ravelin. The ditches are 18 ft. deep throughout. The parapets are 18 ft. thick with full revetments. In his later works he used demi-revetments.
Fig. 26 shows the tower bastions of Neu-Breisach, or the so-called “third system.” It is worth introducing, simply as showing that even a mind like Vauban’s could not resist in old age the tendency to duplicate defences. Here the main bastions and tenaille are detached from the enceinte. The line of the enceinte is broken with flanks and further flanked by the towers. The ravelin is large and has a keep. The section through the face of the bastion shows a demi-revetment with wide berm, and a hedge as an additional obstacle.
After Vauban died, though the theories continued, the valuable additions to the system were few. Among his successors in the early part of the 18th century Cormontaingne (q.v.) has the greatest reputation, though his experience 18th and 19th cen-turies. and authority fell far short of Vauban’s. He was a clear thinker and writer, and the elements of the system were distinctly advanced by him. His trace includes an enlarged ravelin with flanks, the ends of which were intended to close the gaps at the end of the tenaille, and a keep to the ravelin with flanks. He provides a very large re-entering place of arms, also with a keep, the ditches of which are carefully traced so as to be protected from enfilade by the salients of the ravelin and bastion. He was also in favour of a permanent retrenchment of the gorge of the bastion. His works were printed, with many alterations, more than twenty years after his death, to serve as a text-book for the school of Mézières. This school was established in 1748, and from this time forward there was an official school of thought, based on Vauban. Cormontaingne’s work, therefore, represents the modifications of Vauban’s ideas accepted by French engineers in the latter part of the 18th century. The school of Mézières was afterwards replaced by that of Metz, which carried on its traditions. Such schools are necessarily conservative, and hence, in spite of the gradual improvement in ordnance and firearms, we find the main elements of the bastioned system remaining unchanged right up to the period of the Franco-German War in 1870. Chasseloup-Laubat tells us that, before the Revolution, to attempt novelties in fortification was to write one’s self down ignorant. How far the general form of the bastion with its outworks had become crystallized is evident from a cursory comparison of fig. 27 with Vauban’s early work. This figure is the front of the Metz school in 1822, by General Noizet.
![]() |
| Fig. 26.—Neu-Breisach. |
![]() |
| Fig. 27.—Noizet. |
Since, therefore, the official view was that the general outlines of the system were sacred, the efforts of orthodox engineers from Cormontaingne’s time onwards were given to improvements of detail, and mainly to retard breaching operations as long as possible. We find enormous pains being bestowed on the study of the comparative heights of the masonry walls and crest levels; with the introduction here and there of glacis slopes in the ditches, put in both to facilitate their defence and to protect portions of the escarps.
Among the unorthodox two names deserve mention. The first of these is Chasseloup-Laubat (q.v.), who served throughout the wars of the Republic and Empire, and constructed the fortress of Alessandria in Piedmont.
Chasseloup’s main proposals to improve the bastioned system were two:
First, in order to prevent the bastions from being breached through the gaps made by the ditch of the ravelin, he threw forward the ravelin and its keep outside the main glacis. This had the further advantage of giving great saliency to the ravelin for cross-fire over the terrain of the attack. On the other hand, it made the ravelin liable to capture by the gorge. It is probable that this system would have lent itself to a splendid defence by an able commander with a strong force; but under the opposite conditions it has a dangerous element of weakness.
Secondly, in order to get freedom to use longer fronts than those admissible for the ordinary bastioned trace, he proposed to extend his exterior side up to about 650 yds. and to break the faces of his bastions; the portion next the shoulder being defended from the flank of the collateral bastion and coinciding with the line of defence, and the portion next the salient, up to about 80 yds. in length, being defended from a central keep or caponier placed in front of the tenaille. The natural criticism of this arrangement is that it combines some of the defects of both the bastioned and polygonal systems without getting the full advantages of either.
![]() |
| Fig. 28.—Chasseloup-Laubat. |
Fig. 28 shows a half front of Chasseloup’s system, of ordinary length, as actually constructed. The section shows an interesting detail, viz. the Chasseloup mask—a detached mask with tunnels for the casemate guns to fire through, the intention of which is to save them from being destroyed from a distance.
The second name is that of Captain Choumara of the French Engineers, born in 1787, whose work was published in 1827. Two leading ideas are due to him. The first is that of the “independence of parapets.” A glance at any of the plans that have already been shown will show that hitherto the crests of parapets had always been traced parallel to the escarp or magistral line. Choumara pointed out that, while it was necessary for the escarp to be traced in straight lines with reference to the flanking arrangements, there was no such necessity as regards the parapets. By making the crest of the parapet quite independent of the escarp line he obtained great freedom of direction for his fire. The second idea is that of the “inner glacis.” This was a glacis parapet placed in the main ditch to shield the escarp; its effect being to prevent the escarp of the body of the place from being breached in the usual way by batteries crowning the crest of the covered way.
The need for Choumara’s improvements has passed by, but he was in his time a real teacher. One sentence of his strikes a resounding note: “What is chiefly required in fortification is simplicity and strength. It is not on a few little contrivances carefully hidden that one can rely for a good defence. The fate of a place should not depend on the intelligence of a corporal shut up in a small post prepared for his detachment.”
![]() |
| Fig. 29.—Sedan in 1705. |
Before leaving the bastioned system it will be of interest to study a couple of actual and complete examples, one irregular and one regular. Fig. 29 shows the defences of Sedan as they were at the end of the 17th century. One sees the touch of Vauban here and there, but the work is for the most part apparently early 17th century. It will be observed that on the river side of the town the defence consists of very irregular bastions with duplicated wet ditches (see the Dutch style, below); and on the other side, where water is not available, strength is sought for by pushing a succession of hornworks far out.
Fig. 30 is Saarlouis, constructed by Vauban in 1680 in his early manner, a remarkable example of symmetry. Vauban of course never thought of aiming at symmetry, which is of itself neither good nor bad, but it is interesting to note such a perfect example of the system.
It must here be remarked that the reproach of “geometrical” fortification is in no way applicable to the works of Vauban and his immediate successors. The true geometric fortification, which worshipped symmetry as a fetish, marked, as has been already pointed out, the decadence of the Italian school. Vauban and his fellows excelled in adapting works to sites, the real test of the engineer.
The bastioned system was the 17th-century solution of the fortification problem. Given an artillery and musketry of short range and too slow for effective frontal defence, a ditch is necessary as an obstacle. What is the best means of flanking the ditch and of protecting the flanking arrangements? If Vauban elected for the bastion, we must before criticizing his choice remember that he was the most experienced engineer of his day, a man of the first ability and quite without prejudice. What is matter for regret is that the authority of Vauban should have practically paralysed the French school during the 18th and most of the 19th century, so that while the conditions of attack and defence were gradually altering they could admit no change of idea, and their best men, who could not help being original, were struggling against the whole weight of official opposition.
![]() |
| Fig. 30. |
Again, such duplication of outworks as we see at Sedan is not geometric fortification. It is a definite attempt to retard the attack, on ground favourable to it, by successive lines of defence. As to the policy of this, no axiom can be laid down. Nowadays most of us think, as Machiavelli did, that a single line of defence is best and that a second line only serves to suggest the advisability of retreat. There are also, of course, the recognized drawbacks of outworks, difficulty of retreat, of relief and so forth, and the moral effect of their loss. But the engineers of such defences as Ostend and Candia might well say, “Oh, if only when we had held on to that bastion for so many months we had had a second and a third line of permanent retrenchment to fall back upon, we could have held the place for ever.” And who shall say that they were wrong? Let us at all events remember that the leading engineers of that time were men who had passed their lives in a state of war, and that we ourselves in comparison with them are the theorists.
From the end of the 16th century the Dutch methods of fortification acquired a great reputation, thanks to the stout resistance offered to the Spaniards by some of their fortresses, the three years’ defence of Ostend being The Dutch school. perhaps the most striking example. Prolonged defences, which were mainly due to the desperate energy of the besieged, were credited to the quality of their defences. In point of fact the Dutch owed more to nature, and more still to their own spirit, than to art; but they showed a good deal of skill in adapting recent ideas to their needs.
Three conditions governed the development of the Dutch works at this time, viz. want of time, want of money and abundance of water. When the Netherlands began their revolt against Spain, they would no doubt have been glad enough of expensive masonry fortresses on such models as Paciotto’s citadel of Antwerp. But there was neither time nor money for such works. Something had to be extemporized, and fortunately for them they had wet ditches to take the place of high revetted walls. Everywhere water was near the surface, and rivers or canals were available for inundations. A wide and shallow ditch, while making a good obstacle, was also the readiest means of obtaining earth for the ramparts. High command was, owing to the flatness of the country, unnecessary and even undesirable, as it did not allow of grazing fire.
What the Dutch actually did in strengthening their towns gives little evidence of system. Starting as a rule from an existing enceinte, sometimes a medieval wall, they would provide a broad wet ditch. No further provision was usually made on the sides of the town which were additionally protected by a river or inundation. On the other sides the wet ditch was made still broader, and sometimes contained a counterguard, sometimes ravelins and lunettes. These were quite irregular in their design and relation to each other. At the foot of the glacis would be found another but narrower wet ditch, which was a peculiarly Dutch feature; and sometimes if the town was in a bend of a river there would be a canal cut across the bend in a straight line, strengthened by several redans.
Speaking generally, they endeavoured to provide for the want of a first-class masonry obstacle by multiplication of wet ditches, and further to strengthen these obstacles by great quantities of palisading, for which purpose the timber of old ships was used. They also recognized the inherent weaknesses of wet ditches, as, for instance, that when frozen they no longer provide an obstacle; and they studied the means, not only of causing inundations, but also of arranging to empty as well as to fill the ditches at will. Simon Stevin was the leader in this work.
Nevertheless a Dutch school of design did come into existence at this time. The leaders, early in the 17th century, were Simon Stevin, Maurice and Henry of Nassau, Marollois and Freitag. The fortress of Coevorden, constructed by Prince Maurice, of which fig. 31 shows a front, is a well-known example of this, and the section shows clearly some typical features of the school.
![]() |
| Fig. 31.—Coevorden. |
The elements of the plan are those of the early bastioned trace, but we find added both ravelins and lunettes, very regular in design. There is also the ditch at the foot of the glacis, and surrounding the rampart of the enceinte a continuous fausse-braie. This work, which partook of the nature of both boulevard and counterguard, served several purposes. It was desirable that the weight of the rampart should be drawn back a little from the edge of the ditch, and the fausse-braie filled what would otherwise have been dead ground at the foot of the rampart. It also afforded a grazing fire over the ditch, which was very important, and which the rampart supported by a plunging fire.
![]() |
| Fig. 32.—Coehoorn’s First System. |
Coehoorn (q.v.), the contemporary and nearest rival to Vauban, was the greatest light of the Dutch school. Like Vauban he was distinguished as a fighting engineer, both in attack and defence; but in the attack he differed from him in Coehoorn. relying more on powerful artillery fire than systematic earthworks. He introduced the Coehoorn mortar. His “first system,” which was employed at Mannheim (fig. 32), is reproduced for the sake of comparison with the Coevorden front designed a hundred years earlier. Among other points will be noticed the combination of wet and dry ditches; the very broad main ditch with counterguard; the roomy keep of the ravelin; the expansion of the fausse-brais into an independent low parapet; and the powerful flanking fire in three tiers.
The “tenaille” system and the “polygonal” system which grew out of it are mainly identified with the German school. That school, says von Zastrow, does not, like that of France, represent the authoritative teaching of an German school. official establishment, but rather the general practice of the German engineers. It was founded on the principles of Dürer, Speckle and especially Rimpler, and much influenced in execution by Montalembert. “The German engineers desired a simple trace, a strong fortification with retrenchments and keeps, bomb-proof accommodation and an organization suitable for an offensive defence.”
These had always been the German principles. Already in the 16th century the Prussian defences of Kustrin, Spandau and Peitz had large bomb-proof casemates sufficient for a great part of the garrison. The same thing is seen in the defences of Giogau, Schweidnitz, &c., built by Frederick the Great. These works show various applications of the tenaille system. In 1776 Frederick became acquainted with the work of Montalembert, and his influence is seen in the casemates of Kosel.
Whether through the influence of Albert Dürer or not cannot be said, but while the bastion was being developed in France the tenaille and the accompanying casemates from the first found acceptance in Germany, and thence in eastern and northern Europe. De Groote, who wrote in 1618, produced a sort of tenaille system, and may have been the inspiration of Rimpler. Dillich (1640), Landsberg the elder (1648), Griendel d’Aach (1677), Werthmuller (1685) and others advocated both bastion and tenaille, sometimes in combination; the German bastion being usually distinguished by short faces and long flanks.
Rimpler, who was present at the siege of Candia (taken by the Turks in 1669) and died at that of Vienna in 1683, exercised a great influence. He had been struck by the weakness of the early Italian bastions at Candia, and published a book in 1673 called Fortification with Central Bastions, which was practically the polygonal trace. Zastrow thinks that Rimpler inspired Montalembert. He left unfortunately no designs to illustrate his ideas.
![]() |
| Fig. 33. |
Landsberg the younger (1670–1746), a major-general in the Prussian service, who saw many sieges, also had a great influence. He appears to have been the first who frankly advocated the tenaille alone, chiefly on the ground that the flank, which was the most important part of the bastioned system, was also the weakest. Fig. 33 shows his system, published in 1712.
It was, however, ultimately a Frenchman, Marc René Montalembert (q.v.), who was the great apostle of the tenaille, though in his later years he leaned more to the polygonal trace. He objected to the bastioned trace on many grounds; principally that the bastion was a shell trap, that the flanks by Montal-embert and Carnot. crossing their fire lost the advantage of the full range of their weapons, and that the curtain was useless for defence. He took the view that the bastions with their ravelins constituted practically a tenaille trace, spoilt by the detachment of the ravelins and cramped by the presence of the curtains and flanks. His tenaille system consisted of redans, with salient angles of 60° or more, flanking each other at right angles; from which he gave to his system the name of “perpendicular fortification.”
Lazare Carnot (q.v.), the “Organizer of Victory,” was, in fortification, a follower of Montalembert, and produced in 1797 a tenaille system (fig. 34) on strong and simple lines.
![]() |
| Fig. 34. |
![]() |
| Fig. 35.—Mortar-casemate and Detached Wall. |
![]() |
| Fig. 36.—Montalembert, 1786. |
In 1812 Carnot offered three systems. For a dry and level site he recommended a bastioned trace; but for wet ditches and for irregular ground, tenaille traces. Both of these latter differ from his 1797 trace in that the re-entering angle is reinforced by a tenaille whose faces are parallel to the main faces and reach almost to the salients. There are also counterguards in front of the salients, whose ends overlap the ends of the tenaille. (N.B. To avoid confusion between the tenaille trace and the tenaille, it should be noted that the latter is a low detached parapet placed in front of the escarp of the body of the place, partly as a shield, and partly as an additional line of defence. It is used in front of the curtain in the bastioned trace, and in the re-entering angle in the tenaille trace.)
Other important features of Carnot’s work were: a continuous general retrenchment, or interior parapet, following more or less the lines of the main parapet; the use of the detached wall in place of the escarp revetment; and the countersloping glacis. This last (of which Carnot was not the inventor), instead of sloping gently outwards from a crest raised about 8 ft. down to the natural level of the ground, sloped inwards from the ground-level to the bottom of the ditch. The advantage of the additional obstacle of the counterscarp was thus lost to the defence. On the other hand, the besiegers’ saps, as they progressed down the glacis, were exposed to a plunging fire from the parapet.
Carnot was also, like Coehoorn, a great believer in the mortar; but while Coehoorn introduced the small portable mortar that bears his name, Carnot expected great results from a 13 in. mortar throwing 600 iron balls at each discharge. He endeavoured to prove mathematically that the discharge of these mortars would in due course kill off the whole of the besieging force. These mortars he emplaced in open fronted mortar-casemates, in concealed positions. Fig. 35 shows in section one of these mortar-casemates, placed between the parapet of the retrenchment and a detached wall.
The leading idea of Montalembert was that for a successful defence it was necessary for the artillery to be superior to that of the enemy. This idea led him to the adoption of casemates in several tiers; in preference to open parapets, exposed to artillery fire of all kinds, high The polygonal trace. angle, ricochet and reverse. In considering the defects of bastions he had arrived at the conclusion that for flanking purposes two forms of trace were preferable; either the tenaille form, connecting the ravelins with the body of the place, or the form in which the primary flanking elements, instead of facing each other with overlapping fire, as with the bastions, should be placed back to back in the middle of the exterior side. Fig. 36 is an example of this. The central flanking work resulting from this arrangement is the caponier of the early Italians, reintroduced and developed; and with it Montalembert laid the foundation of the polygonal system of our own time.
Montalembert was one of the first to foresee the coming necessity for detached forts, and it was for these that he chiefly proposed to use his caponier flanking, preferring the tenaille system for large places. In abandoning the bastioned trace he was already committed to the principle of casemate defence for ditches; and the combination of this principle with his desire for an overwhelming artillery defence led him in the course of years of controversial writing into somewhat extravagant proposals. For instance, for a square fort of about 400 yds. side, he proposed over 1000 casemate guns; and one of his caponier sections shows 10 tiers of masonry gun-casemates one above the other. Confiding in the power of such an artillery, he freely exposed the upper parts of his casemates to direct fire.
Montalembert is said to have contributed more new ideas to fortification than any other man. His designs must be considered in some ways unworkable and unsound, but all the best work of the 19th century rests on his teaching. The Germans, who already used the tenaille system and made free provision of bomb-proof casemates, took from him the polygonal trace and the idea of the entrenched camp.
The polygonal system in fortification implies straight or slightly broken exterior sides, flanked by casemated caponiers. The caponier is the vital point of the front, and is protected in important works by a ravelin and keep. The essence of the system is its simplicity, which allows of its being applied to any sort of ground, level or broken, and to long or short fronts.
![]() |
| Fig. 37.—Front at Posen. |
The final period of smooth bore artillery is an important one in the history of fortification. It is true that the many expensive works that were constructed at this time were obsolete almost as soon as they were finished; but this was inevitable, thanks to the pace at which the world was 1815–1855, entrenched camps. travelling. After the Napoleonic wars the Germanic Confederation began to strengthen its frontiers; and considering that they had not derived much strategic advantage from their existing fortresses, the Germans took up Montalembert’s idea of entrenched camps, utilizing at the same time his polygonal system with modifications for the main enceintes. The Prussians began with the fortresses of Coblenz and Cologne; later Posen, Königsberg and other places were treated on the same lines. The Austrians constructed, among other places, Linz and Verona. The Germanic Confederation reinforced Mainz with improved works, and reorganized entirely Rastatt and Ulm. The Bavarians built Germersheim and Ingolstadt. While all these works were conceived in the spirit of Rimpler and Montalembert, they showed the differences of national temperament. The Prussian works, simple in design, relied upon powerful artillery fire, and exposed a good deal of masonry to the enemy’s view. The Austrians covered part of their masonry with earth and gave more attention to detail.
The German development of the polygonal system at this time is not of great importance, since the great masonry caponiers were designed without sufficient consideration for the increasing powers of artillery. One example (fig. 37) is given for the sake of historical comparison. It is a front of Posen.
“The exterior side of the front is about 650 yds. (600 metres) long. It is flanked by a central caponier, which is protected by a detached bastion.... The main front is broken back to flank the faces of the bastion from casemates behind the escarp, as well as from the parapet.
“The central caponier forms the keep of the whole front and sweeps both the interior and the ditch by its flanking fire. It has two floors of gun-casemates and one for musketry, and on the top is a parapet completely commanding alike the outworks and the body of the place.Posen. It contains barrack accommodation for a battalion of 1000 men, and has a large inner courtyard closed at the gorge by a detached wall. The caponier is itself flanked by three small caponiers at the head, and one at the inner end of each flank.
“The escarp of the body of the place is a simple detached wall; that of the detached bastion is either a detached wall with piers and arches, or a counter-arched revetment. At the salient of the bastion there is a mortar battery under the rampart, and a casemated traverse for howitzers upon the terreplein. The flanks of the bastion are parallel to those of the caponier, and at the same distance from it as the faces.
“Masonry blockhouses, loopholed for musketry, are provided as keeps of the re-entering and salient places of arms. In the latter case they have stairs leading down into a counterscarp gallery, which serves as a base for countermine galleries, and is connected with the detached bastion by a gallery under the ditch. The counterscarp is not revetted if the ditch is wet.
“The angle of the polygon should not be less than 160°, in order that the prolongation of the main ditch may fall within the salients of the detached bastions of the neighbouring fronts, and the masonry of the caponiers may thus be hidden from outside view.” (R.M.A. Text-book of F. & M.E., 1886.)
We have now reached a period when the “detached fort” becomes of more importance than the organization of the enceinte. The early conception of the rôle of detached forts in connexion with the fortress was to form an entrenched camp within which an army corps could seek safety The detached fort. if necessary. The idea had occurred to Vauban, who added to the permanent defences of Toulon a large camp defended by field parapets attached to one side of the fortress. The substitution of a ring of detached forts, while giving it the greater safety of permanent instead of field defences, gave also a wider area and freer scope for the operations of an army seeking shelter under the guns of a fortress, and at the same time made siege more difficult by increasing the line of investment. The use of the detached fort as a means of protecting the body of the place from bombardment had not yet been made necessary by increased range of artillery.
When these detached forts were first used by Germany the scope of the idea had evidently not been realised, as they were placed much too close to the fortress. Those at Cologne, for instance, were only some 400 or 500 yds. in advance of the ramparts. The same leading idea is seen in most of these forts as in the new enceintes; i.e. a lunette, with a casemated keep at the gorge. The keep is the essential part of the work, the rampart of the lunette serving to protect it from frontal artillery fire. The keep projects to the rear, so as not only to be able to flank its own gorge, but to give some support to the neighbouring works with guns protected from frontal fire. This is a valuable arrangement, which is still sometimes used. The front ditches of the lunettes were flanked by caponiers. Some of the larger forts were simple quadrangular works with casemate barracks and caponier ditch defence.
In 1830, in Austria, the archduke Maximilian made an entirely fresh departure with the defences of Linz. The idea was to provide an entrenched camp at the least possible cost, whose works should require the smallest possible garrison. With this object Linz was surrounded with a belt of circular towers spaced about 600 yds. apart. The towers, 25 metres in diameter, were enclosed by a ditch and glacis, and contained 3 tiers of casemates. The masonry was concealed from view by the ditch and glacis. On the top of the tower was an earth parapet, over which a battery of 13 guns fired en barbette. In order to find room for so many guns in the restricted space, the whole 13 were placed parallel and close together on a single specially designed mounting.
This new departure was received with a certain amount of approval at the time, which is somewhat difficult to account for, as a more faulty system could hardly be devised; but the experiment was never repeated.
The credit for much of the clear views and real progress made in Germany during this period is due to General von Brese-Winiari, inspector-general of the Prussian engineers.
France, for a few years after 1815, could spare little money for fortifications, and nothing was done but repairs and minor improvements on the old lines. Belgium, having some money in hand, rebuilt and improved in detail a number of bastioned fortresses which had fallen into disrepair.
![]() |
| Fig. 38. |
In 1830 France began to follow the lead of Germany with entrenched camps. The enceinte of Paris was reconstructed, and detached forts were added at a cost, according to von Zastrow, of £8,000,000. The Belgian and German frontiers of France being considered fairly protected by the existing fortresses, they turned their attention to the Swiss and Italian frontiers, and constructed three fortresses with detached forts at Belfort, Besançon and Grenoble. The cost of the new works at Lyons was, according to the same writer, £1,000,000 without the armament. Here and elsewhere the enceinte was simplified on account of the advanced defences. That of Paris, which was influenced by political considerations, was a simple bastioned trace with rather long fronts and without ravelins or other outworks; the escarp was high and therefore exposed, and the counterscarp was not revetted.
As regards the detached forts there was certainly a want of clearness of conception. Those of Paris were simply fortresses in miniature, square or pentagonal figures with bastioned fronts and containing defensible barracks. Those of Lyons were much more carefully designed, but the authors wavered between two ideas. Unwilling to give up the bastion, but evidently hankering after the new caponiers, they produced a type which it is difficult to praise. The larger works were irregular four- or five-sided figures with bastioned fronts; and practically the whole interior space was taken up by a large keep, with its ditch, on the polygonal system. The smaller works, instead of a keep, had defensible barracks in the gorge.
![]() |
| Fig. 39. |
During the period 1855–1870 a considerable impulse was given
to the science of fortification, both by the Crimean War and the
arrival of the rifled gun. One immediate result of these
was the condemnation of masonry exposed to artillery
fire. The most important work of the period was the
Period
from 1855
to 1870.
new scheme of defence of Antwerp, initiated in 1859.
This is chiefly interesting as giving us the last and finest expression
of the medieval enceinte, at a time when the war
between the polygonal and bastioned traces was still raging,
though the boom of the long-range guns had already given
warning that a new era had begun. Antwerp is also associated
with the name of General Brialmont (q.v.), of the
Belgian engineers, whom posterity will no doubt regard as
the greatest writer on fortification of the latter half of the
19th century.
![]() |
| Fig. 40.—Sections of fig. 39. |
We give in figs. 38, 39 and 40 the general plan of the 1859 defences of Antwerp, the plan of a front of the enceinte, and its sections, as showing almost the last word of fortification before the arrival of high explosives.Antwerp.
The defences of Antwerp were designed, as the strategic centre of the national defence of Belgium, for an entrenched camp for 100,000 men. The length of the enceinte is about 9 m. The detached forts, which on the sides not defended by inundation are about 114 m. apart and from 2 to 3 m. in front of the enceinte, are powerful works, arranged for a garrison of 1000 men. They have each a frontal crest-line of over 700 yds. and are intended for an armament of 120 guns and 15 mortars.
The general arrangement of the fronts of the enceinte should be compared with the earlier German type of Posen. It will be noticed that while the large casemated caponier at Posen breaks the enceinte and flanks it both without and within, at Antwerp the caponier is detached—a much sounder arrangement—and flanks the front only. The defence of the faces rests on the width of the wet ditches and on the flanking power of the caponier; there is no attempt to add to it by fausse-braie or detached wall. The dimensions are everywhere very generous, allowing free movement for the troops of the defence; the covered way is 22 yds. wide and there is a double terreplein on the face. The parapet of the face is 27 ft. thick. The masonry of the casemate guns in the caponier, first flank and low battery, is protected by earth, à la Haxo.
In 1859 Austria acknowledged the influence of the new artillery with some new forts at Verona. The detached forts built by Radetzky in 1848 were only from 1000 to 2000 yds. distant from the ramparts. Those now added, of which fig. 41 is an example, were from 3000 to 4000 yds. out.
![]() |
| Fig. 41.—Austrian Fort at Verona. |
In the same year the land defences of some of the British dockyards were taken in hand. These first serious attempts at permanent fortification in England were received with approval on the continent, as constituting an advance on anything that had been done before. The detached forts intended to keep an enemy outside bombarding distance were roomy works with small keeps. The parapets were organized for artillery and the ditches were defended by caponiers or counterscarp galleries. The forts were spaced about a mile apart and arranged so as to support each other by their fire.
The sieges of the Franco-German War of 1870 are alluded to in the section below dealing with the “Attack of Fortresses.” As regards their effect on the designs of fortification the most important thing to note is the distance to Period from 1870 to 1885. which it was thought necessary to throw out the detached forts. These distances were of course influenced by the character of the ground, but for the most part they were very largely increased. Thus at Paris the fort at St Cyr was 18,000 yds. from the enceinte; at Verdun the distances varied from 2300 to 12,000 yds.; at Belfort the new forts were from 4500 to 11,500 yds. out; at Metz 2300 to 4500; and at Strassburg 5200 to 10,000. One result of these increased distances was of course to increase very largely the length of the zone of investment, and therefore the strength necessary for the besieging force.
As regards the character of the works, the typical shape adopted both in France and Germany was a very obtuse-angled lunette, shallow from front to rear. The German type had one parapet only, which was organized for artillery and heavily traversed, the living casemates being under this parapet. The ditch defence was provided for by caponiers and a detached wall (see fig. 42).
The French forts had two parapets, that in the rear being placed over living casemates (in two tiers, as shown in the section of fig. 43 by a dotted line), and commanding the front one. There was a long controversy as to whether the artillery of the fort should be on the upper or the lower parapet, the advocates of the upper parapet attaching great importance to the command that the guns would have over the country in front. The other school, objecting to having guns on the skyline, preferred to sacrifice the command and place them on the lower parapet, as in fig. 43, the infantry occupying the upper parapet. It will be observed that the bastioned trace is abandoned, the ditches, like those of the German fort, being defended by caponiers.
![]() |
| Fig. 42.—German Fort about 1880. |
![]() |
| Fig. 43.—French Fort about 1880. |
While a great deal of work was done on these lines, a very active controversy had already begun on the general question as to whether guns should be employed in forts at all. Some declared that the accuracy and power of artillery had already developed so far, that guns in fixed and visible positions must needs be put out of action in a very short time. The remedy proposed by these was the removal of the guns from the forts into “wing-batteries” which should be less conspicuous; but soon the broader idea was put forward of placing the guns in concealed positions and moving them from one to another by means of previously prepared roads or railways. Others declared that there was no safety for the guns outside the forts, and that the use of steel turrets and disappearing cupolas was the only solution of the difficulty. General Brialmont, who had by this time become the first European authority on fortification questions, ranged himself on the side of the turrets. The younger school were largely in favour of mobility and expressed themselves eagerly in a shower of pamphlets.
It was at this juncture that a new factor was introduced, namely, the obus-torpille, or long shell with high-explosive bursting charge. With its appearance we say good-bye to the old school and enter upon the consideration of the fortification of to-day.
II. Modern Permanent Fortification
Modern fortification dates by universal consent from 1885. The Germans had begun experiments a year or two before this, with long shell containing large charges of gun-cotton. But it was the experiments at Fort Malmaison in France High-angle fire with long shell. in 1886 that set the military world speculating on the future of fortification. The fort was used as a target for 8-in. shell of five calibres length containing large charges of melinite. The reported effects of these made a tremendous sensation, and it was thought at first that the days of permanent fortification were over. Magazine casemates were destroyed by a single shell, and revetment walls were overturned and practicable breaches made by two or three shells falling behind them. It must be remembered, however, that the works were not adapted to meet this kind of fire. The casemates had enough earth over them to tamp the shell thoroughly, but not enough to prevent it from coming into contact with the masonry, and the latter was not thick enough to resist the explosion of the big charges. Other experiments were made in the same direction in Germany, Holland, Belgium and Austria. The Germans used shell containing from 60 to 130 ℔ of high explosive.
![]() |
| From Plessix and Legrand’s Manuel complet de la fortification, by permission. |
| Fig. 44.—Metz in 1899. |
After the first alarm had subsided foreign engineers set about adapting their works to meet the new projectiles. Revetments were enormously strengthened, and designed so that their weight resisted overturning. Concrete roofs were made from 6 to 10 ft. thick, and in many cases the surface of the concrete was left bare so as to expose a hard surface to the shell without any earth tamping. The idea of cupolas and shielded guns gained ground, and is now practically accepted all over the continent of Europe. In many cases the main armament, in some only the safety armament (see below), is in cupolas in the forts.
But meanwhile Europe had been flooded with literature on the subject, and the whole policy of fortification as well as its minutest details were discussed ab ovo. The extremists of both sides revelled in their opportunity. Some declared that, with the use of heavy guns and armour, fortresses could be made stronger than ever. Others held that modern fortresses were far too expensive, that their use led to strategic mistakes, and (arguing from certain well-known examples) that extemporized field defences could offer as good a resistance as permanent works.
European military opinion generally is now more or less agreed on the following lines:—
1. Important places must be defended by fortresses.
2. Their girdle of forts must be far enough out to prevent the bombardment of the place.
3. An enceinte is desirable, but need not be elaborate.
4. A few guns (called “safety armament”) should be in the forts, and these must be protected by armour.
5. The bulk of the artillery of the defence should be outside the forts; the direct-fire guns preferably in cupolas, the howitzers in concealed positions.
6. The forts should be connected by lines of entrenched infantry positions and obstacles, permanent bomb-proof shelters being provided for the infantry.
7. There should be ample communications—radial and peripheral—between the place and the forts, both by road and rail.
8. Special lines of communication—such as mountain passes—should be closed by barrier forts.
These considerations will now be taken somewhat more in detail, but first it will be useful to deal with the plan of Metz in 1899 (fig. 44).
Here the fortifications of successive periods can be readily recognized. First the old enceinte, unaltered by the Germans and now déclassée. Next the detached forts, begun by the French engineers in 1868 and still unfinished in 1870, can be readily recognized by their Metz.bastioned trace. Among them are Fort Manteuffel, formerly St Julien, and Fort Goeben (fig. 45), formerly Queuleu. These were not altered in their general lines.
![]() |
| From Plessix and Legrand’s Manuel complet de la fortification, by permission. |
| Fig. 45.—Fort Goeben, Metz. |
This early line of detached forts, less than 3000 yds. from the enceinte, was completed by the Germans with forts of polygonal type such as Fort Prinz August. The hill of St Quentin (fig. 46), a very important point, was converted into a fortified position, with two forts and connecting parapets, and a communication running north to Fort Alvensleben.
The arrangement of wing batteries in connexion with the forts can be clearly noted at Fort Manteuffel. These are reinforced by other batteries either for the defence of the intervals or to dominate important lines of approach such as the valley of the Moselle (canal battery at Montigny). To these were added later armoured batteries.
There are also infantry positions, shelters and magazines in connexion with this line.
Finally some new forts of modern type were commenced in 1899 at about 9000 yds. from the place.
Leaving out of consideration at present the strategic use of groups of fortresses, the places which, as mentioned above, are intrinsically worth being defended as fortresses are:—Fortresses.
(a) Centres of national, industrial or military resources.
(b) Places which may serve as points d’appui for manœuvres.
(c) Points of intersection of important railroads.
(d) Bridges over considerable rivers.
(e) Certain lines of communication across a frontier.
Examples of (a) are Paris, Antwerp, Lyons, Verdun. Again for (a) and (b), as is pointed out by Plessix and Legrand, Metz in the hands of the Germans may serve both as a base of supplies and a point d’appui for one flank. Strassburg is a bridge-head giving the Germans a secure retreat across the Rhine if beaten in the plains of Alsace, and an opportunity of resuming the offensive when they have re-formed behind the river.
![]() |
| From Plessix and Legrand’s Manuel complet de la fortification, by permission. |
| Fig. 46.—St Quentin position, Metz. |
The distance of detached forts from the place depends on the range of the siege artillery and the distance at which it can usually be established from the forts, and is variously given by different continental writers at from 4 to 9 km. (4500 to 10,000 yds.). The ring of detached forts.The bombarding range of siege howitzers with heavy shells is considered to be about 8000 yds., and if it is possible for them to be emplaced within say 2000 yds. of the forts, this would give a minimum distance of 6000 yds. from the forts to the body of the place. Some writers extend the minimum distance to 7 km., or nearly 8000 yds. In practice, however, it must happen that the position of the forts is determined to a very large extent by the lie of the ground. Thus some good positions for forts may be found within 4000 or 5000 yds. of the place, and no others suitable on the same front within 15,000 yds. In that case the question of expense might necessitate choosing the nearer positions. Some examples of the actual distances of existing forts have already been given. Others, more recent, are, at Bucharest 7-10 km., Lyons 8-1012, Copenhagen 7-8 and Paris 14-17. Strategic pivots are in a different category from other fortresses. While not necessarily protected from bombardment, they may yet have one or two forts thrown out from 9 to 12 km., to get advantage of ground. Such are Langres, Epinal and Belfort.
The Enceinte.—The desirability of this is almost universally allowed; but often it is more as a concession to tradition than for any solid reason. The idea is that behind the line of forts, which is the main defensive position, any favourable points that exist should be provisionally fortified to assist in a “step-by-step” defence: and behind these again the body of the place should be surrounded by a last line of defence, so that the garrison may resist to the last moment. It may be remarked that apart from the additional expense of an enceinte, such a position would not, under modern conditions, be the most favourable for the last stages of a defence. Again, there is the difficulty that it is practically impossible to shut in a large modern town by a continuous enceinte. It has been proposed to construct the enceinte in sections in front of the salient portions of the place. This system of course abandons several of the chief advantages claimed for an enceinte.
In actual practice enceintes have been constructed since 1870 in France and other countries, consisting of a simple wall 10 or 12 ft. high with a banquette and loopholes at intervals. This of course can only be looked upon as a measure of police. For war purposes, in face of modern artillery, it is a reductio ad absurdum.
The Safety Armament.—If the bulk of the artillery is to be placed in positions prepared on the outbreak of war, it is considered very necessary that a few heavy long-range guns should be permanently in position ready at any moment to keep an enemy at a distance, forcing him to open his first batteries at long range and checking the advance of his investment line. Such guns would naturally be in secure positions inside the forts, and if they are to be worked from such positions they must have armour to shield them from the concentrated fire of the numerous field artillery that a besieger could bring to bear from the first.
Artillery outside the forts constitutes the most important part of the defence, and there is room for much discussion as to whether it should have positions prepared for it beforehand or should be placed in positions selected as the attack develops itself. On the one hand the preparation of the positions beforehand, The question of artillery positions.which in many cases means the use of armour and concrete, increases very largely the initial expense of the defence, and ties the defender somewhat in the special dispositions that become desirable once the attack has taken shape. Moreover, such expenditure must be incurred on all the fronts of the fortress, whereas the results would only be realized on the front or fronts actually attacked. On the other hand much time and labour are involved in emplacing heavy and medium artillery with extemporized protection, and this becomes a serious consideration when one remembers how much work of all kinds is necessary in preparing a fortress against attack. Again, to avoid the danger of a successful attack on the intervals between the forts before their defences have been fully completed, the fire of the guns in the intermediate positions might be urgently required. The solution in any given case would no doubt depend on the importance of the place. In most cases a certain amount of compromise will come in, some preparation being made for batteries, without their being completed. Armoured batteries of whatever kind must in any case be prepared in peace time. It should not be overlooked that as, whatever theories may exist about successive lines of defence, the onus of the defence will now lie on the fort line, just as it formerly did on the enceintes, so that line should be fully prepared, and should not have to commence its fight in a position of inequality.
<![]() |
| From Brialmont’s Progrès de la défense des états et de la fortification permanente depuis Vauban, by permission of M. le Commandant G. Meeüs. |
| Fig. 47. |
Defence of Intervals of Forts.—The frontal fire of the batteries in the intervals and the flanking fire of some of the guns in the forts will play an important part, but the main reliance should be on infantry defence. A fully prepared fortress would have practically a complete chain of infantry fighting positions and obstacles between the forts, at all events on the fronts likely to be seriously attacked. The positions would consist largely of fire trenches, with good communications; but it is pretty generally recognized that there must be some points d’appui in the shape of redoubts or infantry forts, and also bomb-proof shelter for men, ammunition and stores near the fighting line. This is usually included in the redoubts. If they are to resist the heaviest shell, such shelters must be built in peace time.
Communications are of the first importance, not merely to facilitate the movement of the enormous stores of ammunition and materials required in the fighting line, but also that defenders may fully utilize the advantage of acting on interior lines. They should include both railways and roads running from the centre of the place to the different sectors of defence, and all round, in rear of the line of forts; also ample covered approaches to the fighting line. Concealment is essential, and where the lie of the ground does not help, it must be got from earth parapets or plantations.
The principal use of barrier forts is in country where the necessary line of communication cannot be easily diverted. For instance, in a comparatively flat country a barrier fort commanding a road or railway is of little use because roads may be found passing round it, or a line Barrier forts. of railway may be diverted for some miles to avoid it. But in mountainous country, where such diversion is impossible, it will be necessary for the enemy to capture the fort before he can advance; and the impossibility of surrounding it, the few positions from which siege artillery can be brought into play, and the fact that there is practically only one road of approach to be denied, make these positions peculiarly suitable for forts with armoured batteries. Italy makes considerable use of such forts for the defence of frontier passes.
General Brialmont’s Theoretical Claim for the Defence of a Country.—Before going into details, it is worth while to state the full claim of strategic fortification advanced by General Brialmont, the most thorough of all its advocates. It is as follows:—
A. Fortify the capital.
B. Fortify the points where main lines of communication pass a strategic barrier.
C. Make an entrenched camp at the most important centre of communication in each zone of invasion: and support it by one or two places arranged so as to make a fortified district.
D. Close with barrier forts the lines necessary to an enemy across mountains or marshes.
E. Make a central place behind a mountain chain as a pivot for the army watching it.
F. Defend mountain roads by provisional fortifications.
G. Make a large place in each theatre of war which is far from the principal theatre, and where the enemy might wish to establish himself.
H. Fortify coasts and harbours.![]() |
| From Brialmont’s Progrès de la défense des états et de la fortification depuis Vauban, by permission of Commandant G. Meeüs. |
| Fig. 48. |
Objections to these proposals will be readily supplied by the officials of the national treasury and the commanders-in-chief of the active armies.
So many types of detached forts have been proposed by
competent authorities, as well as actually constructed
in recent years, that it is impossible here to consider
all of them, and a few only will be reproduced of
those which are most representative Types of
detached forts.
of modern continental
thought.
Taking first the type of heavily armed fort, which contains guns for the artillery fight as well as safety armament, we must give precedence to General Brialmont. The two works here shown are taken from the Progrès de la défense des états, &c., published in 1898. The pentagonal fort (fig. 47) has two special features. In section 1 is shown a concrete infantry parapet, with a gallery in which the defenders of the parapet may take shelter from the bombardment preceding an assault. In section 2 it will be seen that the counterscarp galleries flanking the ditch are drawn back from the face of the counterscarp. This is to counteract proposals that have been made to obscure the view from the flanking galleries, and perhaps drive the defenders out of them by throwing smoke-producing materials into the ditch at the moment of an assault. The arrangement may save the occupants of the galleries from excessive heat and noxious fumes, but will not of course prevent the smoke from obscuring the view.
The following points may be noticed about this design in comparing it with earlier types. There is no escarp, the natural slope of the rampart being carried down to the bottom of the ditch. There is a counterscarp to the faces, but no covered way. The flanks have no counterscarp, but a steel fence at the foot of the slope, and the covered way which is utilized for a wire entanglement which is under the fire of the parapet. The gorge has a very slight bastioned indentation, which allows for an efficient flanking of the ditch by a couple of machine guns placed in a single casemate on either side.
The abolition of the covered way as such is noteworthy. It marks an essential difference between the fort and the old enceinte profiles; showing that offensive action is not expected from the garrison of the fort, and is the duty of the troops of the intermediate lines.
The great central mass of concrete containing all the casemates and the gun-cupolas, a very popular feature, is omitted in this design, advantage being taken of the great lateral extent of the fort to spread the casemates under the faces, flanks and gorge, with a communication across the centre of the fort. This arrangement gives more freedom to the disposition of the cupolas. The thickness of the concrete over the casemate arches is more than 8 ft. Communication between the faces and the counterscarp galleries is obtained by posterns under the ditch. The armament, which is all protected by cupolas, is powerful. It consists of two 150–mm. (6 in.) guns, four 120–mm. (4.7 in.) guns, two 210–mm. (8.4 in.) howitzers, two 210–mm. (8.4 in.) mortars, four 57-mm. Q.F. guns for close defence. There is also a shielded electric light projector in the centre.
This fort is a great advance on General Brialmont’s designs before 1885. These were marked by great complexity of earth parapets and various chicanes which would not long survive bombardment. This type is simple and powerful. It is also very expensive.
The second Brialmont fort (fig. 48) is selected because it shows a keep or citadel, an inner work designed to hold out after the capture of the outer parapet. General Brialmont held strongly to the necessity of keeps for all important works. History of course gives instances of citadels which have enabled the garrison to recapture the main work with assistance, or caused a really useful delay in the progress of the general attack. It affords still more instances in which the keeps have made no resistance, or none of any value. Some think that the existence of a keep encourages the defenders of the main work; others that it encourages the idea of retreat. The British school of thought is against keeps. In any case they add largely to expense.
In the present design the keep is a mass of concrete, which depends for the defence of its front ditches on counterscarp galleries in the main work, the few embrasures for frontal defence being practically useless. Its main function is to prevent the attackers from establishing themselves on the gorge, thus leaving the way open for a reinforcement from outside to enter (assisted by bamboo flying bridges) through the passages left for the purpose in the outer and inner gorge parapets.
As regards the main work, the arrangements for defence of the ditch and the armament are similar to the design last considered. This parapet has no concrete shelter for the defenders. The casemates are all collected in the keep and the gorge, with a passage all round giving access to the parapet and the cupolas.
![]() |
![]() |
| From Brialmont’s Progrès de la défense des états, &c., by permission of Commandant G. Meeüs. |
| Fig. 49.—Fort Molsheim, Strassburg. |
Fig. 49 is a German work, Fort Molsheim at Strassburg. This is a simple type of triangular fort. The main mass of concrete rests on the gorge, and is divided by a narrow courtyard to give light and air to the front casemates. The fort has a medium armament for the artillery fight, consisting of four 6-in. howitzers in cupolas. On each face are two small Q.F. guns in cupolas for close defence, for which purpose, it will be seen, there is also an infantry parapet. At the angles are look-out turrets. The ditch has escarp and counterscarp, and is defended by counterscarp galleries at the angles. There is no covered way. The thickness of concrete over the casemates, where it is uncovered, is about 10 ft.
Fig. 50 is Fort Lyngby at Copenhagen. The new Copenhagen defences are very interesting, giving evidence of clear and original thought, and effectiveness combined with economy. There is one special feature worth noting about the outer ring of forts, of which Lyngby is one. These works are intended for the artillery fight only, their main armament being four 6-in. guns (in pairs) and three 6-in. howitzers, all in cupolas. The armament for immediate defence is trifling, consisting of only two 57-mm. guns and a machine-gun. There is no provision for infantry defence. The ditch has no escarp or counterscarp, and is flanked by counterscarp galleries at the salient.
It is usual in the case of works so slightly organized for their own defence, and intended only for the long-range artillery fight, to withdraw them somewhat from the front line. The Danish engineers, however, have not hesitated to put these works in the very front line, some 2000 metres in front of the permanent intermediate batteries. The object of this is to force the enemy to establish his heavy artillery at such long ranges that it will be able to afford little assistance to the trench attack of the infantry. The intermediate batteries, being withdrawn, are comparatively safe. They therefore do not require expensive protection, and can reserve their strength to resist the advance of the attack. The success of this arrangement will depend on the fighting strength of the cupolas under war conditions; and what that may be, war alone can tell us.
In the details of these works, besides the bold cutting down of defensive precautions, we may note the skilful and economical use of layers of large stones over the casemates to diminish the thickness of concrete required. The roofs of the casemates are stiffened underneath with steel rails, and steel lathing is used to prevent lumps of concrete from falling on the occupants. The living casemates look out on the gorge, getting plenty of light and air, while the magazines are under the cupolas.
The forts above described are all armed with a view to their taking an important part in the distant artillery fight. The next type to be considered (fig. 51) is selected mainly because it is a good example of the use of concealed flanking batteries, known on the continent as batteries traditores, which seem to be growing in popularity.
This design by Colonel Voorduin of the Dutch engineers has a medium armament, which is not intended for the artillery duel, but to command the immediate front of the neighbouring forts and the intervals. The fort is long and narrow, with small casemate accommodation.
It contains eight 4.7–in. guns. Two of these are in a cupola concealed from view, though not protected, by a bank of earth in front. The other six are in an armoured battery behind the cupola. It may be remarked that as the cupola gets no real protection from the covering mass of earth, it would be better to be able to utilize the fire of its guns to the front. The batterie traditore, if properly protected overhead, would be very difficult to silence, and its flanking fire would probably be available up to the last moment. There is very much to be said both for and against the policy of so emplacing the guns. The immediate defence of the work, with the aid of a broad wet ditch, is easy; but the great mass of concrete, which is intended to form an indestructible platform and breastwork for the infantry, would seem to be a needless expense.
![]() |
![]() |
| From Brialmont’s Progrès de la défense des états, &c., by permission of Commandant G. Meeüs. |
| Fig. 50.—Fort Lyngby, Copenhagen. |
![]() |
| From Leithner’s Beständige Befestigung. |
| Fig. 51. |
Fig. 52, designed by the Austrian lieutenant field-marshal Moritz Ritter von Brunner (1839–1904), is selected as a type of the intermediate fort which is intended only to be a strong point in the infantry line of defence between the main forts. It has a protected armament, but this, which consists only of four small Q.F. guns in cupolas, is for its own defence, and not to take part in the artillery duel. There is also a movable armament of four light Q.F. guns on wheels, for which a shelter is provided between the two observatory cupolas. The garrison would be a half company of infantry, for whom casemates are provided in the gorge. The gorge ditch is flanked by a caponier, but there is no flank defence for the front ditch. This is defended by a glacis parapet. At the bottom of the ditch is a wire entanglement and the glacis slope is planted with thorns. The thickness of concrete on the casemates is 2 metres (6 ft. 7 in.). This is a strong and simple form of infantry work, but considering its rôle it appears to be needlessly expensive.
Fig. 53 is an Italian type of barrier fort in mountainous country. A powerful battery of eight medium guns protected by a Gruson shield commands the approach. The fort with its dwelling casemates is surrounded by a deep ditch flanked by counterscarp galleries. There are certain apparent weaknesses in the type, but the difficulties of the attack in such country and its limitations must be borne in mind.
Modern Details of Protection and Obstacle.—After considering the above types of fort, it will be of use to note some of the details in which modern construction has been modified to provide against the increasing power of artillery.
![]() |
| From Brialmont’s Progrès de la défense des états, &c., by permission of Commandant G. Meeüs. |
| Fig. 52. |
The penetration of projectiles varies according to the nature of the soil—the lighter the better for protection. Sand offers the greatest resistance to penetration, clay the least. Since, however, the penetration of heavy shells fired from long ranges with high elevation may be 20 ft. Bomb-proof protection. or more in ordinary soil, we can no longer look to earth alone as a source of protection against bombardment. Again a moderate quantity of earth over a casemate increases the explosive effect of a shell by “tamping” it, that is by preventing the force of the explosion from being wasted in the open air. We find therefore that in most modern designs the tops of casemates are left uncovered, or with only a few inches of earth over them, in which grass may be grown for concealment.
For the materials of casemates and revetment walls exposed to fire, concrete (q.v.) has entirely replaced masonry and brickwork, not because of its convenience in construction, but because it offers the best resistance. The exact composition of the concrete is a matter that demands great care and knowledge. It should be, like an armour plate, hard on the surface and tough within. The great thickness of 10 ft. of concrete for casemate arches, very generally prescribed on the continent in important positions, is meant to meet the danger of several successive shells striking the same spot. To stop a single shell of any siege calibre in use at present, 5 ft. of good concrete would be enough. A good deal is expected from the use of “reinforced concrete” (that is concrete strengthened by steel) both for revetment walls and casemates.
Parapets are frequently made continuous or glacis-wise, that is the superior slope is prolonged to the bottom of the ditch so that the whole rampart can be swept by the fire of the defenders from the crest, and there is no dead ground in front of it. It is also common to build the crest of the parapet Parapets. in solid concrete, with sometimes a concrete banquette, so that bombardment shall not destroy the line the defenders have to man in repelling an assault. This concrete parapet may be further reinforced by hinged steel bullet-proof plates, to give head cover; which when not in use hang down behind the crest.
![]() |
| From General Rocchi’s Traccia per lo studio della fortificazione, by permission. |
| Fig. 53. |
The escarp is falling into disfavour, on account of the great expense of a revetment that can withstand breaching fire. A counterscarp of very solid construction is generally used. It is low and gives cover to a wire entanglement in the ditch. This may be supplemented by a steel unclimbable Obstacles. fence, and by entanglements or thorn plantations on the covered way and the lower slopes of the parapet. Entanglements are attached to steel posts bedded in concrete. The upper parts of revetments and the foundations of walls are protected against the action of shells, that falling steeply might act as mines to overturn them, by thick aprons of large stones. Fig. 54 shows most of these dispositions.
Electric search-lights are now used in all important works and batteries. They are usually placed in disappearing cupolas. They are of great value for discovering working parties at night, and lighting up the foreground during an attack; and since only the projector need be exposed, Search-lights. they are not very vulnerable. Their value, however, must not be over-estimated. The most powerful search-light can in no way compare with daylight as an illuminant, and, like all other mechanical contrivances, they have certain marked drawbacks in war. They may give rise to a false confidence; an important light may fail at a critical moment; and in foggy weather they are useless.
The use of armour (see also Armour-Plates) for coast batteries followed closely upon its employment for ships, for those were the days of short ranges and close fighting, and it seemed natural not to leave the battery in a position of inferiority to the ship in the matter of protection. In England the coast battery Armour. for a generation after the Crimean War was a combination of masonry and iron; and in 1860 Brialmont employed armoured turrets at Antwerp in the forts which commanded the Scheldt. For land defence purposes, however, engineers were very slow to adopt armour. Apart from all questions of difficulty of manufacture, expense, &c., the idea was that sea and land fronts were radically different. It was pointed out that a ship gun, fired from an unsteady platform, had not enough accuracy to strike repeated blows on the same spot; so that a shield which was strong enough to resist a single shot would give complete protection. A battery on a land front, on the other hand, was exposed to an accurate fire from guns which could strike successive blows on the same spot, and break down the resistance of the strongest shield. But in time continental opinion gradually began to turn in favour of iron protection. Practical types of disappearing and revolving cupolas were produced, and many engineers were influenced in their favour by the effect of the big high-explosive shell. Eventually it was argued that, after all, the object of fortification is not to obtain a resisting power without limit, but to put the men and guns of a work in an advantageous position to defend themselves as long as possible against a superior force; and that from this point of view armour cannot but add strength to defensive works.
![]() |
| From Deguise’s La Fortification permanente, by permission of J. Polleunis. |
| Fig. 54. |
The question has of course long passed beyond the stage of theory. Practically every European state uses iron or steel casemates and cupolas. German, Danish, Italian and other types of forts so armed have been shown. Recent French types have not been published, but it is known that cupolas are employed; and Velichko, the Russian authority, long an uncompromising opponent of armour, in the end changed his views. These countries have had to proceed gradually, by improving existing fortresses, and with such resources as could be spared from the needs of the active armies. Among the smaller states Rumania and Belgium have entered most freely into the new way. In England, which is less directly interested, opinion has been led by Sir George Clarke, since the publication in 1890 of his well-known book on fortification. Having witnessed officially the experiments at Bucharest in 1885 with a St Chamond turret and a Gruson cupola, he expressed himself very strongly against the whole system. Besides pointing out very clearly the theoretical objections to it, and the weak points of the constructions under experiment, he added: “The cost of the French turret was about £10,000 exclusive of its armament, and for this sum about six movable overbank guns of greater power could be provided.” In view of the weight that belongs of right to his criticisms it is as well to point out that while this remark is quite true, yet the six guns would require also six gun detachments, with arrangements for supply, &c.; a consideration which alters the working of this apparently elementary sum. The whole object of protection is to enable a few men and guns successfully to oppose a larger number.
At the time when Sir George Clarke’s first edition came out, such extravagances were before the public as Mougin’s fort; “a mastless turret ship,” as he called it, “buried up to the deck-level in the ground and manned by mechanics.” Such ideas tended to throw discredit on the more reasonable use of armour, but whether the system be right or wrong, it exists now and has to be taken account of. Nowhere has it been applied more boldly than in Rumania. The defences of Bucharest (designed by Brialmont) consist of 18 main and 18 small forts, with intermediate batteries. The main forts are some 4500 yds. apart, and 11,000 to 12,000 yds. from the centre of the place. The typical armament of a main fort is six 6-in. guns in three cupolas (one for indirect fire), two 8.4–in. howitzers in cupolas, one 4.7–in. howitzer in a cupola, six small Q.F. guns in disappearing cupolas. The total armament of the place (all protected) is eighty-six 6-in. guns, seventy-four 8.4–in. howitzers, eighteen 4.7–in. howitzers, 127 small calibre Q.F. guns in disappearing cupolas, 476 small calibre Q.F. guns in casemates for flanking the ditches. The “Sereth Line” will be described later.
Different Forms of Protection: Casemate, Cupola, &c.—The broad difference between casemates or shielded batteries and turrets and cupolas is that the former are fixed while the latter revolve and in some cases disappear. The casemate thus has the disadvantages that the arc of fire of the gun, which has to fire through a fixed embrasure or port-hole, is very limited, and that the muzzle of the gun and the port-hole, the weak points of the system, are constantly exposed to the fire of the enemy. The advantage of the casemate lies in its comparative cheapness and the greater strength of a fixed structure. It is well suited for barrier forts (fig. 53) and other analogous positions; and the Italians amongst other nations have so employed it at such places as the end of the Mont Cenis tunnel. Steel and iron casemates are also useful as caponiers for ditch flanking (fig. 55).
![]() |
| From Leithner’s Beständige Befestigung, by permission. |
| Fig. 55. |
Turrets and Cupolas.—The difference between a turret and a cupola is that the former is cylindrical with a flat or nearly flat top and presents a vertical target; while the latter is a flattened dome, the vertical supports of which are entirely concealed. The turret appears to be little used. The object of both forms is at once to give an all-round arc of fire to the guns and to allow of the weak point of the structure, the port-hole and muzzle of the gun, being turned away from the enemy in the intervals of firing. Both usually emerge from a mass of concrete, which is strengthened round the opening by a collar of chilled cast iron about 12 to 15 in. thick.
There are four types of cupolas, viz. (a) Disappearing, (b) Oscillating, (c) Central pivot, (d) On roller rings.
(a) Disappearing cupolas are used chiefly for small quick-firing guns, on account of the expense of the various systems. They can be used for medium guns. The details of the best foreign systems are secret. (b) The oscillating turret is a Mougin type, in which the turret is supported in the centre by a knife-edge Cupolas. on which it can swing. The oscillation is controlled by powerful springs. The effect of it is that after firing, the front of the cupola with the port-hole swings downwards under cover, and is held there until the gun is ready to fire again. (c) Schumann’s centre pivot is understood to be approved in Germany. It has been adopted in Rumania and Belgium for howitzer cupolas. It is only suitable for a single piece; d is strong and steady—the best cupola for coast batteries; c and d are best for rapid fire because they can be loaded without lowering. They are suited for long guns.
The following types are illustrated as being generally representative of the different classes of cupola.
![]() |
| Fig. 56.—Cupola for 6-in. gun (Friedr. Krupp A.G.). |
Fig. 56 is a section of Messrs Krupp’s typical cupola for one 6-in. gun. The shield is of nickel steel, the collar of cast steel. A small space is left between the cupola and its collar to prevent the possibility of the shield jamming after being damaged. The guns are muzzle-pivoting and thickened out near the muzzle by the addition of a ring, so as to close the port as much as possible. The recoil is controlled within narrow limits both to economize space and to prevent the smoke from the muzzle from getting into the cupola. To facilitate the elevation and depression of the gun (with muzzle pivotings the breech has of course to be moved through a much larger arc than with ordinary mountings) it is balanced by a counterweight. The cupola rests on a roller ring and is traversed by a winch. It can be turned through a complete circle in about one minute.
![]() |
| From Leithner’s Beständige Befestigung. |
| Fig. 57.—Gruson Spherical Mortar. |
Fig. 57 shows a Schumann shielded mortar (sphere-mortar, Kugelmörser). In this case it will be observed that the cupola is replaced by an enlargement of the encircling collar; and the mortar (8.4-in. calibre) is enclosed in a sphere of cast iron, so as to close completely the opening of the collar in any position.
Fig. 58 shows a Gruson cupola for one 4.7–in. Q.F. howitzer.
Fig. 59 shows a disappearing turret for an electric light projector.
Fig. 60 shows a Krupp transportable cupola for a 5.7–cm. gun. This is drawn on a four-wheeled carriage, and when coming into action slides on rollers on to a platform in the parapet. It weighs about 212 tons, and with carriage and platform about 4 tons.
The mechanism of these cupolas is for the most part simpler than it appears. Counterweights and hand winches are much in use for the lighter natures of guns. The armouring of course keeps pace with improvements in manufacture. The chilled cast iron first made popular by the Gruson firm is now little used except for such purposes as the collar round a cupola. Wrought iron, steel and compound plates for the tops of cupolas have all been tried, the most recent Krupp-Gruson designs being of nickel steel.
The sighting in some cases may be done by sights on the gun, with suitable enlargements in the port-hole; in others by sights affixed to the cupola itself (which of course can give horizontal direction only); in others training and elevation are given in accordance with the readings on electric dials, or instructions by telephone or speaking tube. There is of course nothing unreasonable in this in the case of indirect fire guns and howitzers, for if not firing from cupolas they would be behind the shelter of some wood or quarry.
Schumann’s System: “Armoured Fronts.”—Lieut.-Colonel Maximilian Schumann (1827–1889) of the Prussian engineers, who took a very prominent part in the design and advocacy of armoured defences, eventually produced a system which dispensed entirely with forts and relied on the fire of protected guns. It consists of several lines of batteries for Q.F. guns and howitzers in cupolas. He considered that such batteries would be able to defend their own front, and the infantry garrison was not to be called into action except in the case of the enemy breaking through at some point of the line.
This system was actually adopted by Rumania (1889–1892) for the Sereth Line. There are three routes by which the Russians can enter the country across the Sereth river: through Focshani, Nemolassa and Galatz. These three routes are barred by bridge-heads, those at Focshani, the most important, being on the left bank of the Milkov, a tributary of the Sereth.
The Focshani works consist of 71 batteries arranged on a semicircular front about 12 m. long and from 8000 to 10,000 yds. in advance of the bridges. The batteries are placed in three lines, which are about 500 yds. apart, and are subdivided into groups. The normal group consists of 5 batteries, of which 3 are in the first line, 1 in the second, and 1 in the third. The first-line batteries each contain five small Q.F. guns in travelling cupolas. The second-line batteries, each six small Q.F. guns in disappearing cupolas. The third-line batteries have one 120–mm. gun in a cupola, and two 210–mm. spherical mortars with Gruson shields. The immediate defence of the batteries consists of a glacis planted with thorn bushes and a wire entanglement.
![]() |
| From Leithner’s Beständige Befestigung. |
| Fig. 58.—Cupola for 4.7–in. Howitzer. |
The fortification of these three bridge-heads are said to have cost about £1,100,000. But the system of “armoured fronts” is never likely to be reproduced, having been condemned by all authoritative continental opinion. Its defects have been summarized by Schroeter as follows: weakness of artillery at long ranges, want of security against a surprise rush, the neglect of the use of infantry in the defence, and the difficulty of command. This last is the most serious of all. It is indeed difficult to conceive that any one should expect half-a-dozen expert gunners, each shut up in an iron box with a gun, to stop the rush of a thousand men, even by day. But imagine the feelings of the gunner on the night of a big attack, alone in his box, his nerves already strained by a preliminary bombardment and nights of watching. He hears the sounds of battle all around; he knows nothing of the progress of the attack, but expects everything, and feels every moment the door of his box being opened and the bayonet entering his back. No wise commander would submit his troops to such a test.
Sir George Clarke and Unarmoured Systems.—Before leaving the subject of fortresses it is necessary to consider the ideas of those who, while recognizing the necessity for places permanently organized for defence, prefer to treat them more from the point of view of perfected field defences. It is to the credit of English military science that Sir George Clarke may be taken as the representative of this school of thought. His study of fortification, as he tells us, began with a history of the defence of Plevna (q.v.). He was led to compare the resistance made behind extemporized defences at such places as Sevastopol, Kars and Plevna, with those at other places fortified in the most complete manner known to science. From this comparison he drew the conclusion that the true strength of fortification does not depend on great masonry works intricately pieced together at vast expense, but on organization, communications and invisibility. In his 1907 edition he says:—
“Future defences will divide themselves naturally into the following categories: (1) Permanent works wholly constructed in peace time and forming the key points of the position. (2) Gun emplacements, magazines and shelters for men in rear of the main line, all concrete structures and platforms to be completed, though some earthwork may be left until the position is placed in a state of defence. (3) Field works, trenches, &c., guarding the intervals between the permanent defences in the main line, or providing rear positions. These should be deliberately planned in time of peace ready to be put in hand at short notice. The essence of a well-fortified position is that the weapons of the defender shall obtain the utmost possible scope of action, and that those of the attacker shall have the minimum chances of effecting injury.”
<![]() |
| Drawn from illustration in Leithner’s Beständige Befestigung, by permission. |
| Fig. 59.—Disappearing Turret for Searchlight. |
Since Sir George Clarke published his first edition in 1890 continental ideas have expanded a good deal. The foregoing statement as to the three categories of defences would be accepted anywhere now: the differences of opinion come in when we reach the stage of classifying under the first Infantry redoubts. head the permanent works to be constructed in peace time. In most countries these would include forts with guns for the artillery duel, forts with safety armaments, fixed batteries with or without armour, and forts for infantry only. Sir George Clarke will have no armour for guns except in certain special cases of barrier forts. Heavy guns and howitzers requiring permanent emplacements (concrete platforms, &c.) must either be well concealed or be provided with alternative positions. The only permanent works which he admits are for infantry. They are redoubts of simple form intended for 350 or 400 men, with casemate accommodation for three-fourths of that number. Fig. 61 shows the design:—two rows of casemates, one under the front parapet, one under a parados; frontal musketry defence; obstacle consisting of entanglements, mines, &c., with or without escarp and counterscarp.
![]() |
| Fig. 60.—Transportable Cupola for 5.7–cm. Gun (Friedr. Krupp A.G.). |
“The intervals (he says) between the infantry redoubts may be about 2500 yds.; but this will necessarily depend upon the conformation of the ground. Where there are good artillery positions falling within the sphere of protection of the redoubts, large intervals will be permissible. Thus, in the case of an extended line of defence where the ground offers marked tactical features, the idea of a continuous chain of permanent works may be abandoned in favour of groups of redoubts guarding the artillery positions. In this case, the redoubts in a group might be distributed on a curve bent back in approximately horse-shoe form.”
![]() |
| From Sir George S. Clarke’s Fortification, by permission of John Murray. |
| Fig. 61. |
The keystones of the close defence of the fighting line in future will undoubtedly be these infantry redoubts, and therefore it is of great interest to compare with the above types two studies put forward by Schroeter (Die Festung in der heutigen Kriegführung), one in his first edition in 1898 (fig. 62), and the other in the second in 1905 (fig. 63). In both these the defensive arrangements are merely trenches of field profile with entanglements, the command and the obstacle being less than in Sir George Clarke’s work; and it will be noticed that in the 1905 type, published after the Russo-Japanese War, the plan is much less simple and arrangements for close flanking defence have been introduced. But these works of Schroeter’s are merely infantry supporting points in a line which contains forts of the triangular type with guns, and armoured batteries, as well as a very complete arrangement of field defences and communications; while Sir G. Clarke’s redoubts are the only permanent works giving casemate protection in the front line.
![]() |
| From Schoeter’s Die Festung in der heutigen Kriegführung, by permission of E. S. Mittler u. Sohn. |
| Fig. 62. |
The comparative merits of either design for an infantry redoubt are not of much importance. It is agreed that the main line of defence must consist of a more or less continuous line of field defences and obstacles, and that at some points in the line there should be infantry supporting points with bomb-proof protection capable of resisting big shells. The open question is, what additional works, if any, are required for the artillery, whether for the medium and heavy guns that will take part in the “artillery duel,” or for the lighter natures that will help in the close fight and defence of the intervals. Is it best for the defenders to rely on armoured protection or on concealment for his guns?
Official opinion outside England has certainly sanctioned armour, since all over the continent it is to some extent adopted in practice. National practice is usually based on the advice of the most distinguished officers of the day, and therefore it is unsafe to condemn it hastily. Sir Opposing views as to armour, gun positions, &c. George Clarke and those who are with him—and they are many, both in Great Britain and abroad—object entirely to armour. He says (Fortification, ed. 1907, p. 96): “The great advantage possessed by the attack in all ages has been the employment of a mobile artillery against armaments cribbed, cabined and confined by fortification. It is necessary to perpetuate this advantage?” Of course the effect of long-range weapons, in increasing the length of front that can be held by a given force, has given much greater freedom of action to the defence and this should be taken full advantage of.
![]() |
| From Schroeter’s Die Festung in der heutigen Kriegführung, by permission of E. S. Mittler u. Sohn. |
| Fig. 63. |
The argument as to the vulnerability of shielded guns is not at present strong. Sir George says (ib. p. 94), “If the high angle fire ... is ever to find a favourable opportunity, it will surely be against a cupola, the site of which can generally be determined with accuracy.” On the other hand he says (p. 90), “During the long and costly experiments carried on at Bucharest in 1885–1886, 164 rounds were fired from the Krupp 21 cm. mortar at targets of about 40 sq. metres area” (about 430 sq. ft.) “without obtaining a single hit. The range was 2700 yds.; the targets were towers built upon a level plain; the shooting conditions were ideal, and the fall of each shell was telephoned back to the firing point; but it must have been evident to the least instructed observer that to attempt to group 6 or 8 shells on an invisible area 2 metres square would have been absolutely futile.” These facts are adduced to prove that it is not necessary to give great thickness to concrete casemates, to resist successive bursts of shells in the same place; but surely they are equally applicable to cupolas. Again (p. 252), “The experience gained at Port Arthur was not altogether encouraging as regards the use of high angle fire. The Russian vessels in the harbour were sunk by opening their sea-valves.... Fire was subsequently directed upon them from 11 in. howitzers at ranges up to about 7500 yds. This was deliberate practice from siege batteries at stationary targets; but the effect was distinctly disappointing.” The cupolas therefore can hardly be considered ideal targets: and the probability is that they would hold their own against both direct and indirect fire for a long time. There are other and stronger arguments against the general use of them, all of which are clearly set forth by Sir George Clarke.
The worst objections to the cupola are the military disadvantages of isolation and immobility, and the multiplication of mechanical arrangements. For a successful round from a disappearing cupola, the elevating and traversing arrangements, the elevating and loading gear of the gun, and the telephone communication, must all be in good order. At night the successful co-operation of the searchlight is also in many cases necessary.
The teaching of history is all against immobile mechanical defences. Initiative, surprise, unforeseen offensive action, keeping the besieger in ignorance of the dispositions of the garrison, and of what progress he is making: all these, with their influence on the morale of both sides, tend towards successful defences and do not point towards the use of armour.
It may further be said that the use of armour as a general rule is unnecessary, because a concealed battery is a protected one; and with the long ranges now usual for heavy guns and howitzers, there is not generally much difficulty about concealment.
In the opinion, however, of the present writer an exception must be made for guns intended to flank the line of defence, which would generally need bomb-proof over-head cover. Further, when we leave theory and come to the consideration of actual problems of defence, it will often be found that it is necessary to place guns in certain positions where good concealment cannot be got. In such cases some form of protection must be given if the guns are to engage the concealed batteries of the attack.
III. The Attack of Fortresses
In considering the history of siegecraft since the introduction of gunpowder, there are three main lines of development to follow, viz. the gradually increasing power of artillery, the systematizing of the works of attack, and in recent times the change that has been brought about by the effect of modern small-arm fire.
Cannon appear to have been first used in sieges as mortars, to destroy hoardings by throwing round stones and barrels of burning composition. Early in the 15th century we find cannon throwing metal balls, not only against hoarding and battlements, but also to breach the bases of the walls. It was only possible to work the guns very slowly, and archers or crossbowmen were needed in support of them, to drive the defenders from the crenellations or loopholes of the battlements. At that period the artillery was used in place of the medieval siege engines and in much the same manner. The guns of the defence were inaccurate, and being placed high on the walls were made ineffective by bad mountings, which did not allow of proper depression. The besieger therefore could place his guns close to the walls, with only the protection of a few large gabions filled with earth, set up on the ground on either side of the muzzle.
In the course of the 15th century the power of artillery was largely increased, so that walls and gates were destroyed by it in an astonishingly short time. Three results shortly followed. The guns of the defence having gained equally in effectiveness, greater protection was needed for the attack batteries; bastions and outworks were introduced to keep the besieger at a distance from the inner walls; and the walls were sunk in ditches so that they could only be breached by batteries placed on the edge of the glacis.
Early in the 16th century fortresses were being rapidly remodelled on these lines, and the difficulties of the attack were at once very much increased. The tendency of the assailants was still to make for the curtain, which had always been considered the weak point; but the besiegers now found that they had to bring their guns right up to the edge of the ditch before they could make a breach, and in doing so had to pass over ground which was covered by the converging fire from the faces of the bastions. Towards the end of the century the attack of the curtain was delayed and the cross-fire over the ground in front increased by the introduction of ravelins.
The slight gabion protection for the siege batteries was at first replaced by strong timber shelters. These were found inadequate; but a still greater difficulty was that of bringing up the siege guns to their positions, emplacing them and maintaining communication with them under fire. In addition to this, the guns of the defence until they could be overpowered (a slow process) dominated a wide belt of ground in front of the fortress; and unless the besiegers could find some means of maintaining a strong guard close to their batteries these were liable to be destroyed by sorties from the covered way.
Gradually the whole problem of siege work centred round the artillery. The besiegers found that they had first to bring up enough guns to overpower those of the defence; then to advance their guns to positions from which they could breach the walls; Siegecraft before Vauban.and throughout these operations to protect them against sorties. Breaches once made, the assault could follow on the old lines.
The natural solution of the difficulty of approach to the battery positions was the use of trenches. The Turks were the first to make systematic use of them, having probably inherited the idea from the Eastern Empire. The soldiers of Christendom, however, strongly disliked digging, and at first great leaders like Bayard and Montluc had themselves to use pick and shovel, to give their men an example. In due course the necessity of the trenches was recognized, but the soldiers never took kindly to them, and the difficulty was dealt with in a manner reminiscent of the feudal ages, by impressing large bodies of peasantry as workmen whenever a siege was in contemplation.
Through the 16th and most of the 17th century, therefore, we find the attack being conducted by means of trenches leading to the batteries, and supported by redoubts often called “places of arms” also made by trench work. During this period the result of a siege was always doubtful. Both trenches and batteries were arranged more or less at haphazard without any definite plan; and naturally it often happened that offensive action by the besieged against the trenches would disorder the attack and at times delay it indefinitely. Fig. 64, taken from a late 17th-century print by de Fer of Paris, gives a good idea of the general practice of that day when Vauban’s methods were not yet generally known.
Another weak point about the attack was that after the escarp walls had been strengthened to resist artillery fire as has been described, there was no clear idea as to how they should be breached. The usual process was merely an indiscriminate pounding from batteries established on the crest of the glacis. Thus there were cases of sieges being abandoned after they had been carried as far as the attempt to breach.
It is in no way strange that this want of method should have characterized the attack for two centuries after artillery had begun to assert its power. At the outset many new ideas had to be assimilated. Guns were gradually growing in power; sieges were conducted under all sorts of conditions, sometimes against medieval castles, sometimes against various and widely-differing examples of the new fortification; and the military systems of the time were not favourable to the evolution of method. It is the special feature of Vauban’s practical genius for siege warfare that he introduced order into this chaos and made the issue of a siege under normal conditions, a mere matter of time, usually a very short time.
The whole of Vauban’s teaching and practice cannot be condensed into the limits of this article, but special reference must be made to several points. The most important of these is his general arrangement of the attack. The ultimate object of the attack works was to make Vauban’s teaching. a breach for the assaulting columns. To do this it was necessary to establish breaching batteries on the crest of the glacis; and before this could be done it was necessary to overpower the enemy’s artillery. This preliminary operation is nowadays called the “artillery duel.” In Vauban’s day the effective range of guns was 600 to 700 yds. He tells us that it was customary to establish batteries at 1000 yds. from the place, but that at that range they did little more than make a great deal of noise. The first object of the attack, therefore, after the preliminary operations of investment, &c., had been completed, was to establish batteries within 600 or 700 yds. of the place, to counter-batter or enfilade all the faces bearing on the front of attack; and to protect these batteries against sorties. After the artillery of the defences had been subdued—if it could not be absolutely silenced—it was necessary to push trenches to the front so that guns might be conveyed to the breaching positions and emplaced there in batteries. Throughout these processes it was necessary to protect the working parties and the batteries against sorties.
![]() |
| Fig. 64.—Siege-works of the 17th century. |
For this purpose Vauban devised the Places d’armes or lignes parallèles. He tells us that they were first used in 1673 at the siege of Maestricht, where he conducted the attack, and which was captured in thirteen days after the opening of the trenches. The object of these parallels was to provide successive positions for the guard of the trenches, where they could be at hand to repel sorties. The latter were most commonly directed against the trenches and batteries, to destroy them and drive out the working parties. The most vulnerable points were the heads of the approach trenches. It was necessary, therefore, that the guard of the trenches should be in a position to reach the heads of the approaches more quickly than the besieged could do so from the covered way. This was provided for as follows.
The first parallel was usually established at about 600 yds. from the place, this being considered the limiting range of action of a sortie. The parallel was a trench 12 to 15 ft. wide and 3 ft. deep, the excavated earth being thrown forward to make a parapet 3 or 4 ft. high. In front of the first parallel and close to it were placed the batteries of the “first artillery position.”
While these batteries were engaged in silencing the enemy’s artillery, for which purpose most of them were placed in prolongation of the faces of the fortress so as to enfilade them, the “Approach Trenches” were being pushed forward. The normal attack included a couple of The attack. bastions and the ravelin between, with such faces of the fortress as could support them; and the approach trenches (usually three sets) were directed on the capitals of the bastions and ravelin, advancing in a zigzag so arranged that the prolongations of the trenches always fell clear of the fortress and could not be enfiladed.
Fig. 65, taken from Vauban’s Attack and Defence of Places, shows clearly the arrangement of trenches and batteries.
![]() |
| Fig. 65.—Regular Attack (Vauban). |
After the approach trenches had been carried forward nearly half-way to the most advanced points of the covered way, the “second parallel” was constructed, and again the approach trenches were pushed forward. Midway between the second parallel and the covered way, short branches called Demi-parallels were thrown out to either flank of the attacks: and finally at the foot of the glacis came the third parallel. Thus there was always a secure position for a sufficient guard of the trenches. Upon an alarm the working parties could fall back and the guard would advance.
Trenches were either made by common trenchwork, flying trenchwork or sap. In the first two a considerable length of trench was excavated at one time by a large working party extended along the trench: flying trenchwork (formerly known as flying sap) being distinguished from common trenchwork by the use of gabions, by the help of which protection could be more quickly obtained. Both these kinds of trenchwork were commenced at night, the position of the trench having been previously marked out by tape. The “tasks” or quantities of earth to be excavated by each man were so calculated that by daybreak the trench would afford a fair amount of cover. Flying trenchwork was generally used for the 2nd parallel and its approaches, and as far beyond it as possible. In proportion as the attack drew nearer to the covered way, the fire of the defenders’ small-arms and wall-pieces naturally grew more effective, though by this time most of their artillery would have been dismounted by the fire of the siege batteries. It therefore became necessary before reaching the 3rd parallel to have recourse to sap.
Sapping required trained men. It consisted in gradually pushing forward the end of a narrow trench in the desired direction. At the sap-head was a squad of sappers. The leading man excavated a trench 1 ft. 6 in. wide and deep. To protect the head of the trench he had a shield on wheels, under cover of which he placed the Sapping. gabions in position one after another as the sap-head progressed. Other men following strengthened the parapet with fascines, and increased the trench to a depth of 3 ft., and a width of 2 ft. 6 in. to 3 ft. Fig. 66, taken from Vauban’s treatise on the attack, shows the process clearly. The sap after being completed to this extent could be widened at leisure to ordinary trench dimensions by infantry working parties.
![]() |
| Fig. 66.—Sapping (Vauban). |
As the work at the sap-head was very dangerous, Vauban encouraged his sappers by paying them on the spot at piecework rates, which increased rapidly in proportion to the risk. He thus stimulated all concerned to do their best, and reckoned that under average conditions he could depend on a rate of progress for an ordinary sap of about 50 yds. in 24 hours.
It is interesting to compare the more recent method of sapping with that above described (fig. 67 taken from the Instruction in Military Engineering, 1896). It is no longer possible to place gabions in position at the sap-head under fire. Accordingly the leading sapper excavates to the full depth of 4 ft. 6 in., and the rate of progress is retarded proportionately, so that an advance of only 15 to 30 yds. in 24 hours can be reckoned on instead of 50. The head of the sap is protected by a number of half-filled sandbags, which the leading sapper throws forward as he goes on.
The nearer the approaches drew to the covered way, the more oblique became the zig-zags, so that little forward progress was made in proportion to the length of the trench. The approaches were then carried straight to the front, by means of the “double sap,” which consisted of two single saps worked together with a parapet on each side (fig. 68). To protect these from being enfiladed from the front, traverses had to be left at intervals, usually by turning the two saps at right angles to right or left for a few feet, then forward, and so on as shown in fig. 69, the distance apart of these traverses being of course regulated by the height from which the enemy’s fire commanded the trench.
The later stages in the attack are illustrated in fig. 70. From the third parallel the attack was pushed forward up the glacis by means of the double sap. It was then pushed right and left along the glacis, a little distance from the crest of the covered way. This was called “crowning” the covered way, Later stages of the attack. and on the position thus gained breaching batteries were established in full view of the escarp. While the escarp was being breached, if it was intended to use a systematic attack throughout, a mine gallery (see Mining below) was driven under the covered way and an opening made through the counterscarp into the ditch. The sap was then pushed across the ditch, and if necessary up the breach, the defenders’ resistance being kept under by musketry and artillery fire from the covered way. The ravelin and bastions were thus captured successively, and where the bastions had been retrenched the same methods were used against the retrenchment.
![]() |
| From Military Engineering, by permission of the Controller of H.M. Stationery Office. |
| Fig. 67.—“Deep” Sap. |
Vauban showed how to breach the escarp with the least expenditure of ammunition. This was done by making, with successive shots placed close together (which was feasible even in those days from a position so close as the crest of the covered way) horizontal and vertical cuts through the revetment wall. The portion of revetment enclosed by the cuts being thus detached from support was overturned by the pressure of the earth from the rampart. Ricochet fire was also the invention of Vauban. He showed how, in enfilading the face of a work, by using greatly reduced charges a shot could be made to drop over the crest of the parapet and skim along the terreplein, dismounting guns and killing men as it went.
![]() |
| Fig. 68.—Double Sap. |
![]() |
| Fig. 69.—Direct advance by Double Sap. |
The constant success of Vauban must be ascribed to method and thorough organization. There was a deadly certainty about his system that gave rise to the saying “Place assiégée, place prise.” He left nothing to chance, and preferred as a rule 18th-century principles of defence. the slow and certain progress of saps across the ditch and up the breach to the loss and delay that might follow an unsuccessful assault. His contemporary and nearest rival Coehoorn tried to shorten sieges by heavy artillery fire and attacks across the open; but in the long run his sieges were slower than Vauban’s.
So much a matter of form did the attack become under these conditions, that in comparing the supposed defensive powers of different systems of fortification it was usual to calculate the number of days that would be required in each case before the breach was opened, the time being measured by the number of hours of work required for the construction of the various trenches and batteries. It began to be taken as a matter of course that no place under any circumstances could hold out more than a given number of days; and naturally, when the whole question had become one of formula, it is not surprising to find that places were very often surrendered without more than a perfunctory show of resistance.
The theory of defence at this time appeared to be that since it was impossible to arrest the now methodical and protected progress of the besiegers’ trenches, no real resistance was possible until after they had reached the covered way, and this idea is at the root of the extraordinary complications of outworks and multiplied lines of ramparts that characterized the “systems” of this period. No doubt if a successor to Vauban could have brought the same genius to bear on the actual defence of places as he did on the attack, he would have discovered that the essence of successful defence lay in offensive action outside the body of the place, viz. with trench against trench. For want of such a man the engineers of the defence resigned themselves contentedly to the loss of the open ground outside their walls, and relied either upon successive permanent lines of defence, or if these did not exist, upon extemporized retrenchments, usually at the gorge of the bastion.
It is curious that such experienced soldiers as most of them were should not have realized the fatal effect upon the minds of the defenders which this almost passive abandonment of line after line must needs produce. Even a civilian—Machiavelli—had seen into the truth of the matter years before when he said (Treatise on the Art of War, Book vii.): “And here I ought to give an advice ... to those who are constructing a fortress, and that is, not to establish within its circuit fortifications which may serve as a retreat to troops who have been driven back from the first line.... I maintain that there is no greater danger for a fortress than rear fortifications whither troops can retire in case of a reverse; for once the soldier knows that he has a secure retreat after he has abandoned the first post, he does in fact abandon it and so causes the loss of the entire fortress.”
It must, however, be remembered that in those days when soldiers were mostly of a separate or professional caste, the whole thing had become a matter of business. Fighting was so much regulated by the laws and customs of war that men thought nothing of giving up a place if, according to accepted opinion, the enemy had advanced so far that they could no longer hope to defend it successfully. Once this idea had set in it became hopeless to expect successful defences, save now and then when some officer of very unusual resolution was in command. This is the real reason for the feeble resistance so often made by fortresses in the 17th and 18th centuries, which has been attributed to inherent weakness in fortifications. Custom exacted that a commandant should not give up a place until there was an open breach or, perhaps, until he had stood at least one assault. Even Napoleon recognized this limitation of the powers of the defence when in the later years of his reign he was trying to impress upon his governors the importance of their charge. The limitation was perfectly unnecessary, for history at that time could have afforded plenty of instances of places that had been successfully defended for many months after breaches were opened, and assault after assault repulsed on the same breach. But the same soldiers of the 17th and 18th centuries who had created this artificial condition of affairs, established it by making it an understood thing that a garrison which surrendered without giving too much trouble after a breach had been opened should have honourable consideration; while if they put the besiegers to the pains of storming the breach, they were liable to be put to the sword.
It has been necessary to dwell at some length on the siegecraft of Vauban and his time, not merely for its historical interest, but because the system he introduced was practically unaltered until the end of the 19th century. The sieges of the Peninsular War were conducted on his Peninsular War. lines; so was that of Antwerp in 1830; and as far as the disposition of siege trenches was concerned, the same system remained in the Crimea, the Franco-German War and the Russo-Turkish War. The sieges in the Napoleonic wars were few, except in the Iberian peninsula. These last differed from those of the Vauban period and the 18th century in this, that instead of being deliberately undertaken with ample means, against fortresses that answered to the requirements of the time, they were attempted with inadequate forces and materials, against out-of-date works. The fortresses that Wellington besieged in Spain had rudimentary outworks, and escarps that could be seen and breached from a distance. At that time, though the power of small arms had increased very slightly since the last century, there had been a distinct improvement in artillery, so that it was possible to breach a visible revetment at ranges from 500 to 1000 yds. Wellington was very badly off for engineers, siege artillery and material. Trench works could only be carried out on a small scale and slowly. Time being usually of great importance, as in the first two sieges of Badajoz, his technical advisers endeavoured to shorten sieges by breaching the escarp from a distance—a new departure—and launching assaults from trenches that had not reached the covered way. Under these circumstances the direct attacks on breaches failed several times, with great loss of life. Wellington in one or two earlier despatches reflected on his engineers for not establishing their batteries on the crest of the glacis. The failures are, however, clearly due to attempts to push sieges to a conclusion without proper preparation.
![]() |
| Fig. 70.—Later Stages of the Attack (Vauban). |
So much has been written of late years in criticism of the fortification to what may be called the Vauban period that it is important to note what were the preparations considered necessary for a siege at that time (Journals of Sieges in Spain, 1811 to 1814). Sir John Jones summarizes his own experience in Spain and the data accumulated by practical engineers in former sieges from the time of Vauban onwards, in the following conclusions: The actual work of entrenching, sapping, &c., on the front attacked was much the same whether the fortress contained 5000 or 10,000 men. On the other hand the guard of the trenches was proportionate to the fighting men inside the fortress. (The total number of men had of course to be sufficient to allow three or four complete shifts or “reliefs” for all work and duties.) Adding a proportion of men for camp and other duties, he calculates, for the vigorous siege of an ordinary place situated in open country and containing 5000 men, a corps of 32,080 effectives, and remarks further that this force would be greatly exhausted after a month’s service. The same place held by 10,000 would call for a besieging army of 50,830 men (guards and duties increasing, but not working parties). Thus the besieger should if possible have a superiority of 7 to 1 if the garrison numbered 5000, 6 to 1 if 10,000 and 5 to 1 if 15,000 and so on. As regards artillery, he should have as many, and if possible twice as many, guns as those of the defender on the front of attack, as well as howitzers for sweeping every line subject to enfilade and mortars for destroying traverses, &c. Later in the siege, more howitzers and mortars to clear the covered way and places of arms, and finally, after the covering of the covered way, fifty additional battering guns would be required. It is apparent from this that the practical engineers of the day looked upon a siege as a serious matter, and did not find permanent fortifications wanting in defensive strength.
During the long peace that followed the Napoleonic wars, one advance was made in siegecraft. In England in 1824 successful experiments were carried out in breaching an unseen wall by curved or indirect fire from howitzers. At Antwerp in 1830 the increasing power and range of artillery, and especially of howitzers, were used for bombarding purposes, the Crimea. breaches there being mostly made by mines. Then came one of the world’s great sieges; that of Sevastopol in 1854–1855 (see Crimean War). The outstanding lesson of Sevastopol is the value of an active defence; of going out to meet the besieger, with countertrench and countermine. This lesson has increased in value for us in proportion to the increased power of the rifle.
In comparing the resistance made behind the earthworks of Sevastopol with the recorded defences of permanent works, it is essential to remember that the conditions there were quite abnormal. Sir John Jones has told us what the relative forces of besiegers and besieged should be, and the necessary preponderance of artillery for the attack. The following quotations may be added:
“The siege corps should be sufficiently strong—(1) To invest the fortress completely, and maintain the investment against all the efforts of the garrison. (2) If a regular siege is contemplated, to execute and guard all the siege works required for it. Complete investment may sometimes be impossible, but experience has repeatedly shown that the difficulties of a siege are enormously increased if the garrison are able to draw fresh troops and supplies from outside, and to rid themselves of their sick and wounded.” (Lewis). Again as regards artillery: “In a regular attack, where every point is gained inch by inch, it is impossible to succeed without overpowering the defensive artillery”; and “it is useless to attempt to sap near a place till its artillery fire is subdued ...” (Jones).
These conditions were so far from being fulfilled at Sevastopol that (a) there was no investment—in fact the Russians came nearer to investing the Allies; (b) the Russians had the preponderance in guns almost throughout; (c) the Russian force in and about Sevastopol was numerically superior to that of the Allies. We must add to this that Todleben had been able to get rid of most of his civilian population, and those who remained were chiefly dockyard workmen, able to give most valuable assistance on the defence works. The circumstances were therefore exceptionally favourable to an active defence. The weak point about the extemporized earthworks, which eventually led to the fall of the place, was the want of good bomb-proof cover near the parapets.
The Franco-German War of 1870 produced no great novelty. The Germans were not anxious to undertake siege operations when it could be avoided. In several cases minor fortresses surrendered after a slight bombardment. In others, after the bombardment failed, the Germans Franco-German War. contented themselves with establishing a blockade or detaching a small observing force. By far the most interesting siege was that of Belfort (q.v.). Here Colonel Denfert-Rochereau employed the active defence so successfully by extemporizing detached redoubts and fortifying outlying villages, that he obliged the besiegers (who, however, were a small force at first) to take up an investing line 25 m. long; and succeeded in holding the village of Danjoutin, 2000 yds. in advance of the enceinte, for two months after the siege began. He also used indirect fire, withdrawing guns from the ramparts and placing them in the ditches, in the open spaces of the town, &c. At Paris the French found great advantage in placing batteries in inconspicuous positions outside the forts. Their direct fire guns were at a disadvantage in being fired through embrasures. These had served their purpose when artillery fire was very inaccurate, but had now for a long time been recognized by the best engineers as out of date. The Germans since the siege of Düppel in 1864 had mounted their siege guns on “overbank” carriages; that is, high carriages which made it possible to fire the guns over the parapet of the battery without embrasures. The guns in the Paris forts which were further handicapped by conspicuous parapets and the bad shooting of the gunners were easily silenced.
At Strassburg indirect fire against escarps was used. The escarp of Lunette 53 was successfully breached by this method. The breaching battery was 870 yds. distant, and the shot struck the face of the wall at an angle (horizontally) of 55°, the effect being observed and reported from the counterscarp. 1000 rounds from 60-pounder guns sufficed to make a breach 30 yds. wide.
Fig. 71 is a good example of the attack in the late stages. It will be observed that batteries for mortars and field guns are established in the captured lunettes. The narrow wet ditch of Lunette 53 was crossed by a dam of earth and fascines, the headway protected by a parapet or screen of sandbags.
“Lunette 52 was unrevetted, and its ditch was more than 60 yds. wide, and 6 to 9 ft. deep.... It was determined to effect the passage by a cask bridge, for which the casks were furnished by breweries near at hand.... The formation of the bridge was begun at nightfall. A pioneer swam across, hauled over a cable, and made it fast to the hedge on the berm. Four men were stationed in the water, close to the covered way, the casks were rolled down to them one after the other, and fitted with saddles, so as to form piers ... these piers were successively boomed out along the line of the cable.... In two hours the bridge was finished, and the lunette was entered.... The work had not been discovered by the besieged, and the formation of lodgments inside the lunette was already begun, when the noise made by some troops in passing the bridge attracted attention, and drew a fire which cost the besiegers about 50 men. A dam was afterwards substituted for the bridge, as it was repeatedly struck by shells.” (R.E. Professional Papers, vol. xix.)
It is curious to realize that this happened at so recent a time. Such operations would be impossible now, as long as any defending guns remained in action.
On the whole it may be said that siegecraft gained practically nothing from the Franco-German War. The Russo-Turkish war taught less, Plevna (q.v.) having been defended by field works and attacked by the old-fashioned methods. For the last ten years of the 19th century Modern siege warfare. military opinion was quite at a loss as to how the sieges of the future would work out. As guns and projectiles continued to improve the “attaque brusquée” proposed by von Sauer had many adherents. It was thought that a heavy bombardment would paralyse resistance and open the way for an attack, to be delivered by great numbers and with special appliances for crossing obstacles. Others thought that the strength of the defence, as manifested by the Plevna field works, would be greater than ever when the field works were backed by permanent works, good communications and the resources of a fortress. One thing was obvious—namely, that as long as the artillery of the place, of even the smallest calibres, remained unsubdued, the difficulty of trenchwork and sapping would be enormously increased, and no one seemed to have formed a clear conception of how that difficulty was to be met. A lecture delivered in Germany about 1895 is worth quoting as a fair example of the vagueness of idea then prevailing: “For the attack, the following is the actual procedure: Accumulation and preparation of material for attack before the fortress: advance of attacking artillery, covered by infantry. Artillery duel. Throwing forward of infantry: destruction of the capability for defence of the position attacked; when possible by long-range artillery fire, otherwise by the aid of the engineers. Occupation of the defensive position. Assault on the inner lines of the fortress.” That seemed quite a simple prescription, but the necessary drugs were wanting. And even since Port Arthur great uncertainty as to the future of the attack remains.
<![]() |
| From Textbook of Fortification, by permission of the Controller H.M. Stationery Office. |
| Fig. 71.—Strassburg, Lunettes 52 and 53, 1870. |
Modern artillery has much simplified the construction of siege batteries. Formerly siege batteries and rampart batteries opposed each other with direct fire at ranges not too long for the unaided human eye, and the shells, travelling with low velocity, bit into the parapets, and, exploding, produced their full effect. Accordingly the task of the gunners was, by accurate fire, to destroy the parapets and embrasures, and to dismount the guns. The parapets of siege batteries were therefore made from 18 to 30 ft. thick, and the construction of such batteries, with traverses, &c., involved much work. The height of parapet necessary for proper protection being 7 ft. 6 in. to 8 ft., a great deal of labour could be saved by sinking the gun-platforms about 4 ft. below the surface level, but of course this was only possible where rock or water were not near the surface.
The effect of modern projectiles was to reduce the thickness of earth necessary for parapets. High velocity projectiles are very easily deflected upwards by even a slight bank of earth. This is especially the case with sand. Loose earth is better than compacted especially the case with sand. Loose earth is better than compacted earth, and clay offers the least resistance to penetration. These facts were taken note of in England more than on the Continent in the design of instructional siege batteries.
The construction of batteries is moreover vastly simplified by the long ranges at which artillery will fight in future. It will as a rule be possible to place howitzer batteries in such positions that even from balloons it will be difficult to locate them; and even direct fire batteries can easily be screened from view. This renders parapets unnecessary, and probably no more protection will be used than light splinter-proof screens to stop shrapnel bullets or fragments of common shell. Moreover batteries can be constructed at leisure and by daylight.
The most important point about the modern battery is the gun platform for the larger natures of guns and howitzers. These require very solid construction to resist the heavy shock of discharge. Not long ago it was thought that the defence would have larger ordnance than the attack, as anything heavier than an 8 in. howitzer required a concrete bed, which could not be made at short notice. The Japanese, however, at Port Arthur made concrete platforms for 11 in. howitzers. It may be remarked that difficulties which loom largely in peace are often overcome easily enough under the stress of war.
Another gain to the attack is in connexion with magazines. The old powder magazines were particularly dangerous adjuncts to batteries, and had to be very carefully bomb-proofed. Such propellants as cordite, however, are comparatively harmless in the open. They are very difficult to detonate, and if set on fire do not explode like gunpowder. It is therefore unnecessary to provide bomb-proof magazines for them in connexion with the batteries.
In future sieges the question of supply will be more important than it has ever been. Leaving out of the question the bringing up of supplies from the base of operations, the task of distribution at the front is a very large one. The Paris siege manœuvres of 1894 furnish some instructive data on this point. The main siege park was at Meaux, 10 m. from the 1st artillery position, and the average distance from the 1st artillery position to the principal fort attacked was 5000 yds. The front of attack on Fort Vaujours and its collateral batteries covered 10,000 yds. There were 24 batteries in the 1st artillery position; say 100 guns, spread over a front of 4000 yds. To connect Meaux with the front, the French laid some 30 m. of narrow gauge railway largely along existing roads. The line was single, with numerous branches and sidings. They ran 11 regular trains to the front daily and half-a-dozen supplementary. The amount of artillery material sent up was over 5000 tons, without any projectiles; but it can easily be imagined that large demands were also made on transport for other purposes. For instance, one complete bakery train was sent up daily. The amount of ammunition sent up would be limited only by the power of transporting it. A siege train of 100 pieces could probably dispose of from 500 to 1000 tons of ammunition a day, at the maximum rate of firing.
But the most important question affecting the sieges of the future (putting aside accidental circumstances) will be the configuration of the ground. Assuming that local conditions do not specially favour the artillery of either side, it is highly probable that the artillery duel will result in a deadlock. If the besiegers’ guns do not succeed in silencing those of the defence from the 1st or distant artillery position (which, whether they are in cupolas or in concealed positions, will in any case be an extremely difficult task), it will be necessary for the infantry to press in; to feel for weak points, and to fight for those that offer better positions for fire and observation. In doing this they will have to face the defenders’ infantry, entrenched, backed by their unsilenced guns, and having secure places of assembly from which to deliver counter-attacks. The distance to which they can work forward and establish themselves under these conditions will depend on the ground. It will then be for the engineers to cross the remaining space by sap. This, under present conditions, will be a tedious process, and may even take long enough to cause the failure of the siege.
As to the manner of the sap, it will certainly be “deep,” as long as the defence retains any artillery power. When the 4 ft. 6 in. sap already described was first introduced, it was known as a “deep sap”; but the sieges of the future will probably necessitate a true deep sap, that is one in which the whole of the necessary cover is got below the surface of the earth.
Such a sap may consist of an open trench, about 6 ft. deep, the whole of the excavated earth being carried away through the trench to the rear; or a blinded trench, covered in as it progresses by splinter-proof timbers and earth; or a tunnelled trench, leaving a foot or so of surface earth undisturbed. In either case nothing should be visible from the front to attract artillery fire. As the sap is completed, it will sometimes be necessary to add a slight parapet in places, to give command over the foreground for the rifles of the guard of the trenches.
The sap will have to be pushed up quite close to the defenders’ trenches and obstacles. After that further progress must either be made by mining, or as seems very probable, by getting the better of the defenders in a contest with shells from short-range mortars.
Just as in the feudal ages a castle was built on some solitary eminence which lent itself to the defensive methods of the time, so in the future the detached forts and supporting points in the girdle of a fortress will be sited where smooth and gentle slopes of ground give the utmost opportunity to the defenders’ fire, and the least chance of concealment to the enemy. There will be considerable latitude of choice in the defensive positions; though not, of course, the same latitude as when the existence of a precipitous hill was the raison d’être of the castle. In some places, as at Port Arthur, the whole country-side may by reason of its steep and broken slopes be unfavourable to the defence, though even then genius will turn the difficulties to account. But wherever it is possible the defender will provide for a space of 1000 yds. or so, swept by fire and illuminated by searchlights, in front of his lines. That space will have to be crossed by sap, and it needs little imagination to realize how great the task will be for the besieger.
There are other modern methods of siege warfare to be noticed, the use of which is common to besiegers and besieged. Much is expected of balloons; but the use of these in war is unlikely to correspond to peace expectations. They must be kept at a considerable distance from the enemy’s guns, a distance which will increase as the means of range-finding improve; and as the height from which they can observe usefully is limited, so is the observers’ power to search out hidden objects behind vertical screens. Thus, suppose a captive balloon at a height of 2000 ft., and distant 4000 yds. from an enemy’s howitzer battery: and suppose the battery placed behind a steep hill-side or a grove of trees, at such a distance that a shell fired with 30° elevation can just clear this screen. The line of sight from the observer to the battery is inclined to the horizontal at 20003 × 4000, that is 16, or roughly 10°. It is obvious, therefore, that the observer cannot see the battery.
Balloon observers are expected to assist the batteries by marking the effects of their fire. For this to be done on any practical scale a balloon would be required for each battery: that is, for only 100 guns, some 20 or 25 balloons. These would require an equal number of highly skilled observers (of whom there are not too many in existence), besides the other balloon personnel and accessories, and the means of making gas, which is too much to expect, even if an enemy were obliging enough to give notice of his intentions.
Telephones and all other means of transmitting intelligence rapidly are now of the utmost importance to both attack and defence. Maps marked with numbered squares are necessary for directing artillery fire, especially from cupolas. Organization in every branch will give better results than ever before, and the question of communication and transport from the base of supplies right up to the front needs detailed study, in view of the great weight of ammunition and supplies that will have to be handled.
The use of light mortars for the trenches, introduced by Coehoorn and revived with extemporized means at Port Arthur, needs great attention. It may be prophesied that the issue of important sieges in the future, when skilfully conducted on both sides with sufficient resources, will depend mainly on the energy of the defenders in trench work, on mining and countermining in connexion with the trenches, and on the use of light mortars made to throw large charges of high explosive for short distances with great accuracy.
For a brief narrative of the siege of Port Arthur in 1904, one of the greatest sieges of history, both as regards its epic interest and its military importance, the reader is referred to the article Russo-Japanese War.
Definitions.—The following definitions may be useful, but have no place in the evolution of the attack, to which this section is mainly devoted.
Investment.—This most necessary, almost indispensable operation of every siege consists in surrounding the fortress about to be besieged, so as to cut off its communications with the outside world. Preliminary investment which is carried out by cavalry and light troops before the arrival of the besieging force, consists in closing the roads so as to shut out supplies and reinforcements. Close investment should be of such a character as to prevent any sort of communication, even by single messengers or spies. The term “blockade” is sometimes loosely used instead of investment.
Lines of Circumvallation and Contravallation.—These now obsolete terms were in great use until the 19th century. The circumvallation was a line of parapet which the besieger made outside the investing position of his own force, to protect it when there was a chance of attack by a relieving army. The line of contravallation was the line of parapet and trench sometimes made by the besieger all round the town he was attacking, to check the sorties of the garrison.
Observing Force.—When circumstances make the reduction of a particular fortress in the theatre of operations unnecessary a force is often detached to “observe” it. The duty of this force will be to watch the garrison and prevent any hostile action such as raids on the lines of communications.
Bombardment.—This operation, common to all ages, consists in a general (sometimes an indiscriminate) fire against either the whole target offered by the fortress or a particular section of that target. In ancient and medieval times the effect of a bombardment—whether of ordinary missiles, of incendiary projectiles, or of poisonous matters tending to breed pestilence—upon a population closely crowded within its walls was very powerful. In the present day little military importance is attached to bombardment, since under modern conditions it cannot do much real harm.
IV. Military Mining
It has been noted already that mining is one of the most ancient resources of siege warfare. The use of gunpowder in mining operations dates from the end of the 15th century. When Shakespeare makes Fluellen say, at Henry V.’s siege of Harfleur, “th’athversary is digt himself four yards under the countermines; I think ’a will plow up all, if there is not better directions,” he is anticipating the development of siegecraft by nearly 100 years. Pedro di Navarro, a Spanish officer, is credited with the first practical use of explosive mines. He employed them with great success at the siege of Naples in 1503; and afterwards, when rebuilding the Castello Nuovo after the siege, was probably the first to make permanent provision for their use in countermines. Countermining had been a measure of defence against the earlier methods of attack-mining; the object being to break into the besiegers’ galleries and fight hand to hand for the possession of them. When the explosive mine was introduced, it became the object of the defenders to establish their countermines near the besiegers’ galleries and destroy them by the effect of the explosion. In the 400 years or so that have passed this branch of warfare has changed less than any other. Methods of mining have not advanced much, and the increased power of high explosives as compared with gunpowder has its least advantage in moving masses of earth.
When a besieger has arrived by means of trenches within a certain distance of the enemy’s works without having subdued their fire, he may find that the advance by sap becomes too slow and too dangerous. He can then advance underground by means of mine galleries, and by exploding large charges at the heads of these galleries can make a series of craters. These craters are then occupied by infantry, and are connected with each other and with the parallel in rear by trenches, thus forming a new parallel. If not interfered with by the defenders the besieger can advance in this way until he reaches the counterscarp. His mines will now be turned to a new purpose, viz. to breach the counterscarp and afterwards the escarp. This is done by placing suitable charges at intervals behind the scarps at such a height above the foundations that the pressure of the earth above the mine will more than counterbalance the resistance of the masonry.
But if the defenders are active, they will countermine. There is as a general rule this broad difference between the mines of the defence and those of the attack, that the defenders do not wish the surface of the ground broken, lest increased opportunities of getting cover should be Mines and countermines. offered to the besiegers. The object of the defence, therefore, is to destroy the besiegers’ galleries without forming craters, and for this purpose they generally endeavour to get underneath the attack galleries. The defenders may, however, wish, if the opportunity is allowed them, to explode mines under the attack parallels, in which case there is of course no objection to disturbing the surface.
“At the commencement of the subterranean war the main object of the defence is to force the besieger to take to mining operations as early as possible, as it is a tedious operation and will prolong the siege. Every endeavour must be made to push forward countermines so as to meet and check the attack. On the approach of the opponents to each other careful listening for the enemy must be resorted to. To this end it is necessary at irregular intervals to suspend all work for some minutes at a time, closing doors of communication and employing experienced listeners at the heads of the countermines. This matter is a most important one, as a premature explosion of the defender’s mines is a double loss to the defender, a loss of a mine and an advantage to the enemy in more than one way. As soon as the overcharged mines of the besieger have been fired, a heavy fire should be brought to bear on the craters, and if possible sorties should be made to prevent the enemy occupying them. At the same time every effort should be made underground to surround with galleries, and as it were isolate, the craters so as to prevent the besieger making a new advance from them. The efforts of the attack at this stage will probably be directed to the formation of what are called “Boule shafts” (i.e. shafts partially lined in which charges are hastily fired with little or no tamping), and to meet these in time the defender may resort to the use of boring tools, and so place charges somewhere in advance of the heads of the countermines. His great object must be to prevent as long as possible the besieger from getting underground again; and these occasions, when the power of resistance is temporarily equal to, if not greater than, that of the attack, should be made the most of by the defence.” (Lewis, Text-book on Fortification, &c., 1893.)
The defence has the advantage, in the case of fortresses, of being able to establish beforehand a system of countermine galleries in masonry. Many systems have been worked out for this purpose. A good typical arrangement is that of General Marescot, published in 1799, shown in fig. 72.
<![]() |
| From Textbook of Fortification, by permission of the Controller H.M. Stationery Office. |
| Fig. 72. |
The main galleries (those running out in a straight line from the counterscarp gallery e to three of the points a) fall gently to the front to a depth of 30 or 40 ft. below the surface—the deeper they are the less they will suffer from the enemy’s mines. Branch galleries (marked c b + d c) run obliquely upward from them to right and to left, leading to the mines, which are placed at various depths, according to circumstances.
Two main points must be observed in any system of countermines: the branch galleries must run obliquely forward, so as not to present their sides to the action of the enemy’s mines; and the distance between the ends of the branches from adjacent main galleries should be such that the enemy cannot pass between them unheard. This distance will vary with the nature of the soil, but may be taken roughly as 20 yds. A convenient size for main galleries is 6 ft. high by 3 ft. wide: branch galleries may be 5 ft. by 3 ft. When the enemy is approaching, other branch galleries, called listeners, will be pushed out from main and branch galleries. The section to fig. 1 of fig. 72 shows openings left for the purpose.
Another use of mines in defence is in connexion with breaches. A permanent arrangement for this purpose, by General Dufour, is shown in fig. 72. Yet another use, on which much ingenuity was expended in the 18th century, is to extemporize retrenchments.
The charges of mines depend of course upon the effect which is desired. When the charge is strong enough to produce a crater, the radius of the circular opening on the surface of the ground is called the radius of the crater. The line drawn from the centre of the charge to the nearest Different kinds of mines. surface, which is expressed in feet, is called the line of least resistance (L.L.R.). When a mine produces a crater the diameter of which is equal to the line of least resistance, it is called a one-lined crater; when the diameter is double the L.L.R., a two-lined crater and so on. Common mines are those which produce a two-lined crater. Over-charged mines produce craters greater than two-lined, and undercharged mines less. A camouflet does not produce a crater; it is used when the object is to destroy an enemy’s gallery without breaking the surface. Fig. 73 shows sections of the different kinds of mines, with their craters and the effect they will produce downwards and horizontally in ordinary earth.
![]() |
| From Instructions in Military Engineering, by permission of the Controller of H.M. Stationery Office. |
| Fig. 73.—Mines. |
Consideration of this figure will show that it is possible to place a long charge at such a depth below the surface that it will destroy all galleries of the enemy within a considerable radius, without much disturbing the surface of the ground.
Bored mines, which have been alluded to above, are a comparatively recent innovation. When the enemy is heard at work in one of his galleries and his position approximately determined by the sound, it is necessary to drive a branch gallery with all speed in that direction, and when it has advanced as far as appears necessary, to load, tamp and discharge a mine before the enemy can fire his own mine. This is one of the most delicate and dangerous operations of war, and success will fall to those who are at the same time most skilful and most determined. The work can be hastened and made less dangerous as follows: Instead of driving a branch gallery, a hole several inches in diameter is bored in the required direction. With suitable tools there is no difficulty in driving a straight bore hole 20 or 30 ft. long. A small charge of high explosives is then pushed up to the end of the borehole and fired. This forms a small camouflet chamber by compressing the earth around it. Into this chamber the charge for the mine is passed up the bore-hole. No tamping of course is required.
Mine warfare is slow, dangerous and uncertain in its results. It will certainly delay the besiegers’ advance very much and may do so indefinitely. One point is distinctly in favour of the defence, namely that when ground has been much mined it becomes charged with poisonous gases. Some explosives are less noxious than others in this way, and it will be advantageous for the attack, but not necessarily for the defence, to make use of these.
Calculation of Charges.—The quantity of powder required for a charge is expressed in lbs. in terms of L.L.R.3, and the following formulae are used:
l = L.L.R. in feet, r = radius of crater in feet, c = powder charge in pounds, s = a variable dependent on the nature of the soil.
For a common mine c = (s/10) l 3.
For an overcharged mine c = (s/10) {l + .9 (r − l)}3.
For an undercharged mine c = (s/10) {l − .9 (l − r)}3.
The values to be given to s are:
| Nature of Soil. | Value of s. |
| Very light earth | 0.80 |
| Common earth | 1.00 |
| Hard sand | 1.25 |
| Earth mixed with stones | 1.40 |
| Clay mixed with loam | 1.55 |
| Inferior brickwork | 1.66 |
| Rock or good new brickwork | 2.25 |
| Very good old brickwork | 2.50 |
Military mining is carried on by means of vertical shafts and horizontal or inclined galleries. When the soil is very stiff, very little or even no lining is required for shafts and galleries; but usually they have to be lined either with cases or frames.
Cases make a complete lining of 2 in. planking. Frames are used at intervals of 4 or 5 ft. to support a partial lining of planks. Cases are of course preferable in other respects; but in ordinary soil they take up more timber.
There are two kinds of gallery in ordinary use in the British service, namely the common gallery whose interior dimensions with cases are 5 ft. 6 in. × 2 ft., and the branch gallery which is 4 ft. × 2 ft. The shaft has about the same dimensions as a branch gallery. Formerly it was Shafts and galleries.sometimes necessary in the systematic attack of a fortress to get guns down into the ditch. For this purpose a “great gallery” was used, 6 ft. 6 in. in height and 6 ft. 8 in. wide, internal dimensions.
Miners’ Tools.—These are few and simple. The pick and shovel differ from the ordinary types in having rather shorter helves suitable for the confined space in which they are used. There is also a push-pick, an implement with a straight helve and a pointed shovel head 6 in. long and 312 in. wide. The miner’s truck, used for drawing the earth from the end of the gallery to the bottom of the shaft, is a small wooden truck holding about 2 cub. ft. of earth. Formerly the noise of the wheels of the truck passing over the uneven wooden floor of the gallery was very liable to be heard by the enemy. To obviate this they now have leather tyres and should run on battens nailed to the floor. The miner’s bucket is a small canvas bucket with a couple of ropes attached, by which the earth can be drawn up the shaft. Nowadays, however, the truck itself has chains attached to it, by which it is drawn up, with the aid of a windlass, to the surface. By this method more earth can be taken up in one lift, and time and labour are not wasted in transferring the contents of the truck to the bucket.
Ventilation is an important point. The breath of the miners and the burning of their candles (when electric light is not available) vitiates the air in the galleries; so that even in clean ground a gallery should not be driven more than 60 ft. without providing some means of renewing the air. This is usually done by forcing fresh air, by means of a pump or bellows, through a flexible hose to the head of the gallery. Where mines have been fired close by, there is great danger from poisonous gases filtering through the soil into the gallery. This difficulty is nowadays met by the use of special apparatus, such as helmets into which fresh air is pumped, so that the wearers need not breathe the air of the gallery at all. Ventilation can also be assisted by boring holes vertically to the surface of the ground.
Where a point has been reached at which it is proposed to fire a mine, a chamber just large enough to hold the charge is cut in the side of the gallery. The object of this is to keep the charge out of the direct line of the gallery and thus increase the force of the explosion. The charge may be placed in canvas bags, barrels or boxes, precautions being taken against damp.
The operation of loading is of the first importance, for if the mine is not exploded with success, not only is valuable time lost, which may give the enemy his opportunity, but it will probably be necessary to untamp the mine in order to renew the fuze; an operation attended by considerable danger. Charging mines. The loading of the mine should therefore be done by the officer in charge with his own hands. He has to work in a very cramped position and practically in the dark (unless with electric light) as of course no naked lights can be allowed near powder. Everything should therefore be prepared beforehand to facilitate the loading of the mine and placing of the fuze. At Chatham a 1000 ℔ mine, at the end of a gallery 136 ft. long, has been loaded in 30 minutes. The powder was passed up the gallery by hand in sandbags, and emptied into a box of the required size.
Whatever method of firing (see below) is employed, the officer who loads the mine must be careful to see that it is so arranged as to make firing certain, and that the leads passing out of the gallery are not liable to damage in the process of tamping.
Tamping.—This operation consists in filling up the head of the gallery solidly, for such a distance that there shall be no possibility of the charge wasting its force along the gallery. The distance depends on the charge and on the solidity of the tamping. For a common mine it should extend to about 32 L.L.R. from the charge, when the tamping is of earth in sandbags; for a 3-lined crater, to about 2 L.L.R. Tamping can be improved by jamming pieces of timber across the shaft or gallery among the other filling.
Firing.—This may be done electrically, or by means of safety or instantaneous fuze or powder hose.
Electric firing is the safest and best, and allows of the charge being exploded at any given moment. For this purpose electric fuzes (for powder) or electric detonators (for guncotton or other high explosive) are employed. The current that fires them is passed through copper wire leads.
The safety fuze used in the British service burns at the rate of about 3 ft. a minute. Instantaneous fuze burns at the rate of a mile a minute. Both can be fired under water. They are often used in conjunction, a considerable length of instantaneous fuze, leading from the charge, being connected to a short length of safety fuze.
Powder hose, an old-time expedient, can be extemporized by making a tube of strong linen, say 1 in. in diameter, and filling it with powder. It burns at the rate of 10 to 20 ft. per second.
Explosives.—The old-fashioned gunpowder of the grained black variety is still the best for most kinds of military mines. Pebble and prism powders do not give as good results, presumably because their action is so slow that some of the gases of explosion can escape through the pores of the earth. High explosives, with their quick shattering and rending effect, are little more effective than gunpowder in actually moving large quantities of earth. Most of them give off much more poisonous fumes than gunpowder. Some recent high explosives, however, have been specially designed to be comparatively innocuous in this respect.
Some formulae have been given above for the calculation of charges. It will, however, simplify matters for the reader to record some actual instances of charges fired both in peace and Effects of mines.war.
In the matter of scientific experiment we find Vauban as usual leading the way, and the following results among others were obtained by him at Tournay in 1686 and 1689: A charge of 162 ℔ placed 13 ft. below the surface produced a crater of 13 ft. radius (a two-lined crater, or “common mine”). Galleries were destroyed at distances equal to the L.L.R. in both horizontal and vertical directions. Double the charge, placed at double the depth, i.e. 324 ℔ with an L.L.R. of 27 ft. made no crater, but like the first destroyed galleries below it and on each side at distances equal to the L.L.R. A charge of 3828 ℔ with L.L.R. of 37 ft. made a two-lined crater and destroyed a gallery distant 61 ft. horizontally.
Bernard Forest de Belidor, a French engineer, made many experiments at La Fère about 1732, and 20 years later, as a general officer and inspector of miners, continued them on a larger scale. His experiments were directed towards destroying an enemy’s galleries at greater distances than had hitherto been supposed possible, by means of very large charges (in proportion to the L.L.R.) which he called “globes of compression.” In one of them a charge of 4320 ℔ of powder placed only 15 ft. 9 in. below the surface damaged or “compressed” a gallery distant 65 ft. horizontally. The radius of the crater was 34 ft. 8 in.
At Frederick the Great’s siege of Schweidnitz in 1762 some very large charges were exploded. One of them, of 5400 ℔ with an L.L.R. of 16 ft. 3 in., made a crater of 42 ft. 3 in. radius. Readers of Carlyle’s Frederick the Great may recall his description of the contest of the rival engineers on this occasion.
At Graudenz in 1862 (experiments) a charge of 1031 ℔ of powder placed 10 ft. deep, untamped, in a vertical shaft, made a crater of 15 ft. 6 in. radius. A charge of 412 ℔ of guncotton, calculated as being equivalent to the above charge of powder and placed under the same conditions, made a crater of 14 ft. radius. The absence of tamping in both cases of course placed the gunpowder at a disadvantage.
Perhaps the most interesting mine ever fired was that at the siege of Petersburg in the American Civil War, in June 1864. The circumstances were all abnormal, and the untechnical account of it in Battles and Leaders of the Civil War (vol. iv.) is well worth perusal. No mining tools or materials The Petersburg Mine, 1864. and no military miners were available; and no one had any confidence in the success of the attempt except its originator, Lieut.-Colonel Pleasants, a mining engineer by profession, his regiment which was recruited from a mining population, and General Burnside the corps commander. The opposing entrenchments were 130 yds. apart. The mine gallery was started behind the Federal lines and driven a distance of 510 ft. till it came under a field redoubt in the Confederate lines. There two branches were made right and left, each about 38 ft. long, and in them eight mines aggregating 8000 ℔ of powder were placed. The first attempt to fire them failed, and an officer and a sergeant volunteered to enter the gallery to seek the cause of the failure. A defective splice in two lengths of fuze was thus discovered and repaired. At the second attempt all the mines were fired simultaneously with success, and made a gigantic crater 170 ft. long by 60 ft. wide and 30 ft. deep. The occupants of the redoubt, at least several hundred men (they have been stated at 1000), were blown up and mostly killed. The assault which followed, however, failed completely, for want of organization. The infantry was drawn up in readiness to advance, but no outlets had been provided from the parallel, and this and other causes delayed the occupation of the crater and gave the defending artillery a moment’s respite. Thus the assailants gained the crater but could not advance beyond it in face of the defenders’ fire, nor could they establish themselves within it, on its steep clay sides, for want of entrenching tools. A good many troops were sent forwards in support, but being in many cases of inferior quality, they could not be induced to go forward, and huddled in disorder in the already overcrowded crater. Over 1000 of these were captured when the Confederates retook the crater by a counter-attack and the total loss of the Federals in the attack was nearly 4000.
The wars of the last generation have done little or nothing to advance the science of military mining, but a good deal has been done in peace to improve the means. Electric lighting and electric firing of mines will be a great help; modern drilling machines may be used to go through rock; ventilating arrangements are much improved; and the use of bored mines is sure to have great developments. The Russo-Japanese War taught nothing new in mine-warfare, or as to the effects of mines, but the siege of Port Arthur had this moral among others; just as in future, in the frontal attack of positions, trench must oppose trench, so in fortress warfare mines will be more necessary than ever. It appears that they will be essential to destroy both the ditch-flanking arrangements of forts and the escarp or other permanent obstacle beyond the ditch.
V. Field Fortification
Field Fortifications, now more often spoken of as field defences, are those which are constructed at short notice, with the means locally available, usually when the enemy is near at hand. Subject to the question of time, a very high degree of strength can be given to them, if the military situation makes it worth while to expend sufficient labour. A century or more ago, the dividing line between permanent and field fortification was very rigidly drawn, since in those days a high masonry escarp surmounted by a rampart was essential to a permanent fortress, and these could naturally not be extemporized. Works without masonry, in other ways made as strong as possible with deep ditches and heavy timbers,—such as would require about six weeks for their construction—were known as semi-permanent, and were used for the defence of places which acquired strategic importance in the course of a war, but were not immediately threatened. The term field fortification was reserved for works constructed of lighter materials, with parapets and ditches of only moderate development. Redoubts of this class required a fortnight at most for their construction.
In modern fortification if cupolas and deep revetted ditches were essential to permanent defences, the dividing line would be equally clear. But as has been shown, this is not universally admitted, and where the resources exist, the use of our present means of construction, such as steel joists, railway rails, reinforced concrete and wire, in conjunction with the defensive power of modern firearms, makes it possible to extemporize in a very short time works having much of the resisting power of a permanent fortress. Further, such works can be expanded from the smallest beginnings; and, if the site is not too exposed, in the presence of the enemy.
Field fortification offers, as regards the actual constructions, a very limited scope to the engineer; and a little consideration will show that its defensive possibilities were not greatly affected by the change from machine-thrown projectiles to those fired by rude smooth-bore guns. There is therefore nothing in the history of this branch of the subject that is worth tracing, from the earliest ages to about the end of the 18th century. One or two points may be noticed. The use of obstacles is probably one of the earliest measures of defence. Long before missile weapons had acquired such an importance as to make it worth while to seek shelter from them, it would obviously have been found desirable to have some means of checking the onrush of an enemy physically or numerically superior. Hence the use by savage tribes, to this day, of pits, pointed stakes hidden in the grass, entanglements and similar obstacles. In this direction the ages have made no change, and the most highly civilized nations still use the same obstacles on occasion.
Another use of field defences common to all ages is the protection of camps at night, where small forces are operating against an enemy more numerous but inferior in arms and discipline. In daylight such an enemy is not feared, but at night his numbers might be dangerous. Hence the Roman practice of making each foot-soldier carry a couple of stakes for palisades; and the simple defence of a thorn zariba used by the British for their camps in the Sudan.
Palisades and trenches, abatis and sharpened stakes have always been used. Except wire, there is practically no new material. As to methods, the laagers of the Boers are preceded by the wagon-forts of the Hussites, and those no doubt by similar arrangements of British or Assyrian war chariots; and so in almost every direction it will be found that the expedient of to-day has had its forerunners in those of the countless yesterdays. The only really marked change in the arrangements of field defences has been caused not by gunpowder but by quick-firing rifled weapons. For that reason it is worth while to consider briefly what were the principles of field fortification at the end of the 18th century. That period has been chosen because it gives us the result of a couple of centuries of constant fighting between disciplined troops with fairly effective firearms. The field defences of the 19th century are transitional in character. Based mainly on the old methods, they show only faint attempts at adaptation to new conditions, and it was not till quite the end of the century that the methods now accepted began to take shape.
The essential elements of fieldworks up to the time of the Peninsular War were command and obstacle; now they are protection and concealment.
The command and obstacle were as necessary in the days of
smooth-bore muskets and guns as in those of javelins and
arrows. When the enemy could get close up to a
work without serious loss, and attack in close order,
the defenders needed a really good obstacle in front
Old type
of field defences.
of them. Moreover, since they could not rely on their
fire alone to repulse the attack, they needed a two-deep line, with
reserves close at hand, to meet it with the “arme blanche.”
For this purpose a parapet 7 or 8 ft. high, with a steep slope,
perhaps palisaded, up which the attackers must climb after
passing the obstacle, was excellent. The defenders after firing
their last volley could use their bayonets from the top of the
parapet with the advantage of position. The high parapet had
also the advantage that the attackers could not tell what was
going on inside the redoubt, and the defenders were sheltered
from their fire as well from view until the last moment.
The strength of a fortified line in the 18th century depended principally on its redoubts. Lines of shelter trenches had little power of defence at the time, unless they held practically as many men as would have sufficed to fight in the open. Obstacles on the other hand had a greater value, against the inelastic tactics of the time, than they have now. A good position therefore was one which offered good fire-positions for redoubts and plenty of facilities for creating obstacles. Strong redoubts which could resist determined assaults; good obstacles in the intervals, guns in the redoubts to sweep the intervals, and troops in formed bodies kept in reserve for counter-strokes—these were the essentials in the days of the smooth-bore.
The redoubts were liable to a heavy cannonade by field-guns before the attack. To withstand this, the parapets had to be made of a suitable thickness—from 4 or 5 ft. upwards—according to the time available, the resisting nature of the soil, and the severity of the bombardment expected.
The whole of the earth for the parapet was as a rule obtained from the ditch, in order to make as much as possible of this obstacle. The garrison in all parts of the interior of the redoubt were to be sheltered, if possible, from the enemy’s fire, and with this object great pains were bestowed on the principle of “defilade.” The object of defilade, which was a great fetish in theoretical works, was so to arrange the height of the parapet with reference to the terreplein of a work that a straight line (not, be it observed, the trajectory of the projectiles) passing from the muzzle of a musket or gun on the most commanding point of the enemy’s position, over the crest of the parapet, should just clear the head of a defender standing in any part of the work. This problem of defilade became quite out of date after the development of time shrapnel, but was nevertheless taught with great rigour till within the last twenty years.
The sectional area of the ditch was calculated so that with an addition of about 10% for expansion it would equal that of the parapet. If a wider and deeper ditch was considered necessary, the surplus earth could be used to form a glacis.
The interior of the redoubt had to afford sufficient space to allow the garrison to sleep in it, which was sometimes a matter of some difficulty if a small irregularly shaped work had to contain a strong garrison. Consideration of the plan and sections of these works will show that the banquette for infantry with its slopes, and the gun platforms, took off a good deal from the interior space within the crest-line. Guns were usually placed at the salients, where they could get the widest field of fire. They were sometimes placed on the ground level, firing through embrasures in the parapet, and sometimes on platforms so as to fire over the parapet (en barbette).
As in permanent fortification, immense pains were taken to elaborate theoretically the traces of works. A distinction was made between forts and redoubts, the former being those which were arranged to flank their own ditches, while the redoubts did not. Redoubts again were classed as “closed,” those which had an equally strong defence all round; and “half-closed,” those which had only a slight parapet or timber stockade for the gorge or rear faces. Open works (those which had no gorge defence) were named according to their trace, as redans and lunettes. A redan is a work with two faces making a salient angle. It was frequently used in connexion with straight lines of trench or breastwork. A lunette is a work with two faces, usually forming an obtuse angle, and two flanks.
The forts described in the text-books, as might be expected, were designed with great ingenuity, with bastioned or demi-bastioned fronts, star traces, and so forth, and in the same books intricate calculations were entered into to balance the remblai and déblai, that is, the amount of earth in the parapets with that excavated from the ditches. In practice such niceties of course disappeared, though occasionally when the ground allowed of it star forts and bastioned fronts were employed.
On irregular ground the first necessity was to fit the redoubt to the ground on which it stood, so as to sweep the whole of the foreground, and this was generally a sufficiently difficult matter without adding the complications of flanking defences. Sir John Jones, speaking of the traces of the several works in the Torres Vedras lines, says:—
“The redoubts were made of every capacity, from that of fig. 74 a, limited by want of space on the ground it occupied to 50 men and two pieces of artillery, to that of fig. 74 b, for 500 men and six pieces of artillery, the importance of the object to be attained being the only guide in forming the dimensions. Torres Vedras. Many of the redoubts first thrown up, even some of the smallest, were shaped like stars, under the idea of procuring a flank defence for the ditches; but this construction was latterly rejected, it being found to cut up the interior space, and to be almost fallacious with respect to flank defence, the breadth of the exterior slopes being in some cases equal to the whole length of the flanks so obtained. Even when, from the greater size of the work, some flanking fire was thus gained, the angle formed by the faces was generally so obtuse that it demanded more coolness in the defenders than ought reasonably to be expected to aim along the ditch of the opposite face: and further, this construction prevented the fire of the work being more powerful in front than in rear.
<![]() |
| Fig. 74.—Torres Vedras Works. |
In order to decide on the proper trace of a work, it is necessary to consider whether its object be to prevent an enemy establishing himself on the ground on which it is to be placed, or whether it be to insure a heavy fire of artillery on some other point in its vicinity. In the first case every consideration should be sacrificed to that of adding to its powers of self-defence by flanks or other expedients. In the second, its powers of resistance are secondary to the establishment of a powerful offensive fire and its trace cannot be too simple. Latterly, the shape of the redoubts was invariably that most fitted to the ground, or such as best parried the enfilade fire or musketry plunge of neighbouring heights, care being taken to present the front of fire deemed necessary towards the pass, or other object to be guarded; and such will generally be found the best rule of proceeding.
This recommendation, however, is not intended to apply to isolated works of large dimensions, and more particularly to those considered the key of any position. No labour or expense should be spared to render such works capable of resisting the most furious assaults, either by breaking the parapet into flanks, or forming a flank defence in the ditch; for the experience gained in the Peninsula shows that an unflanked work of even more than an ordinary field profile, if skilfully and determinedly assaulted, will generally be carried.... Nor does the serious evil of curtailing the interior space, which renders breaks in the outline so objectionable in small works, apply to works of large dimensions.... Under this view the great work on Monte Agraça (fig. 75) must be considered as very defective, the flank defence being confined to an occasional break of a few feet in the trace, caused by a change of direction in the contour of the height, whilst the interior space is more than doubly sufficient for the number of its allotted garrison to encamp.
<![]() |
| Fig. 75.—Monte Agraça, Torres Vedras. |
Interior and other Defences.—This work, however, had some of its salient points ... cut off by earthen lines of parapet, steeply revetted externally, and so traced as to serve for traverses to the interior. It had also three or four small enclosed posts formed within it; and the work at Torres Vedras (fig. 76) had each of its salient points formed into an independent post. These interior defences and retrenchments were intended to guard against a general panic amongst the garrison, which would necessarily be composed in part of indifferent troops, and also to prevent the loss of the work by the entry of the assailants at any weak or ill-defended point. Such interior lines to rally on are absolutely essential to the security of a large field-work. They serve as substitutes for a blockhouse or tower, placed in the interior of all well-constructed permanent earthen works, and merit far more attention than they generally receive.
<![]() |
| Fig. 76.—Torres Vedras Works. |
The small circular windmills of stone, which were frequently found occupying salient knolls ... readily converted into admirable interior posts of that nature. The profile of the several works varied on every face and flank, according to its liability to be attacked or cannonaded; the only general rule enforced being that all ditches should be at least 15 ft. wide at top and 10 ft. in depth, and the crest of the parapet have at least 5 ft. command over the crest of the counterscarp. No parapet exceeded 10 ft. in thickness, unless exposed to be severely cannonaded, and few more than 6 or 8 ft.; and some, on high knolls, where artillery could not by any possibility be brought against them, were made of stone or rubble less than 2 ft. in thickness, to gain more interior space, and allow full liberty for the use of the defenders’ bayonets.”
Fig. 77 gives two typical sections of these works.
<![]() |
| Fig. 77. |
The works of Torres Vedras have been chosen for illustration because they offer very good historical examples, and also because of the value of the critical remarks of Sir John Jones, who as a captain was the engineer in charge of their construction. At the same time it must be remembered that they differ from ordinary field-works in having an unusual degree of strength, plenty of time and civilian labour having been available for their construction. In this respect they approximate more to semi-permanent works, the main reason why they did not receive under the circumstances a greater development of ditch and parapet being that in addition to the large number of works required, much labour was expended in abatis, inundations, scarping hill-sides and constructing roads.
Some further remarks of Sir John on the situations of the works are very instructive:—
“Many of the redoubts were placed on very elevated situations on the summit of steep hills, which gave them a most imposing appearance; but it was in reality a defect ... for the fire of their artillery on the object to be guarded became so plunging as to lose half its powers; the musketry could not be made to scour the face of the hill sufficiently; and during the night both arms became of most uncertain effect.
“The domineering situation of the redoubts, however, gave confidence to the young troops which composed their garrisons, protected them from a cannonade, and screened their interior from musketry, unless fired at a high angle, and consequently at random. These considerations perhaps justify the unusually elevated sites selected for most of the redoubts on the lines, though they cannot induce an approval of them as a general measure.”
The chief principle of the period was thus that the redoubts were the most important features of lines of defence, and that they combined physical obstacle and protection with good musketry and artillery positions. The value of concealment was not ignored, but it was as a rule subordinated to other considerations.
The principles of this time remained unaltered until after the Crimean War. In the American Civil War the power of the rifle began to assert itself, and it was found that a simple breastwork defended by a double rank of men could protect itself by its fire against an ordinary assault. 19th century. This power of the rifle gave greatly enhanced importance to any defences that could be hastily extemporized behind walls, hedges or any natural cover. About the period of the Franco-German War other considerations came in. The increased velocity of artillery projectiles reduced in some ways their destructive effects against earth parapets, because the shell had an increasing tendency to deflect upwards on striking a bank of loose earth. Also the use of shrapnel made it impossible for troops to find cover on the terreplein of a work some distance behind the parapet.
These considerations, however, were not fully realized at that time. The reason was partly a want of touch between the engineers and the non-technical branches of most armies, and partly that original writers from the Napoleonic wars to the present day have been more occupied with the primary question of the value of field defences as a matter of tactics than with their details considered from the standpoint of fortification.
There was always an influential school of writers who declaimed against all defences, as being injurious to the offensive spirit so essential to success. Those writers who treated of the arrangements of defences devoted themselves to theoretical details of trace quite after the old style; discussing the size and shape of typical redoubts, their distance apart and relation to lines of trenches, &c. The profiles—the thick parapet with command of 7 ft. or more, the deep ditch, and the inadequate cover behind the parapet—remained as they had been for a century.
The American Civil War showed the power of rifles behind slight defences. Plevna in 1877 taught a further lesson. It proved the great resisting power of extemporized lines; but more than that, we begin to find new arrangements for protection against shell fire (see plans and sections in Greene’s The Russian Army and its Campaign in Turkey). The trace of the works and the sections of parapet and ditch suggest Torres Vedras; but a multiplication of interior traverses and splinter-proof shelters show the necessity for a different class of protection. The parapet was designed according to the old type, for want of a better; the traverses and shelters were added later, to meet the necessities of the case. The Turks also used two or three tiers of musketry fire, as for instance one from the crest of the glacis, one from the parapet, and one from a traverse in rear of it. This, however, is a development which will not be necessary in future, thanks to magazine rifles.
From 1877 to 1899 the efficiency of rifles and guns rapidly increased, and certain new principles, causing the field defences of the present day to differ radically from those of the 18th century, remained to be developed. These may be considered under the Principles of modern field defences.following heads: the nature of protection required, the diminished need of obstacle, and the adaptation of works to ground.
The principle that thickness of parapet is no longer required, to resist artillery fire, was first laid down at Chatham in 1896. The distance at which guns now engage makes direct hits on parapets comparatively rare. Further, a shell striking near the crest of a parapet may perhaps kill one man if he is in the way, and displace a bushel of earth. That is nothing. It is the contents of the shell, whether shrapnel or explosive, that is the source of danger and not the shell itself. Thus the enemy’s object is to burst his common shell immediately behind the parapet, or his shrapnel a short distance in front of it, in order to get searching effect. It follows that a parapet is thick enough if it suffices to stop rifle bullets, since the same thickness will a fortiori keep out shrapnel bullets or splinters of shell. For this purpose 3 ft. is enough.
Real protection is gained by a trench close in rear of the parapet, deep enough to give shelter from high angle shrapnel, and narrow enough to minimize the chance of a common shell dropping into it. This protection is increased by frequent traverses across the trench.
The most essential point of all is concealment. In gaining this we say good-bye finally to the old type of work. Protection is now given by the trench rather than the parapet; command and the ditch-obstacle (which furnished the earth for the high parapet) are alike unnecessary. Concealment can therefore be studied by keeping the parapet down to the lowest level above the surface from which the foreground can be seen. This may be 18 in. or less.
The need of obstacle, in daylight and when the defenders are not abnormally few, has practically disappeared. For night work, or when the assailant is so strong as to be able to force home his attack in face of protected rifle fire, what is needed is not a deep ditch immediately in front of the parapet, difficult to climb, but also difficult to flank, but an obstacle that will detain him under fire at short range. It may be an entanglement, an abatis, an inundation: anything that will check the rush and make him move slowly.
In the adaptation of works to ground, the governing factor is the power of the rifle in frontal defence. We have seen that in Peninsular times great reliance was placed on the flanking defence of lines by guns in redoubts. Infantry extended behind a simple line of trench could not resist a strong attack without such support. Now, however, infantry behind a slight trench, with a good field of fire should be able to defend themselves against any infantry attack.
This being so, the enemy’s artillery seeks to locate the trenches and to cover them with a steady hail of shells, so as to force the defenders to keep down under cover. If they can succeed in doing this, it is possible for the attacking infantry to advance, and the artillery fire is kept up until the last moment, so that the attack may have the narrowest possible space to cover after the defenders have manned their parapets and opened fire. Fig. 78 shows the action of various natures of projectiles.
![]() |
| From Mil. Engineering, by permission of the Controller of H.M. Stationery Office. |
| Fig. 78.—Effect of Projectiles. |
We need not here discuss the rôle of the defenders’ artillery in replying to that of the enemy and playing on the attack; nor for the moment consider how far the defence of the trenches while under artillery fire can be made easier by overhead cover. The main question is—what is, in view of the nature of the attack, the best disposition of lines of trench; and do they require the addition of redoubts?
The most important point, with the object of protection, is that the trenches must not be conspicuous; this is the best defence against artillery. With the object of resistance by their own fire they must have a good view, or, as it is generally described, no dead ground in front of them. For this purpose 300 or 400 yds. may be enough if the ground is even and affords no cover.
This necessity for invisibility, together with the shallowness of the zone that suffices for producing a decisive fire effect, has of late years very much affected the choice of ground for a line of trenches.
For a defensive position on high ground, it was usually laid down until the South African War that a line of trenches should be on the “military crest” (Fr. crête militaire), i.e. the highest point on the hill from which the whole of the slopes in front can be seen. Thus in the three sections of ground Siting of trenches. shown in fig. 79 it would be at a, b and c respectively. The simplicity of this prescription made it attractive and it came to be rather abused in the text-books. There were, even before the improvements in artillery, objections to it, because on most slopes the military crest would be found at very different elevations on different parts of the line, so that by a strict adherence to the rule some of the trenches would be placed near the top of the hill, and some in dangerous isolation near the bottom. Moreover a rounded hill has no military crest.
![]() |
| Fig. 79. |
Further, we have to consider nowadays not only the position of the fire-trenches, but those of supports, reserves and artillery, and the whole question is extremely difficult.
For instance, considering the sections alone, as if they did not vary along the line, the positions at a and b, fig. 79, are bad because they are on the sky-line and therefore a good mark for artillery. That at b is especially bad because the slope in front is so steep that the defenders would have to expose themselves very much to fire down it, and the artillery fire against them can be kept up until the very last moment. The position c has the advantage of not being on the sky-line, but the position of the supports in rear is exposed.
![]() |
| Fig. 80. |
![]() |
| Fig. 81. |
![]() |
| Fig. 82. |
![]() |
| Fig. 83. |
Such a position as that at d, fig. 80, is good, but protected or concealed communications must be made for the supports coming from e over the brow of the hill.
Another possible position for the infantry line is at f, fig. 81, with the guns on the high ground behind. They might easily be quite concealed from the enemy’s artillery. The drawback is that no retirement up the exposed slope would be possible for them, except at night. The fire from f will be grazing, which will be a great advantage as compared with the plunging fire that would be obtained from a position up the hill.
It is idle, however, to give more than the most cursory consideration to sections of imaginary positions. It is only by actual practice on the ground that skill can be attained in laying out positions, and only a trained soldier with a good eye can succeed in it. Briefly, the advantages of view and position given by high ground must be paid for in some degree by exposure to the enemy’s artillery; and at least as much consideration—possibly as much labour—must be given to communications with the fire-trenches as to the trenches themselves. Irregular ground simplifies the question of concealment but also gives cover to the enemy’s approach. The lie of the ground will itself dictate the position of the trenches, subject to the predispositions of the responsible officer. On flat featureless ground the general trace of the trenches should be irregular. This makes a more difficult target for artillery, and affords a certain amount of cross and flanking fire, which is a very great advantage. Great care should, however, be taken not to expose the trenches to oblique or enfilade fire; or at least to protect them, if so exposed, by traversing.
Concealment of trenches is generally attempted by covering the freshly turned earth of the small parapet with sods, leafy branches or grass. In this connexion it should be remembered that after a day or two cut leaves and grass wither and may become conspicuous against a green surface. Where the ground Trenches. is so even that a good view of the foreground is possible from the surface level, the trench may be made without a parapet; but this entails great labour in removing and disposing of the excavated earth. A common device is to conceal the parapet as well as possible and to make a dummy trench some distance away to draw fire.
Besides the direct concealment of trenches, care must be taken that the site is not conspicuous. Thus a trench should not be placed along the meeting line of two different kinds of cultivation, or along the edge of a belt of heather on a hill-side, or where a difference of gradient is sharply defined; or where any conspicuous landmark would help the enemy’s artillery to get the range.
Trenches are broadly distinguished as “fire trenches” and “cover trenches,” according as they are for the firing line or supporting troops. The following simple types are taken from the 1908 edition of Military Engineering (part 1): “Field Defences.”
Fig. 82 is the most common form of fire trench, in which labour is saved by equalizing trench and parapet. This would take 112 to 2 hours in ordinary soil. Fig. 83 shows the same trench improved by 2 or 3 hours’ more work. Fig. 84 shows a fire trench without parapet, with cover trench and communication.
![]() |
| From Mil. Engineering: Field Defences (1908), by permission of the Controller H. M. Stationery Office. |
| Fig. 84. |
The addition of a loophole of sandbags on the top for concealment (called head-cover), gives increased protection, but at the cost of greater prominence for the parapet (fig. 85). Overhead cover can only be provided in fire trenches by giving the parapet still greater height and it is not usually done. Portions of the trench not used for firing can, however, be given splinter-proof protection by putting over them branches or bundles, covered with a few inches of earth: or by boards, or sheets of corrugated iron if they can be had. A better plan when time permits is to provide cover trenches immediately behind and communicating with the fire trench.
![]() |
| From Mil. Engineering: Field Defences, by permission of the Controller H. M. Stationery Office. |
| Fig. 85. |
The question of redoubts has been a vexed one for years; partly they were thought to be unnecessary in view of the resisting power of a line of trenches, but chiefly because the redoubt was always imagined as one of the older type, with a high conspicuous parapet. Of course a redoubt of such a nature would Redoubts. be readily identified and made untenable. But the idea of a redoubt does not necessarily imply command. Its object is that it shall be capable of all-round defence. There can be no doubt that as there is always a possibility of lines being pierced somewhere, it is desirable, unless the whole line is to be thrown into confusion and forced back, to have some point at which the defenders can maintain themselves. This is not possible unless at such points there is provision for defence towards both flanks and rear, that is to say, when there are redoubts, which can hold on after certain portions of the line have been lost and thereby can localize the enemy’s success and simplify the action of supporting troops. In order that redoubts may exercise this function, all that is necessary is that their defenders should be able to see the ground for a furlong in front of them in every direction. Their parapets, therefore, need be in no way more conspicuous than those of the neighbouring fire trenches, and in that case there is no fear of their drawing special attention from the enemy’s artillery. Whatever theories may have been put forward en the subject, in practice they are constantly used, and in the Russo-Japanese War, where the experience of South Africa was already available, we find them in the fighting lines on both sides.
![]() |
| Fig. 86. |
The modern type of field redoubt is a fire trench, no more conspicuous than the others, in any simple form adapted to the ground that will give effective all-round fire, such as a square with blunted angles. Enhanced strength may be given by deepening the trenches and improving the overhead cover; and special use may here be made of obstacles.
![]() |
| Fig. 87. |
Within the redoubt cover may be provided for men in excess of those required to man the parapet, by means of cover trenches and field casemates. Fig. 86 gives the general idea of such a redoubt, and figs. 87, 88 the plan and section of the interior shelters. Such a work can easily be made quite invisible from a distance. It gives excellent cover against shrapnel, but would not be tenable against howitzer common shell, if the enemy did manage to bring an accurate fire to bear on it.
![]() |
| Fig. 88. |
Fig. 89 shows the section of a parapet with two shelters behind it for a work with a high command of 5 or 6 ft. This work would require a concealed position, which can often be found a little in rear of the firing line.
![]() |
| From Mil. Engineering: Field Defences (1908), by permission of the Controller H.M. Stationery Office. |
| Fig. 89. |
In the South African War a good deal of interest was excited by a type of trench used by the Boers. It was very narrow at the surface, giving only just room for a man to stand; but undercut or hollowed out below, so that he could sit down with very good cover. Such a section is only possible in very firm soil. Apart from Boer, Russian and Japanese types. this, the type is really only suited to rifle pits, as a trench proper should have room for officers and N.C.O’s to move along within it. The Boers showed great skill in concealing their trenches. One good point was that there was generally something making a background immediately behind the men’s heads, so that they did not stand out in relief when raised above the parapet.
![]() |
| From Russo-Japanese War: British Officers’ Reports, vol. ii., by permission of the Controller H.M. Stationery Office. |
| Figs. 90 and 91. |
In the Russo-Japanese War the Russian trenches at the outset were of old-fashioned type and very conspicuous. Later on better types were evolved. Figs. 90 and 91 are a couple of sections from Port Arthur; the first borrowed from the Boers but wider at the top. The Japanese appear to have taken their type mainly from the latest British official books, but applied them with great skill to the ground studying especially invisibility. In their prepared positions they used large redoubts manned by several companies.
![]() |
| From Mil. Engineering: Field Defences, by permission of the Controller H. M. Stationery Office. |
| Fig. 92.—Gun-pit. |
Cover for Guns.—Some degree of cover for guns, in addition to the shield, is always desirable. If the gun stands on the natural surface of the ground, the cover is called an epaulment. In that case a bank is thrown up in front of the gun, about 1 ft. high in the centre, and 3 ft. 6 in. high at the ends. On either side of the gun and close up to the bank is a small pit for the gunners. The rest of the earth for the epaulment is got from a trench in front. If the gun is sunk, the shelter is called a gun-pit.
In this case there is no bank immediately in front of the gun. Shelter can be got more quickly with a pit than an epaulment, but it is generally undesirable to break the surface of the ground.
The commonest forms of obstacle now used are abatis and wire entanglements. Fig. 93 shows a well-finished type of abatis. The Obstacles. branches are stripped and pointed, and the butts are buried and pegged firmly down. Wire entanglement may be added to this with advantage. An abatis should be protected from artillery fire, which is sometimes done by placing it in a shallow excavation with the earth thrown up in front of it.
![]() |
| From Mil. Engineering: Field Defences, by permission of the Controller H.M. Stationery Office. |
| Fig. 93.—Abatis. |
Wire may be used as a high or low entanglement or as a fence or trip wire or concealed obstacle. The usual form of high wire entanglement consists of several rows of stout stakes 4 or 5 ft. long, driven firmly into the ground about 6 ft. apart, and connected horizontally and diagonally with barbed wire.
![]() |
![]() |
| Fig. 94.—Crows’ Feet. | Fig. 95.—Plan and section of Trous-de-loup. |
Palisades are still used, and need no description. They were formerly often made bullet-proof, but this is no longer possible. Fraises are seldom heard of now, though they may appear occasionally in a modified form. They were much used in connexion with deep ditches, and are palisades placed so as to project horizontally from the escarp, or sloping forward in the bottom of the ditch. Military pits both deep and shallow (the latter, shown in fig. 95, called trous de loup) are not so much used as formerly, because the obstacle is hardly worth the labour expended on it. Both, however, were employed in the Russo-Japanese War. Crows’ feet, formerly much used as a defence against cavalry, are practically obsolete. They consisted of four iron spikes joined together at their bases in such a manner that however they were thrown down one point would always be pointing upwards (fig. 94). Chevaux-de-frise (q.v.) were formerly a much-used type of obstacle.
The best obstacle is that which can be made to fulfil a given object with the least expenditure of time and labour. From this point of view barbed wire is far the best. One of its greatest advantages is that it gives no cover whatever to the enemy.
Fougasses have always for convenience been classed as obstacles. A fougasse is a charge of powder buried at the bottom of a sloping pit. Over the powder is a wooden shield, 3 or 4 in. thick, and over the shield a quantity of stones are piled. The illustration, fig. 96, gives a clear idea of the arrangement. A fougasse of this form, charged with 80 ℔ of powder, will throw 5 tons of stones over a surface 160 yds. long by 120 wide. They may be fired by powder hose, fuze or electricity. Their actual effect is very often a matter of chance, but the moral effect is usually considerable.
Dams are most effective obstacles, when circumstances allow of their use. They are constructed by military engineers as small temporary dams would be in civil works.
A most important question, especially in connexion with obstacles, is that of lighting up the foreground at night. Portable electric searchlights are most valuable, especially for detecting the enemy’s movements at some distance; but their use will naturally always be restricted. Star shells and Illumination. parachute lights fired from guns are not of much use for the immediate foreground, and do not burn very long. They were formerly chiefly of use in siege works, to light up an enemy’s working parties. Germany has introduced lightballs fired from pistols, which will probably have a considerable future.
Various civilian forms of flare-light would be very useful to illuminate obstacles, but cannot well be carried in the field. Bonfires are very useful when material is available. They require careful treatment, e.g. they must be so arranged that they can be lighted instantaneously (they may be lighted automatically, by means of a trip wire and a fuze); they must give a bright light at once (this can be ensured with shavings or straw sprinkled with petroleum); they must be firmly built so that the enemy cannot destroy them easily; and if possible there should be a screen arranged behind them so that they may not light up the defence as well as the attack.
Blockhouses are familiar to the public from the part they played in the South African War of 1899–1902. In the old-fashioned permanent fortification they were used as keeps in such positions as re-entering places of arms and built of masonry. Stone blockhouses have Blockhouses. long been used in the Balkans for frontier outposts; they are sometimes built cruciform, so as to get some flanking defence. In the form of bullet-proof log-cabins they have played a great part in warfare between pioneer settlers and savages.
![]() |
| From Mil. Engineering, by permission of the Controller H.M. Stationery Office. |
| Fig. 96.—Fougasse. |
In the 19th century blockhouses were usually designed to give partial protection against field artillery; the walls being built of two thicknesses of logs with earth between them, the roof flat and covered with 2 or 3 ft. of earth, and earth being piled against the walls up to the loopholes. Nowadays they are employed only in positions where it is not likely that artillery will be brought against them: but they may be made tenable for a while even under artillery fire if they are surrounded by a trench and parapet.
Blockhouses are especially useful for small posts protecting such points as railway bridges, which the enemy may attempt to destroy by cavalry raids. The essential feature is a bullet-proof loopholed wall, arranged for all-round fire, with enough interior space for the garrison to sleep in. The roof may be simply weatherproof. Some arrangement for storing water must be provided. Circular blockhouses were very popular in South Africa. They were made of sheets of corrugated iron fastened 6 in. apart on a wooden framework, the space between the sheets being filled with small stones. The loopholes were made of sheet-iron frames inserted in the walls. Fig. 97 shows a section of one of these blockhouses.
![]() |
| By permission of the Controller H.M. Stationery Office. |
| Fig. 97.—Blockhouse, South Africa, 1900–1902. |
The defence of woods was formerly an important branch of field defences. Abatis and entanglements could readily be extemporized, trunks of trees made strong breastworks, and the wood concealed the numbers of the defenders. A wood was therefore generally considered a useful addition to a line of defence. Woods. It was customary to hold the front edge of the wood, the irregularities of the outline being utilized for frontal and flanking fire, while obstacles were disposed some 50 yds. in front. In a carefully prepared position, clearings would be made parallel to the front and some distance back from it, for support positions, and great attention was paid (in theory at least) to clearing communications, erections, signposts, &c., so that the defending troops might move freely in any desired direction.
Woods, however, had their inherent drawbacks. The ground is hard to dig, clearing involves great labour; and communication, at the best, is cramped. Nowadays a wood can hardly be considered a strong defensive element in a line. The front of it is an excellent ranging mark for artillery, and positions within the wood are not easily made, because of the difficulty of trenching, and the fact that no reasonable amount of timber will make a breastwork proof against the modern bullet. Once an enemy gets a footing within a wood, the position is more favourable to offensive than to defensive action. If a wood has to be occupied in a line of defence, it is probable that in most cases the rear edge or a line slightly behind it would be the best to fortify, though the front edge would no doubt be held by the fighting line at the outset.
The defence of villages is another question which has been much affected by recent improvements in artillery. Formerly villages were very important adjuncts to a line of defence, and strong points for a detached force to hold. There were indeed always drawbacks. The preparations Villages.for defence entailed a good deal of labour, and the defending force was scattered in houses and enclosures, so that control and united action were difficult. But the value of the ready-made protection afforded by walls was so great—and sometimes even decisive—that villages were occupied as a matter of course. This is certainly now changed, but precisely to what extent it will be impossible to say, until after the next European war. A village under fire is not now an ideal defensive position. A single shrapnel penetrating the outer wall may kill all the occupants of a room; a single field-howitzer shell may practically ruin a house. At the same time, a house or line of houses may (without any preliminary labour at all) give very good protection against shell fire to troops behind them. Further, the value to the defence of the slightest cover, once the infantry attack has developed, is so great that the ruins of walls and houses occupied at the right moment may prove an impregnable stronghold. This class of fighting, however, does not properly come under the present heading. For the details of the defence of walls, houses, &c., see the official Mil. Engineering (1908).
Entrenching under Fire.—Progress in this direction has been delayed by the reluctance of military authorities to add a portable entrenching tool to the heavy burden already carried by the infantry soldier. Further delay has resulted from the attempts of enthusiastic inventors to produce a tool that shall weigh nothing, go easily in the pocket, and be available as a pick, shovel, saw, hand-axe or corkscrew. A tool that will serve more than one use is seldom satisfactory for any.
The object of entrenching under fire is to enable attacking infantry, when their advance is checked by the enemy’s fire, to maintain the ground they have won by extemporizing cover where none exists. The need of this was first felt in the American Civil War, and towards the close of it a small entrenching Extemporized cover. spade 22 in. long and weighing only 112 ℔ was introduced by Brigadier-General H. W. Benham into the Army of the Potomac. Since that time a great number of patterns have been tried, including shovel, trowel and adze types. The most popular of these has been the Linnemann spade, which is used by most continental armies and by the Japanese. The Austrian form of this tool is a rectangular spade with straight handle. The length over all is a little less than 20 in. The blade is 8 in. long by 6 wide. One side of it has a saw edge, and the other a cutting edge. For carriage, the blade is enclosed in a leather case, which is strapped to the pack or the waist-belt. In the British army the Wallace combined pick and shovel was used for some time, but was eventually dropped. There was always great doubt whether the utility of a portable entrenching tool was such as to justify the inconvenience caused to the soldier in carrying it. But the experience of the Russo-Japanese War seems to have finally established the necessity of it, and also the fact that it must generally be used lying down. For this purpose and for convenience in carrying it on the person, a very light short-handled tool is required.
The soldier lying down cannot attempt to dig a trench, but can make a little hole by his side as he lies, and put the earth in front of his head. A method introduced by the Japanese is that at each check in the advance the front line should do this, and, as they go forward, the supporting lines in succession should improve the cover thus commenced.
There are few things that soldiers dislike more, in the way of training, than trenchwork. For men unused to it, it is tiring and tedious work, and it is difficult for them to realize its importance. At the same time it is a commonplace of recent history that men who have been in action a few General remarks. times develop a great affection for the shovel. The need of trenches grows with the growth of firearms, and the latest feature of modern tactics is the use of them in attack as well as in defence. The observation has often been made—with what truth as a general proposition we cannot here discuss—that modern battles tend more and more to resemble a siege. The weaker side, it is said, entrenches itself; the other bombards and attacks. After gaining as much ground as they can, the attacking troops wait for nightfall and entrench; perhaps making a further advance and entrenchment before dawn. In the last stage the attack might even be reduced to gaining ground by sapping. In open and featureless ground, where the rifle and gun have full play, the trench is to the modern soldier very much what the breast-plate was to the man-at-arms, an absolute essential.
The most important point in connexion with modern field fortification is the effect on both strategy and tactics of the increased resisting power of the defence. A small force well entrenched can check the frontal attack of a very much larger force, and while holding its position can make itself felt over a wider radius than ever before. This must needs have a marked effect on strategy, and it is quite possible to foresee such an ultimate triumph of field fortification as that one force should succeed in surrounding another stronger than itself, and by entrenching prevent the latter from breaking out and compel its surrender.
VI. Conclusion
In tracing the history of the science of fortification and in outlining the practice of our own time it has been necessary to dwell chiefly on the material means of defence and attack. The human element has had to be almost ignored. But here comes in the paradox, that the material means are after all the least important element of defence. Certainly it is inconceivable that the designer of a fortress should not try to make it as strong as is consistent with the object in view and the means at his disposal. And yet while engineers in all ages have sought eagerly for strength and refinements of strength, the fact remains that the best defences recorded in history owed little to the builder’s art. The splendid defence in 1667 of Candia, whose enceinte, of early Italian design, was already obsolete but whose capture cost the Turks 100,000 men; the three years defence of Ostend in 1601; the holding of Arcot by Clive, are instances that present themselves to the memory at once. The very weight of the odds against them sometimes calls out the best qualities of the defenders; and the man when at his best is worth many times more than the rampart behind which he fights. But it would be a poor dependence deliberately to make a place weak in order to evoke these qualities. One cannot be sure that the garrison will rise to the occasion, and the weakness of the place has very often been found an excuse for giving it up with little or no resistance.
Very much depends on the governor. Hence the French saying, “tant vaut l’homme, tant vaut la place.” Among modern men we think of Todleben (not governor, but the soul of the defence) at Sevastopol, Fenwick Williams at Kars, Denfert-Rochereau at Belfort, and Osman Pasha at Plevna. The sieges of the 16th and 17th centuries offer many instances in which the event turned absolutely on the personal qualities of the governor; in some cases distinguished by courage, skill and foresight, in others by incapacity, cowardice or treachery. The reader is referred to Carnot’s Défense des places fortes for a most interesting summary of such cases, one or two of which are quoted below.
Naarden was besieged by the prince of Orange in September 1673 and defended by Philippe de Procé, sieur Dupas. The duke of Luxemburg visited the place some hours before it was invested, and arranged with Dupas to relieve him as soon as he had collected his cavalry. The spirit of the defence. But the governor lost his head when he saw the enemy encamped round the place, and surrendered it before he had even lost the covered way. He was subsequently tried by a council of war and sentenced to be degraded before the troops and imprisoned for life. The reason the court gave for not condemning him to death was that they could find no regulation which condemned a man to loss of life for being a coward. (At that period the decapitation of a governor who was considered to have failed in his duty was not uncommon.) This man, however, was not wanting in physical courage. He was in prison at Grave when it was besieged a year later, obtained leave to serve as a volunteer in the defence, fought well and was killed.
A similar case occurred in the English Civil War. In 1645 the young governor of the royal post at Bletchingdon House was entertaining a party of ladies from Oxford, when Cromwell appeared and summoned him to surrender. The attacking force had no firearm more powerful than a carbine, but the governor, overawed by Cromwell’s personality, yielded. Charles I., who was usually merciful to his officers, caused this governor to be shot.
A defence of another kind was that of Quillebœuf in 1592. Henry IV. had occupied it and ordered it to be fortified. Before the works had been well begun, Mayenne sent 5000 men to retake it. Bellegarde undertook its defence, with 115 soldiers, 45 gentlemen and a few inhabitants. He had ammunition but not much provisions. With these forces and a line of defence a league in length, he sustained a siege, beat off an assault on the 17th day, and was relieved immediately afterwards. The relieving forces were astonished to find that he had been defending not a fortified town but a village, with a ditch which, in the places where it had been begun, measured no more than 4 ft. wide and deep.
At that period the business aspect of siege warfare already alluded to had been recognized, but many commanders retained the old spirit of chivalry in their reluctance to say the “loth word.” The gallant Marshal d’Essé, who feared nothing but the idea of dying in his bed, was lying ill at his country house when he was sent for by the king. He was ordered to take command at Thérouanne, then threatened by Charles V., and made his farewell with these words, which remind us somewhat of Grenville: “Sire, je m’y en vais donc de bon et loyal cœur; mais j’ai ouï dire que la place est mal envitaillée, non pas seulement pourvue de palles, de tranches, ni de hottes pour remparer et remuer la terre; mais lors, quand entendrez que Thérouanne est prise, dites hardiment que d’Essé est guéri de sa jaunisse et mort.” And he made good his word, for he was killed at the breach by a shot from the arquebus of a Spanish soldier.
Sometimes the ardour of defence inspired the whole body of the inhabitants. Fine examples of this are the defences of Rochelle (1627) and Saint-Jean de Lône (1636), but these are too long to quote. We may, however, mention Livron, which is curious. In 1574 Henry III. sent one of his favourites, Saint Lary Bellegarde, against the Huguenots in the Dauphiné. Being entrusted with a good army, this gentleman hoped to achieve some distinction. He began by attacking the little town of Livron, which had no garrison and was defended only by the inhabitants. But he was repulsed in three assaults, and the women of the town conceived such a contempt for him that they came in crowds to empty their slops at the breach by way of insult. This annoyed him very much, and he ordered a fresh assault. The women alone sustained this one, repulsed it lightheartedly, and the siege was raised.
The history of siege warfare has more in it of human interest than any other branch of military history. It is full of the personal element, of the nobility of human endurance and of dramatic surprises. And more than any battles in the open field, it shows the great results of the courage of men Arcot. fighting at bay. Think of Clive at Arcot. With 4 officers, 120 Europeans and 200 sepoys, with two 18-pounders and 8 lighter guns, he held the fort against 150 Europeans and some 10,000 native troops. “The fort” (says Orme) “seemed little capable of sustaining the impending siege. Its extent was more than a mile in circumference. The walls were in many places ruinous; the rampart too narrow to admit the firing of artillery; the parapet low and slightly built; several of the towers were decayed, and none of them capable of receiving more than one piece of cannon; the ditch was in most places fordable, in others dry and in some choked up,” &c. These feeble ramparts were commanded almost everywhere by the enemy’s musketry from the houses of the city outside the fort, so that the defenders were hardly able to show themselves without being hit, and much loss was suffered in this way. Yet with his tiny garrison, which timbered about one man for every 7 yds. of the enclosure, Clive sustained a siege of 50 days, ending with a really severe assault on two large open breaches, which was repulsed, and after which the enemy hastily decamped.
Such feats as this make arguments about successive lines of defence and the necessity of keeps seem very barren. History, as far as the writer knows, shows no instances where successive lines have been held with such brilliant results.
Clive’s defence of his breaches, which by all the then accepted rules of war were untenable, brings us to another point which has been already mentioned, namely, that a garrison might honourably make terms when there was an open breach in their main line of defence. This is a question upon which Carnot delivers himself very strongly in endeavouring to impress upon French officers the necessity of defence to the last moment. Speaking of Cormontaingne’s imaginary Journal of the Attack of a Fortress (which is carried up to the 35th day, and finishes by the words “It is now time to surrender”), he says with great scorn: “Crillon would have cried, ‘It is time to begin fighting.’ He would have said as at the siege of Quillebœuf, ‘Crillon is within, the enemy is without.’ Thus when Bayard was defending the shattered walls of Mézières, M. de Cormontaingne, if he had been there, would have said, ‘It is time to surrender.’ Thus when Guise was repairing the breaches of Metz under the redoubled fire of the enemy, M. de Cormontaingne, if he had been there, would have said, ‘It is time to surrender.’” Carnot of course allows that Cormontaingne was personally brave. His scorn is for the accepted principle, not for the man.
It is interesting to contrast with this passage some remarks by Sir John Jones, made in answer to Carnot’s book. He says in the notes to the second volume of the Journals of the Sieges in Spain: “When the breach shall be pushed properly forward, if the governor insists upon Resisting “to the last.” the ceremony of his last retrenchment being stormed, as by so doing he spills the blood of many brave men without a justifiable object, his life and the lives of the garrison should be made the forfeit. A system enforced by terror must be counteracted by still greater terror. Humanity towards an enemy in such a case is cruelty to one’s own troops.... The principle to be combated is not the obligation to resist behind the breach—for where there is a good retrenchment the bastion should be disputed equally with the counter-guard or the ravelin and can as safely be so—but the doctrine that surrender shall not take place when successful resistance becomes hopeless.”
Carnot’s word is “fight to the last.” Sir John Jones says the commander has no right to provoke further carnage when resistance is hopeless. The question of course is, When is resistance hopeless? Sir John Jones’s reputation leaves little doubt that if he had been commanding a fortress on British soil he would not have thought resistance hopeless as long as there was anything whatever left to defend. The reason why these two men of similar temper are found in opposition is quite simple. When Carnot wrote, the French army occupied most of the important fortresses of Europe, and it was to the interest of the emperor that if attacked they should be held to the last moment, in order to cause the enemy as much delay and loss as possible. Jones, on the other hand, was one of the engineers who were engaged in besieging those fortresses, and his arguments were prompted by sympathy for his own countrymen whose lives were sacrificed by the prolongation of such resistance.
A century has passed since Carnot and Jones wrote, and the ideas in which they had been educated were those of the pre-Napoleonic era. In the 18th century fortresses were many, good roads few, and campaigns for the most part leisurely. To the European nations of that time, inheritors of a perennial state of war, the idea of concentrating the national resources on a short and decisive campaign had not occurred. The “knock-out blow” had not been invented. All these conditions are now so changed that new standards must be and indeed have been set up, both for the defence of places and the general employment of fortification.
As regards the conduct of the defence, the massacre of a garrison as a penalty for holding out too long would meet with no sympathy in the present day. On the other hand, the issue of modern wars is worked out so rapidly that if a fortress is well defended, with the advantage of the present weapons, there is always a chance of holding out till the close of the war. If the place is worth holding, it should as a rule be held to the bitter end on the chance of a favourable turn in affairs; moreover, the maintenance of an important siege under modern conditions imposes a severe strain on the enemy and immobilizes a large number of his troops.
In concluding this article some elementary considerations in connexion with the use of permanent defences may be noticed, though the general question of strategic fortification is outside its scope. The objects of fortification differ, as has been shown, from age to age. In former times Permanent defences. a peaceful people exposed to the raids of piratical Norsemen might find their refuge tower essential; later, a robber-baron might look on his castle as so much capital invested; a wealthy medieval town might prove the value of its walls more than once in a generation; a country without a standing army might gain time for preparation by means of fortresses barring the roads across the frontier. But how does the question stand to-day among European countries which can mobilize their full fighting strength at a few hours’ notice? It can only be answered when the circumstances of a particular country are examined.
If we assume such an impossible case as that of two nations of equal fighting strength and equal resources standing ready in arms to defend a common frontier, and that the theatre of war presents no difficulties on either side, then the use of permanent fortifications, merely as The use and abuse of fortresses. an adjunct to military strength, is wrong. Fortresses do not decide the issue of a campaign; they can only influence it. It is better, therefore, to put all the money the fortress would have cost, and all the man-power that its maintenance implies, into the increase and equipment of the active army. For the fate of the fortress must depend utlimately on the result of the operations of the active armies. Moreover, the very assumption that resources on both sides are equal means that the nation which has spent money on permanent fortifications will have the smaller active army, and therefore condemns itself beforehand to a defensive rôle.
This general negation is only useful as a corrective to the tendency to over-fortify, for such a case cannot occur. In practice there will always be occasion for some use of fortification. A mountain range may lend itself to an economical defence by a few men and some inexpensive barrier forts. A nation may have close to its frontier an important strategic centre, such as a railway junction, or a town of the first manufacturing importance, which must be protected. In such a case it may be necessary to guard against accidents by means of a fortress. Again, if one nation is admittedly slower in mobilization than the other, it may be desirable to guard one portion of the frontier by fortresses so as to force invasion into a district where concentration against it is easiest.
As for the defence of a capital, this cannot become necessary if it stands at a reasonable distance from the frontier until the active armies have arrived at some result. If the fighting strength of the country has been practically destroyed, it is not of much use to stand a siege in the capital. There can be but one end, and it is better, as business men say, to cut losses. If the fighting strength is not entirely destroyed and can be recruited within a reasonable time, say two or three months, then it appears that under modern conditions the capital might be held for that time by means of extemporized defences. The question is one that can only be decided by going into the circumstances of each particular case.
The case of a weak country with powerful and aggressive neighbours is in a different category. If she stands alone she will be eaten up in time, fortifications or no fortifications; but if she can reckon on assistance from outside, it may be worth while to expend most of the national resources on permanent defences.
These hypothetical cases have, however, no value, except as illustrations to the most elementary arguments. The actual problems that soldiers and statesmen have to consider are too complex to be dealt with in generalities, and no mere treatise can supply the place of knowledge, thought and practice.
Bibliography.—The more important works on the subject are: Dürer, Unterricht zur Befestigung (Nuremberg, 1527); Speckle, Architectur von Festungen (Strassburg, 1589); Fritach, L’Architecture mil. ou la f. nouvelle (Paris, 1637); Pagan, Les Fortif. (Paris, 1689); de Ville, Les Fortif. (Lyons, 1629); de Fer, Introduction à la fortification (Paris, 1723); B. F. de Belidor, Science des Ingénieurs, &c. (Paris, 1729); works of Coehoorn, Vauban, Montalembert, Cormontaingne; Mandar, De l’architecture des fortresses (Paris, 1801); Chasseloup-Laubat, Essais sur quelques parties de l’artil. et de la fortification (Milan, 1811); Carnot, Défense des places fortes (Paris, 1812); Jones, Journals of Sieges in Spain (3rd ed., London, 1846); T. Choumara, Mémoire sur la fortification (1847); A. von Zastrow, Geschichte der beständigen Befestigung (N.D., Fr. trans.); works of Sir C. Pasley; Noizet, Principes de fortif. (Paris, 1859); Dufour, De la fortif. permanente (Paris, 1850); E. Viollet le Duc, L’Architecture militaire au moyen âge (Paris, 1854); Cosseron de Villenoisy, Essai historique sur la fortification (Paris, 1869); works of Brialmont (q.v.); Delambre, La Fortification dans ses rapport: avec la tactique et la stratégie (Paris, 1887); v. Sauer, Angriff und Verteidigung fester Plätze (Berlin, 1885); Schroeter, Die Festung in der heutigen Kriegführung (Berlin, 1898–1906); Baron E. v. Leithner, Die beständige Befestigung und der Festungskrieg (Vienna, 1894–1899); W. Stavenhagen, Grundriss der Befestigungslehre (Berlin, 1900–1909); Plessix and Legrand, Manuel complet de fortification (Paris, 1900, new edition 1909); Ritter v. Brunner, Die beständige Befestigung (Vienna, 1909), Die Feldbefestigung (Vienna, 1904); Rocchi, Traccia per lo studio della fortificazione permanente (Turin, 1902); Sir G. S. Clarke, Fortification 1907); V. Deguise, La Fortification permanente contemporaine Brussels, 1908); Royal Military Academy, Text-book of Fortification, pt. ii. (London, 1893); British official Instruction in Military Engineering, pts. i., ii. and iv. (London, 1900–1908). (L. J.)






























































































