The power company says I can put my permanent service entrance on a 6" x 6" pressure treated post. My friend suggested I consider a metal post sunk in concrete, for greater longevity.
How long should I expect a treated post to last in the ground?
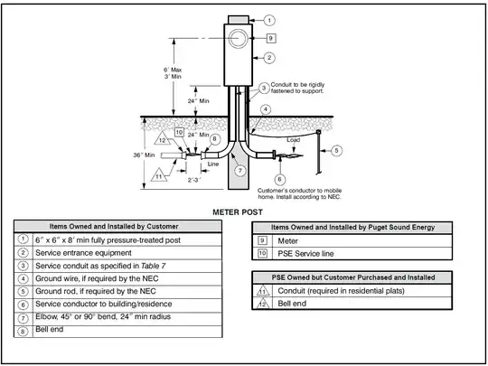
Here's the diagram the power company gives:
