Hello community!
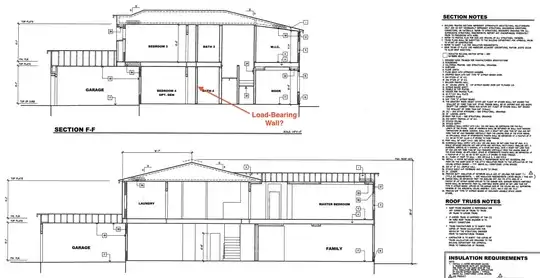
I wanted to ask if anyone could assist in figuring out whether this wall is load-bearing based on this architectural building plan?? This wall is currently the back of a reach-in closet, but I wanted to build an interior door connecting the bedroom to the adjoining bathroom. Sorry I'm a newbie to all this, but very excited to figure it out. TIA!
EDIT: Based on the comments, I've added additional pics for clarity
- pretty sure this is a Truss roof: there are comments in the building plans that say truss roof, and this home was built in the last 15 years
- this wall is on the first story/ground level: so no column below. That being said there are 3 columns in the living room area outside this room, none of which directly line up with this wall


